Измерительные приборы Condtrol RED 360H - инструкция пользователя по применению, эксплуатации и установке на русском языке. Мы надеемся, она поможет вам решить возникшие у вас вопросы при эксплуатации техники.
Если остались вопросы, задайте их в комментариях после инструкции.
"Загружаем инструкцию", означает, что нужно подождать пока файл загрузится и можно будет его читать онлайн. Некоторые инструкции очень большие и время их появления зависит от вашей скорости интернета.

9
Руководство по эксплуатации
CONDTROL Red 360/Red 360H
МУЛЬТИПРИЗМЕННЫЙ
ЛАЗЕРНЫЙ НИВЕЛИР
Руководство по эксплуатации
CONDTROL Red 360/Red 360H
МУЛЬТИПРИЗМЕННЫЙ
ЛАЗЕРНЫЙ НИВЕЛИР
ТЕХНИЧЕСКИЕ Х АРАКТЕРИСТИКИ
Рабочий диапазон (зависит от яркости
освещения)
40 м
Рабочий диапазон с детек тором (зависит
от яркости освещения)
70 м
Точность лазерных линий
± 2 мм /10 м
Самовыравнивание
± 5°
Лазер
< 1 mB, 635 нм, II к ласс
Источник питания
3x1,5В A A А
Продолжительность работы батарей
40 ч
Рабочая температ ура
0°C ... +50°C
Температ ура хранения
-10°C ... +70°C
Вес
0,350 кг
Габаритные размеры
110*94*94 мм
ПРОВЕРКА ТОЧНОСТИ
Примечание!
Рег улярно проверяйте точность прибора перед использо-
ванием, после перевозки или д лительного хранения.
Вы можете самостоятельно произвести проверк у точности прибора.
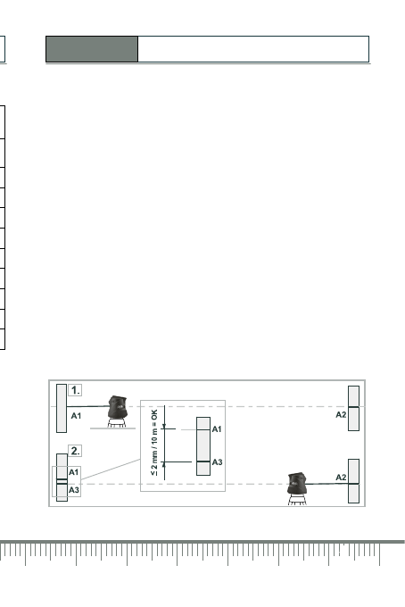
Проверка горизонтальной линии
Установите  прибор  меж ду  2  стенами,  расстояние  меж ду  которыми 
примерно  5  м.  Вк лючите  прибор.  Наилучшие  результаты  ка либровки 
можно получить, если прибор установлен на ровную плоск ую поверх-
ность. 
1. Установите прибор на расстоянии 0,2-0,5 м от одной из стен. Нанеси-
те на этой стене  точк у A1.*
* точки отмечаются в центре проецируемой лазерной линии
2. Нанесите точк у A2 на противоположной стене. 
3. Переместите прибор к противоположной стене.
4. Совместите горизонта льную лазерную линию с точкой А2.
5. Отметьте точк у А3 на противоположной стене. 
Если расстояние меж ду точками A1 и A3 больше, чем 2 мм, прибор не-
обходимо  отка либровать.  В  этом  случае  Вам  необходимо  связаться  с 
авторизованным дилером или сервисным отделом.
 
  
  
  
  
  
  
  
  
  
  
  
 

