Источники бесперебойного питания UPS Powercom IMD-3000AP Imperial - инструкция пользователя по применению, эксплуатации и установке на русском языке. Мы надеемся, она поможет вам решить возникшие у вас вопросы при эксплуатации техники.
Если остались вопросы, задайте их в комментариях после инструкции.
"Загружаем инструкцию", означает, что нужно подождать пока файл загрузится и можно будет его читать онлайн. Некоторые инструкции очень большие и время их появления зависит от вашей скорости интернета.

Copyright ©POWERCOM CO., Ltd
10
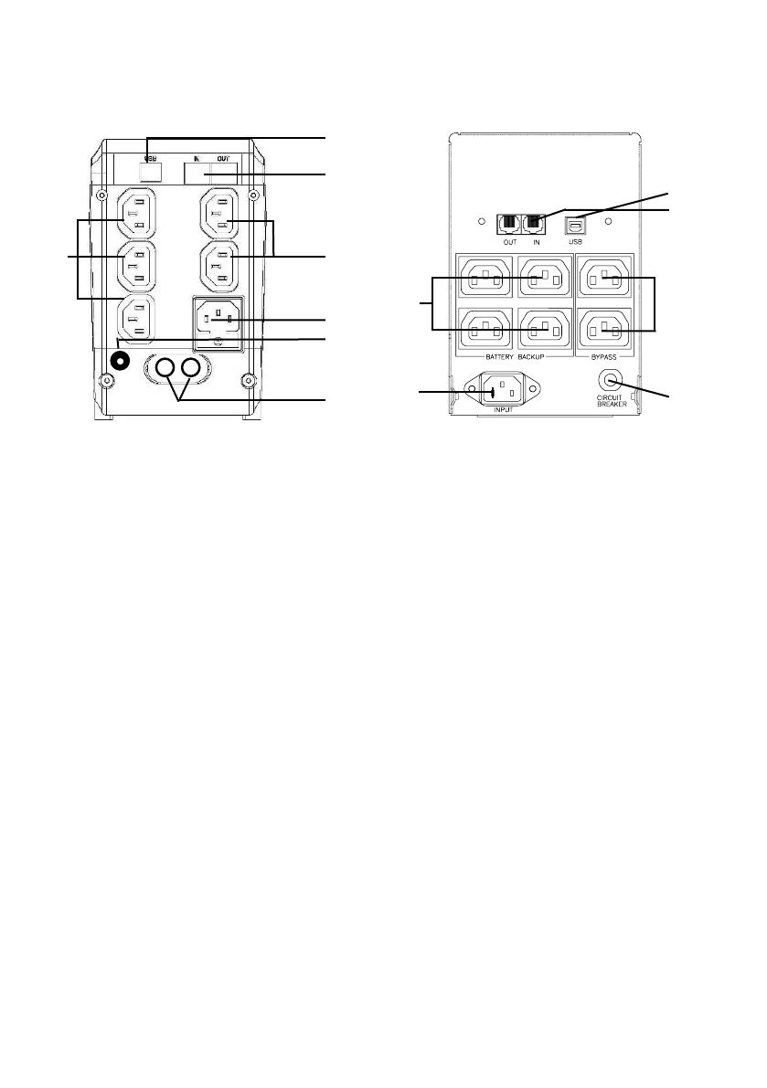
1.2 Задняя панель:
модели 525 ВА ~ 825 ВА модели 1025 ВА ~ 3000 ВА
КОММУНИКАЦИОННЫЙ ПОРТ
Обеспечивает работу ИБП совместно с программным обеспечением UPSMON под
операционными системами «WINDOWS», «NOVELL», «LINUX», «UNIX» и другими.
Защита ТЕЛЕФОННОЙ/МОДЕМНОЙ линии
Обеспечивает защиту портов телекоммуникационной передачи от импульсов
высокого напряжения в линии.
Внимание:
Во избежание возгорания используйте линейный телефонный кабель №
26AWG или другой более мощный кабель.
РАЗЪЕМ ДЛЯ ПОДКЛЮЧЕНИЯ ЭЛЕКТРОСЕТИ ПЕРЕМЕННОГО ТОКА
Для подключения расположенного на задней панели входного разъема ИБП к
электрической сети используйте кабель из комплекта устройства. Убедитесь, что
номинальное напряжение в электросети соответствует рабочему напряжению ИБП.
Например, если номинальное рабочее напряжение ИБП составляет 220 В, то и
напряжение питающей электросети также должно составлять 220 В.
ВХОДНОЙ ПРЕРЫВАТЕЛЬ/ ПЛАВКИЙ ПРЕДОХРАНИТЕЛЬ
Автоматический защитный автомат срабатывает, когда мощность подключенного
оборудования превышает мощность ИБП. Для возврата в исходное положение
отключите оборудование и нажмите на толкатель защитного автомата. Если в Вашей
модели ИБП используется плавкий сетевой предохранитель, откройте держатель
предохранителя при помощи инструмента, извлеките его и замените аналогичным по
номиналу.