Источники бесперебойного питания DEXP MIX ONLINE 1000VA - инструкция пользователя по применению, эксплуатации и установке на русском языке. Мы надеемся, она поможет вам решить возникшие у вас вопросы при эксплуатации техники.
Если остались вопросы, задайте их в комментариях после инструкции.
"Загружаем инструкцию", означает, что нужно подождать пока файл загрузится и можно будет его читать онлайн. Некоторые инструкции очень большие и время их появления зависит от вашей скорости интернета.

.
Примечание:
для дальнейшего удобства сохраняйте коробку и упаковку устройства.
Некоторые из устройств достаточно тяжелые, их следует транспортировать
с осторожностью.
Проверьте ИБП на наличие повреждений в процессе транспортировки. Если вы
обнаружили повреждения или отсутствующие детали, не запускайте устройство
и свяжитесь с перевозчиком и продавцом.
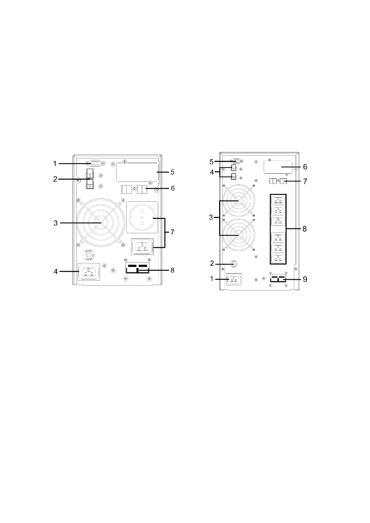
Схема устройства
1.
Интерфейс RS232.
2.
USB-разъём.
3.
Вентилятор.
4.
Вход кабеля питания.
5.
Слот для SNMP карты.
6.
Защита от перегрузки для факса/
модема RJ11/RJ45.
7.
Выходные разъ
ё
мы.
8.
Разъём для подключения внешней
батареи.
1.
Вход кабеля питания .
2.
Предохранитель.
3.
Вентилятор.
4.
USB-разъём.
5.
Интерфейс RS232.
6.
Слот для SNMP карты.
7.
Защита от перегрузки для факса/
модема RJ11/RJ45.
8.
Выходные разъ
ё
мы.
9.
Разъём для подключения внешней
батареи.
MIX O
NLINE
1000VA
IEC Plus ONLINE 3000VA
Характеристики
Остались вопросы?Не нашли свой ответ в руководстве или возникли другие проблемы? Задайте свой вопрос в форме ниже с подробным описанием вашей ситуации, чтобы другие люди и специалисты смогли дать на него ответ. Если вы знаете как решить проблему другого человека, пожалуйста, подскажите ему :)