ИНТОИС Оптима Н 4 кВт 183 - Инструкция по эксплуатации

ИНТОИС Оптима Н 4 кВт 183

Котел ИНТОИС Оптима Н 4 кВт 183 - инструкция пользователя по применению, эксплуатации и установке на русском языке. Мы надеемся, она поможет вам решить возникшие у вас вопросы при эксплуатации техники.

Если остались дополнительные вопросы — свяжитесь с нами через контактную форму.

1 Страница 1
2 Страница 2
3 Страница 3
4 Страница 4
5 Страница 5
6 Страница 6
7 Страница 7
8 Страница 8
9 Страница 9
10 Страница 10
11 Страница 11
12 Страница 12
13 Страница 13
14 Страница 14
15 Страница 15
16 Страница 16
17 Страница 17
18 Страница 18
19 Страница 19
20 Страница 20
21 Страница 21
22 Страница 22
23 Страница 23
24 Страница 24
25 Страница 25
26 Страница 26
27 Страница 27
28 Страница 28
29 Страница 29
30 Страница 30
31 Страница 31
32 Страница 32
33 Страница 33
34 Страница 34
35 Страница 35
36 Страница 36
37 Страница 37
38 Страница 38
39 Страница 39
40 Страница 40
41 Страница 41
42 Страница 42
43 Страница 43
44 Страница 44
45 Страница 45
46 Страница 46
47 Страница 47
Страница: / 47

Содержание:

  • Страница 2 – Внимание; Перед пуском Автоматического Электрического; Данная процедура необходима для устранения люфта ТЭН, могущего
  • Страница 3 – СОДЕРЖАНИЕ; Руководство пользователя
  • Страница 4 – ВВЕДЕНИЕ
  • Страница 5 – Адрес изготовителя:
  • Страница 6 – «Интоис Оптима» и «Интоис Оптима Н»(со встроенным
  • Страница 7 – «Интоис Оптима» мощностью 21-95кВт и
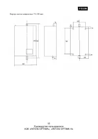
  • Страница 9 – «Интоис Оптима» мощностью 72-108кВт
  • Страница 11 – ТРЕБОВАНИЯ БЕЗОПАСНОСТИ; Требования по установке и эксплуатации; Монтаж АЭК в отопительную систему и подключение к электросети; Ремонт и техническое обслуживание АЭК производится только при; Без заземления АЭК НЕ ВКЛЮЧАТЬ!
  • Страница 12 – Требования к системе отопления; Для подключения АЭК к электрической сети необходимо
  • Страница 16 – «Интоис Оптима» 3-95 кВт; Направление движения
  • Страница 17 – «Интоис Оптима Н» с циркуляционным насосом
  • Страница 19 – Клеммная колодка платы контроллера
  • Страница 20 – Установка и порядок подключения АЭК
  • Страница 21 – питающий провод насоса; Наличие Дифавтомата с стационарной проводке обязательно.; Датчик температуры помещения крепится на стене, в защищённом от; Применение других проводов, а также их удлинение не
  • Страница 22 – Требования к теплоносителю; Опрессовку АЭК проводить при давлении не выше 6Атм., либо при; Запрещается производить включение АЭК если изложенные; В случае использования несоответствующего теплоносителя или; должна быть в открытом состоянии.; КАСКАДНОЕ ПОДКЛЮЧЕНИЕ АЭК
  • Страница 23 – Каскадный метод подключения применяется для отопления больших
  • Страница 24 – Когда котел установлен нажмите кнопку; Блок компьютерного управления; «Работа»
  • Страница 25 – «Котел выключен»; Программирование «Интоис Оптима» и «Интоис; «Ввод»; Режимы работы котла; Режим «Климат» (на дисплее котла обозначается буквой «К»); Программы работы котла; «Постоянная»
  • Страница 26 – «Календарная»; Постоянная программа.; В вод
  • Страница 29 – Для сохранения заданных настроек, нажмите кнопку «Ввод».; Недельная программа
  • Страница 31 – Календарный график; ) В пункте меню «Выбор режима» выберите программу «Календарный
  • Страница 32 – Режим – «Бойлер» или «Климат»; Дополнительные настройки; Пролистывая кнопками «Вверх-вниз» выберите пункт меню
  • Страница 33 – Установка даты и время
  • Страница 34 – Если оборван или отсоединен от котла датчик температуры; Управление котлом через SMS (отдельная опция); Установка GSM модуля:
  • Страница 36 – УПРАВЛЕНИЕ КОТЛОМ ЧЕРЕЗ GSM; телефон соответствующее уведомление:
  • Страница 39 – На плате расположены клеммы для пожарной и охранной; КОМПЛЕКТ ПОСТАВКИ GSM:; GSM; ПРАВИЛА ЭКСПЛУАТАЦИИ И ТЕХНИЧЕСКОЕ; программы работы электрического котла.
  • Страница 41 – Схема платы контроллера; Разьем для GSM
  • Страница 42 – ГАРАНТИЙНЫЕ ОБЯЗАТЕЛЬСТВА
  • Страница 44 – ПЕЧАТЬ
  • Страница 45 – ГАРАНТИЙНЫЙ ТАЛОН; АЭК не подлежит бесплатному ремонту в следующих случаях:
  • Страница 47 – Талон на установку; АЭК «Интоис Оптима» и «Интоис Оптима Н» мощностью установленным; М.П.
Загрузка инструкции

РУКОВОДСТВО

ПОЛЬЗОВАТЕЛЯ

АВТОМАТИЧЕСКИЙ

ЭЛЕКТРОНАГРЕВАТЕЛЬНЫЙ КОТЁЛ

«INTOIS OPTIMA», «INTOIS OPTIMA H»

«INTOIS OPTIMA» мощностью 3-108 кВт, «INTOIS OPTIMA Н»

мощностью 3-27 кВт со встроенным насосом

"Загрузка инструкции" означает, что нужно подождать пока файл загрузится и можно будет его читать онлайн. Некоторые инструкции очень большие и время их появления зависит от вашей скорости интернета.

Краткое содержание

Страница 2 - Внимание; Перед пуском Автоматического Электрического; Данная процедура необходима для устранения люфта ТЭН, могущего

2 Руководство пользователя АЭК «INTOIS OPTIMA», «INTOIS OPTIMA H» Внимание монтажных организаций!!! Перед пуском Автоматического Электрического Котла (АЭК) необходимо подтянуть все гайки крепления ТЭН, «на сухую», то есть до попадания в АЭК теплоносителя. Данная процедура необходима для устранения л...

Страница 3 - СОДЕРЖАНИЕ; Руководство пользователя

СОДЕРЖАНИЕ Введение…………………………………………….………………..4Технические параметры……………………………..……………...6Требования безопасности…………………………….......................9Комплект поставки……………………………………………..….11Транспортировка и хранение………………………..................….12Устройство АЭК………………………………………………..…..12Требования к монт...

Страница 4 - ВВЕДЕНИЕ

ВВЕДЕНИЕ Автоматический электронагревательный котёл (далее АЭК) "Интоис Оптима" и «Интоис Оптима Н» (с возможностью установки циркуляционного насоса в корпус котла) предназначен для отопления индивидуальных жилых домов,коттеджей, дач, торговых помещений и других отдельно расположенных зданий...

Характеристики

Другие модели - Котлы ИНТОИС

Все котлы ИНТОИС