Холодильник TEMPTECH FW48DB - инструкция пользователя по применению, эксплуатации и установке на русском языке. Мы надеемся, она поможет вам решить возникшие у вас вопросы при эксплуатации техники.
Если остались вопросы, задайте их в комментариях после инструкции.
"Загружаем инструкцию", означает, что нужно подождать пока файл загрузится и можно будет его читать онлайн. Некоторые инструкции очень большие и время их появления зависит от вашей скорости интернета.

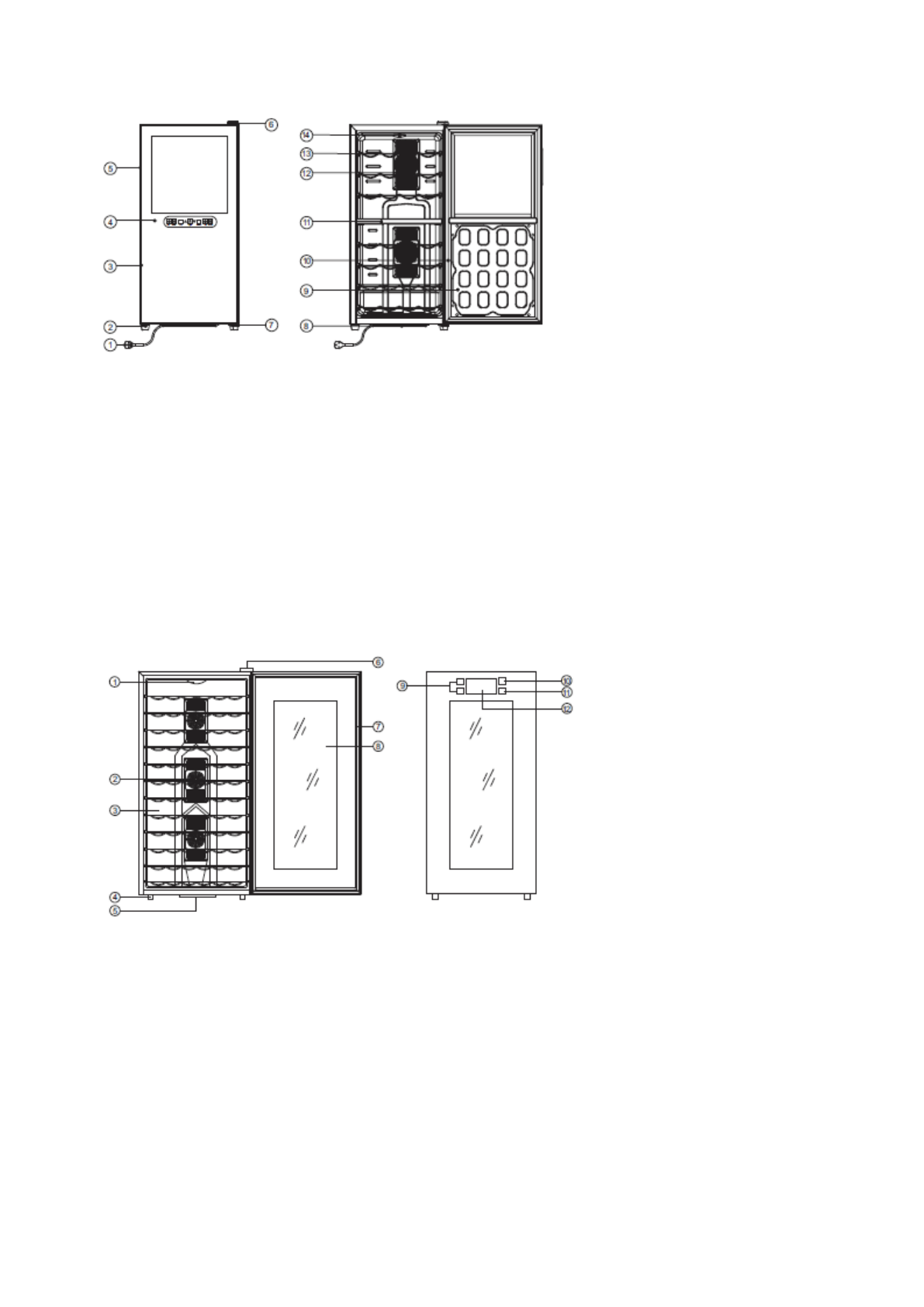
7
FW78DB
1.
КАБЕЛЬ ПИТАНИЯ
2.
НОЖКИ
3.
ДВЕРНАЯ РАМА
4.
СТЕКЛЯННАЯ ДВЕРЦА
5.
РУЧКА
6.
КРЫШКА ВЕРХНЕЙ ДВЕРНОЙ ПЕТЛИ
7.
НИЖНЯЯ ДВЕРНАЯ ПЕТЛЯ
8.
ПОДДОН ДЛЯ ВОДЫ
9.
ДВЕРНАЯ ОБВИКА
10.
УПЛОТНИТЕЛЬ ДВЕРЦЫ
11.
ИЗОЛИРОВАННАЯ ПЛАТА
12.
МАСКА ХОЛОДНОГО ВЕНТИЛЯТОРА
13.
ПОЛКА
14.
КРЫШКА ЛАМПЫ
FW180SB
1.
ПОДСВЕТКА
2.
МАСКА ВЕНТИЛЯТОРА
3.
ПОЛКА
4.
НОЖКИ
5.
РЕЗЕРВУАР ДЛЯ ВОДЫ
6.
КРЫШКА ПЕТЛИ
7.
МАГНИТНЫЙ УПЛОТНИТЕЛЬ
8.
СТЕКЛО
9.
ПАНЕЛЬ УПРАВЛЕНИЯ ТЕМПЕРАТУРОЙ
10.
ВЫКЛЮЧАТЕЛЬ ПОДСВЕТКИ
11.
ПЕРЕКЛЮЧАТЕЛЬ
12.
LCD
-
ДИСПЛЕЙ