Холодильник Smeg SBS963N - инструкция пользователя по применению, эксплуатации и установке на русском языке. Мы надеемся, она поможет вам решить возникшие у вас вопросы при эксплуатации техники.
Если остались вопросы, задайте их в комментариях после инструкции.
"Загружаем инструкцию", означает, что нужно подождать пока файл загрузится и можно будет его читать онлайн. Некоторые инструкции очень большие и время их появления зависит от вашей скорости интернета.

8 / 38 RU
Холодильник / Руководство по эксплуатации
2
Холодильник
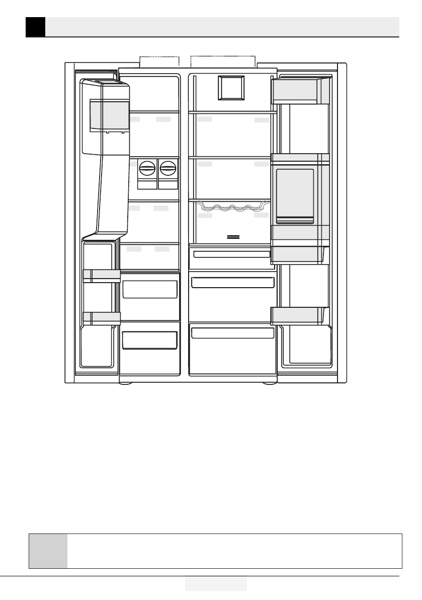
C
* В зависимости от модели: Рисунки в данном руководстве по эксплуатации могут не
полностью соответствовать характеристикам вашего устройства. Если в вашем устройстве
нет соответствующих деталей, информация относится к другим моделям.
1-
Морозильное отделение
2-
Холодильное отделение
3-
Вентилятор
4-
Отсек для масла и сыра
5-
Стеклянные полки
6-
Полки на дверце холодильной камеры
7-
Мини-бар
8-
Емкость для воды
9-
Полка для бутылок
10-
Фильтр запахов
11-
Отсек с нулевой температурой
12-
Емкости для овощей
13-
Регулируемые стойки
14-
Отсеки для хранения замороженных
продуктов
15-
Полки на дверце морозильного отделения
16-
Льдогенератор Icematics
17-
Контейнер для хранения льда
18-
Декоративная крышка льдогенератора с
дозатором
*В зависимости от модели
2
3
*4
5
*6
1
*7
*11
*16
*17
*18
12
13
14
15
13
*8
10
*9
Содержание
- 3 Указания по технике; Содержание
- 4 Указания по технике безопасности и защите
- 5 Указания по безопасности и охране окружающей среды
- 6 опасности для жизни
- 9 Холодильник
- 11 Установка; места для установки; ПРЕДУПРЕЖДЕНИЕ; пластиковых клиньев; Чтобы присоединить клинья, извлеките винты
- 13 Чтобы подсоединить водный шланг к
- 14 применяются резервуары
- 15 на стене
- 16 Трубопровод для воды:
- 17 Потяните на себя и снимите крышку
- 18 Подготовка
- 20 Эксплуатация устройства; *в зависимости от модели; : Рисунки в данном руководстве по эксплуатации
- 22 В зависимости от модели
- 24 Установка температуры холодильной
- 27 водопроводной сети и оснащенных; Подтверждение
- 28 водного фонтана
- 29 Снимите водный резервуар с дверной полки.
- 31 в зависимости от модели)
- 32 и ящик для хранения льда; ЭКСПЛУАТАЦИЯ
- 34 свежих продуктов
- 36 Обслуживание и очистка; неприятных запахов
- 37 Поиск и устранение неисправностей; могут быть не применимы к вашей модели.; по истечении этого времени, обратитесь в сервисную службу.
- 39 не является поломкой.; балансировки холодильника.












