Холодильник Smeg SBS8004P - инструкция пользователя по применению, эксплуатации и установке на русском языке. Мы надеемся, она поможет вам решить возникшие у вас вопросы при эксплуатации техники.
Если остались вопросы, задайте их в комментариях после инструкции.
"Загружаем инструкцию", означает, что нужно подождать пока файл загрузится и можно будет его читать онлайн. Некоторые инструкции очень большие и время их появления зависит от вашей скорости интернета.

Указания по безопасности и охране окружающей среды
7 / 42 RU
Холодильник / Руководство по эксплуатации
2
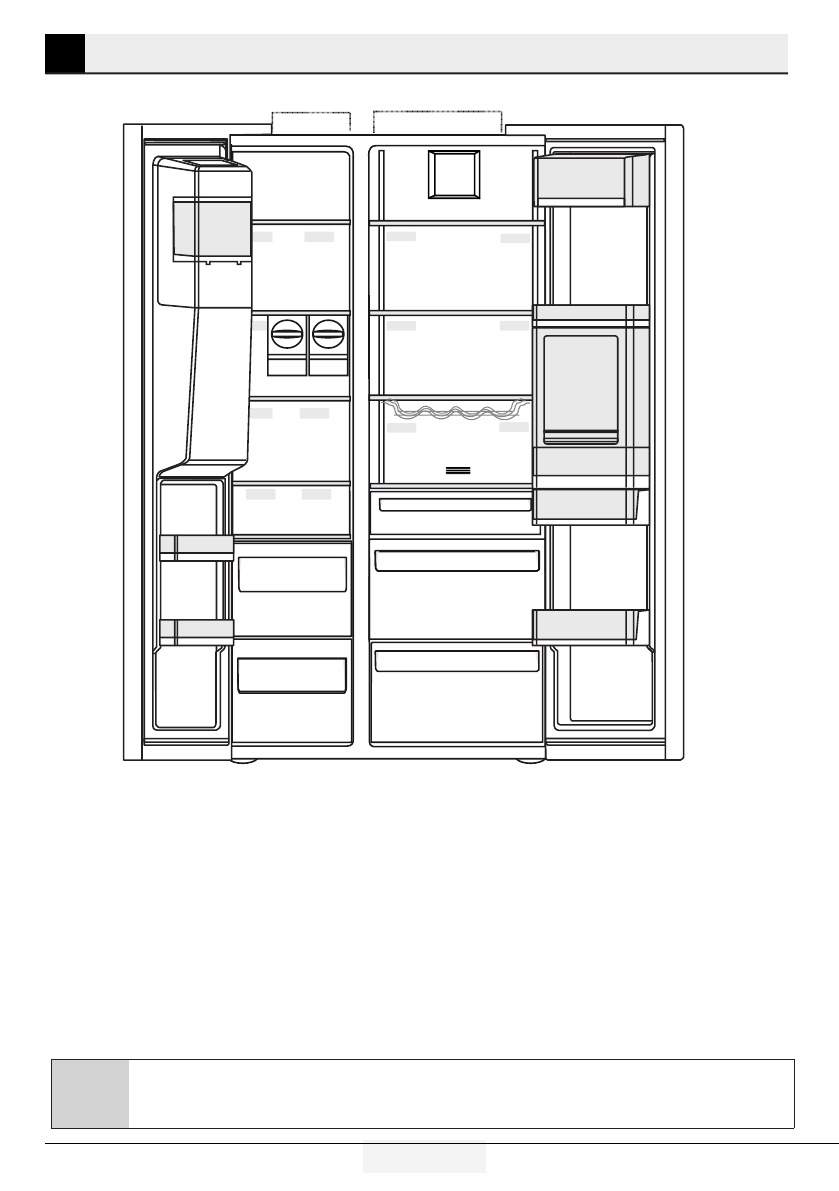
Холодильник
C
* В зависимости от модели: Рисунки в данном руководстве по эксплуатации могут не
полностью соответствовать характеристикам вашего устройства. Если в вашем устройстве
нет соответствующих деталей, информация относится к другим моделям.
1-
Морозильное отделение
2-
Холодильное отделение
3-
Вентилятор
4-
Отсек для масла и сыра
5-
Стеклянные полки
6-
Полки на дверце холодильной камеры
7-
Мини-бар
8-
Емкость для воды
9-
Полка для бутылок
10-
Фильтр запахов
11-
Отсек с нулевой температурой
12-
Емкости для овощей
13-
Регулируемые стойки
14-
Отсеки для хранения замороженных
продуктов
15-
Полки на дверце морозильного отделения
16-
Льдогенератор Icematics
17-
Контейнер для хранения льда
18-
Декоративная крышка льдогенератора с
дозатором
*В зависимости от модели
2
3
*4
5
*6
1
*7
*11
*16
*17
*18
12
13
14
15
13
*8
10
*9