Холодильник SBS Samsung RF61K90407F - инструкция пользователя по применению, эксплуатации и установке на русском языке. Мы надеемся, она поможет вам решить возникшие у вас вопросы при эксплуатации техники.
Если остались вопросы, задайте их в комментариях после инструкции.
"Загружаем инструкцию", означает, что нужно подождать пока файл загрузится и можно будет его читать онлайн. Некоторые инструкции очень большие и время их появления зависит от вашей скорости интернета.

O‘rnatish
O'zbek
34
O‘rnatish
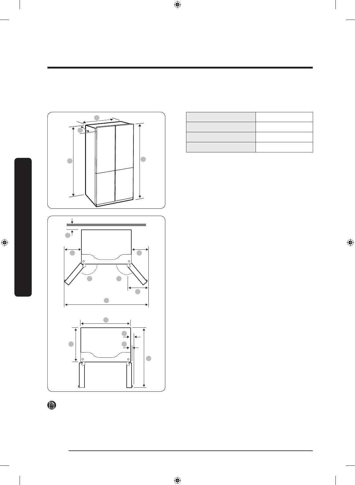
Oraliq bo'shliqlari
O'rnatish uchun kerakli bo'shliq talablari bo'yicha quyidagi rasm va jadvalga qarang.
A
B
C
D
Chuqurligi “A”
733
Eni “B”
908
Bo‘yi “C”
1797
Jami balandligi “D”
1825
(o'lchov birligi: mm)
01
02
02
04
04
05
03
06
08
09
07
10
01
50 mm
02
125°
03
1519 mm
04
300 mm
05
305,5 mm
06
908 mm
07
610 mm
08
72,3 mm
09
43 mm
10
1075 mm
IZOH
Yuqoridagi jadvaldagi hisob-kitoblar o‘lchov usuliga qarab farqlanishi mumkin.
Untitled-6 34
2018-11-01 2:55:53
Содержание
- 3 • Люди с ограниченными физическими, сенсорными или умственными
- 4 В противном случае возникнет риск возгорания или взрыва.
- 5 Важные знаки безопасности и меры предосторожности:; получению серьезной травмы и/или повреждению имущества; ПРИМЕЧАНИЕ; Отнеситесь к ним с особым вниманием.
- 6 установке; повреждения компонентов цепи охлаждения.; Важные замечания по установке; где холодильник может подвергнуться воздействию воды.
- 7 под холодильник и не был поврежден.
- 10 Меры предосторожности при установке; устанавливайте холодильник на плоскую поверхность.
- 11 Важные замечания по использованию
- 15 или разобрать лампу самостоятельно.; Меры предосторожности при эксплуатации; следующие рекомендации:
- 16 помещайте бутылки или стеклянную тару в морозильную камеру.
- 17 Меры предосторожности при очистке
- 18 моющее средство и теплую воду.
- 19 Важные замечания по утилизации; правилами обеспечения безопасности окружающей среды.
- 20 Дополнительные советы по надлежащему использованию; хранения из-за конкретных характеристик продукта.
- 21 Советы по экономии энергии; загораживать вентиляционные отверстия и решетки.; Данное устройство предназначено для использования в бытовых и; предусмотрена розничная торговля.
- 23 Установка; Краткий обзор холодильника
- 24 Освобождение места в морозильной камере
- 25 Дверные отсеки
- 26 Демонтаж двери для удобства транспортировки; Необходимые инструменты (не входят в комплект)
- 28 Демонтаж дверцы морозильной камеры
- 30 Установка дверцы морозильной камеры на место
- 31 Установка дверцы холодильной камеры на место
- 33 Пошаговая установка; Выбор места
- 35 Напольное покрытие; Настройка выравнивающих ножек
- 36 Настройка высоты и зазора дверцы
- 38 Первоначальные настройки; Окончательная проверка
- 39 Эксплуатация; Панель функций
- 42 Особенности; Приготовление льда (только в применимых моделях)
- 45 Обслуживание; Использование и уход; Полки из закаленного стекла (холодильная камера)
- 48 Очистка; Внешние и внутренние поверхности; Замена деталей; Светодиодные лампы
- 49 Общие неисправности
Характеристики
Остались вопросы?Не нашли свой ответ в руководстве или возникли другие проблемы? Задайте свой вопрос в форме ниже с подробным описанием вашей ситуации, чтобы другие люди и специалисты смогли дать на него ответ. Если вы знаете как решить проблему другого человека, пожалуйста, подскажите ему :)












