Холодильник Samsung RB37K6220SS - инструкция пользователя по применению, эксплуатации и установке на русском языке. Мы надеемся, она поможет вам решить возникшие у вас вопросы при эксплуатации техники.
Если остались вопросы, задайте их в комментариях после инструкции.
"Загружаем инструкцию", означает, что нужно подождать пока файл загрузится и можно будет его читать онлайн. Некоторые инструкции очень большие и время их появления зависит от вашей скорости интернета.

Орнату
Казақ
30
Орнат
у
01
03
04
05
06
02
Үлгі
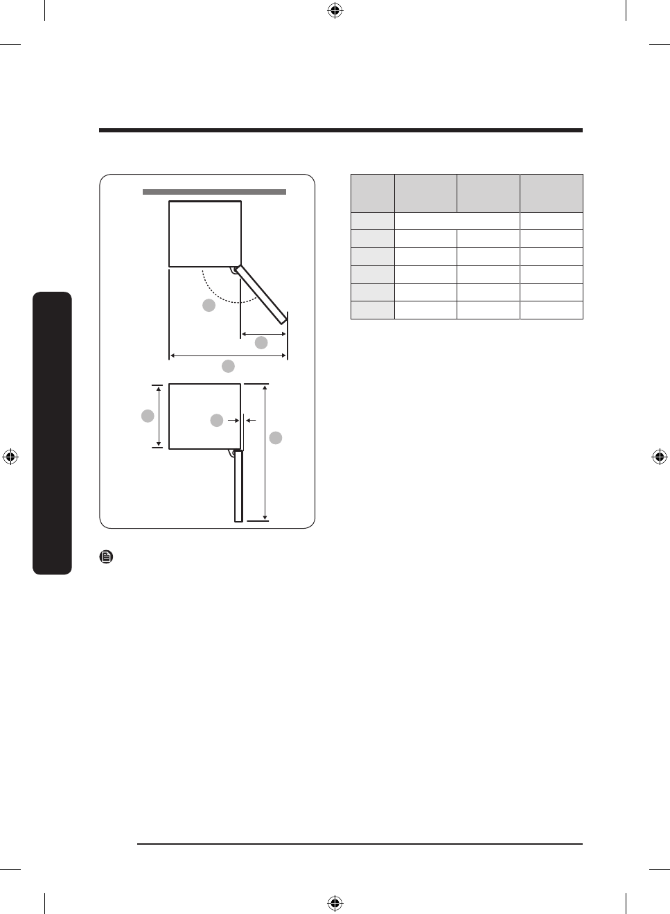
RB34K*
RB37K*
RB37K*
(Шыны есігі
бар үлгі)
01
135°
110°
02
396
396
218
03
991
991
813
04
605
605
605
05
1,6
1,6
26,4
06
1211
1211
1217
(өлшем бірлігі: мм)
ЕСКЕРТПЕ
Жоғарыдағы кестеде берілген өлшемдер, өлшеу тәсіліне қарай өзгеруі мүмкін.
Untitled-10 30
9/21/2017 12:17:47 PM