Холодильник Samsung RB36T677FB1 - инструкция пользователя по применению, эксплуатации и установке на русском языке. Мы надеемся, она поможет вам решить возникшие у вас вопросы при эксплуатации техники.
Если остались вопросы, задайте их в комментариях после инструкции.
"Загружаем инструкцию", означает, что нужно подождать пока файл загрузится и можно будет его читать онлайн. Некоторые инструкции очень большие и время их появления зависит от вашей скорости интернета.

Русский 33
Ус
тановк
а
02
04
05
06
07
03
02
04
05
06
07
03
01
01
01
01
01
01
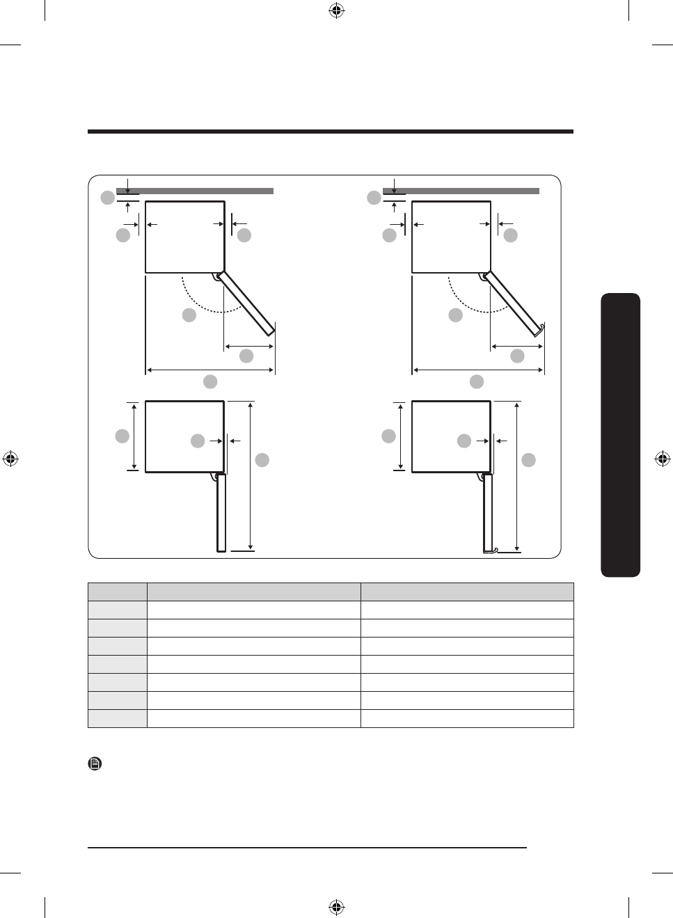
Модель
Ручка в виде углубления
Накладная ручка
01
Рекомендуется более 50 мм
Рекомендуется более 50 мм
02
135°
135°
03
404
433
04
999
1028
05
595
595
06
6
6
07
1210
1217,5
(единица измерения: мм)
ПРИМЕЧАНИЕ
Приведенные в таблице значения могут отличаться в зависимости от метода измерения.
Untitled-19 33
2020-08-04 PM 7:09:56
Содержание
- 71 Что необходимо знать об инструкциях по безопасности; • Предупреждения и важные инструкции по безопасности,
- 72 • Чтобы предотвратить образование огнеопасной смеси газа
- 73 - Очищайте резервуары для воды, если они не использовались; Важные знаки безопасности и меры предосторожности:; получению серьезной травмы, повреждению
- 74 ВНИМАНИЕ; получению серьезной травмы и/или; ПРИМЕЧАНИЕ; • При установке устройства убедитесь, что кабель питания не зажат
- 76 Минимизация потребления энергии
- 78 - организациях общественного питания и аналогичных; ПРЕДУПРЕЖДЕНИЕ; • При перевозке и установке устройства соблюдайте осторожность,
- 79 Важные замечания по установке
- 82 • Никогда не используйте для заземления газовые трубы,
- 83 Меры предосторожности при установке; • Вокруг холодильника должно быть достаточно свободного
- 84 Важные замечания по использованию
- 89 Меры предосторожности при эксплуатации
- 92 Меры предосторожности при очистке
- 94 Важные замечания по утилизации
- 95 Дополнительные советы по надлежащему использованию
- 98 Установка; Краткий обзор холодильника
- 99 Пошаговая установка; Выбор места
- 102 Разделение (только в соответствующих моделях)
- 103 Первоначальные настройки
- 104 Окончательная проверка
- 105 Эксплуатация; Панель управления
- 107 Особенности; Диспенсер воды (только в соответствующих моделях)
- 108 Зона оптимальной свежести+ (только в соответствующих моделях)
- 111 Как лучше всего хранить продукты; Размещение продуктов
- 112 Сроки хранения продуктов в холодильной и морозильной камерах
- 114 Обслуживание
- 115 Перестановка дверец (только в соответствующих моделях); Необходимые инструменты (не входят в комплект поставки)
- 116 Принадлежности; Перестановка дверцы на противоположную сторону
- 129 Использование и уход
- 130 Складывающаяся полка (только в соответствующих моделях)
- 131 Очистка; Внутренняя и наружная часть; Замена деталей; Светодиодные лампы
- 132 Устранение неисправностей; Общие неисправности
- 134 Конденсат
- 135 Холодильник издает странные звуки?; Следующие звуки являются нормальными:
Характеристики
Остались вопросы?Не нашли свой ответ в руководстве или возникли другие проблемы? Задайте свой вопрос в форме ниже с подробным описанием вашей ситуации, чтобы другие люди и специалисты смогли дать на него ответ. Если вы знаете как решить проблему другого человека, пожалуйста, подскажите ему :)












