Холодильник Samsung RB36T670FSA - инструкция пользователя по применению, эксплуатации и установке на русском языке. Мы надеемся, она поможет вам решить возникшие у вас вопросы при эксплуатации техники.
Если остались вопросы, задайте их в комментариях после инструкции.
"Загружаем инструкцию", означает, что нужно подождать пока файл загрузится и можно будет его читать онлайн. Некоторые инструкции очень большие и время их появления зависит от вашей скорости интернета.

Українська 31
Вс
танов
лення
02
04
05
06
07
03
02
04
05
06
07
03
01
01
01
01
01
01
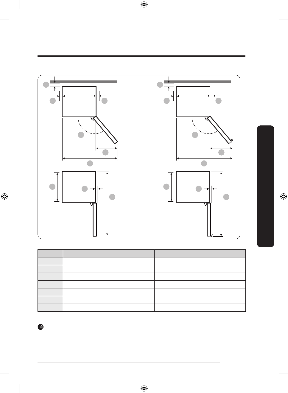
Модель
Моделі з прихованою ручкою
Моделі із зовнішньою ручкою
01
рекомендовано більше 50 мм
рекомендовано більше 50 мм
02
135°
135°
03
404
433
04
999
1028
05
595
595
06
6
6
07
1210
1217,5
(одиниці вимірювання: мм)
ПРИМІТКА
Розміри, подані в таблиці, можуть відрізнятися залежно від способу вимірювання.
Untitled-18 31
2020-08-04 PM 7:07:15
Содержание
- 71 Что необходимо знать об инструкциях по безопасности; • Предупреждения и важные инструкции по безопасности,
- 72 • Чтобы предотвратить образование огнеопасной смеси газа
- 73 - Очищайте резервуары для воды, если они не использовались; Важные знаки безопасности и меры предосторожности:; получению серьезной травмы, повреждению
- 74 ВНИМАНИЕ; получению серьезной травмы и/или; ПРИМЕЧАНИЕ; • При установке устройства убедитесь, что кабель питания не зажат
- 76 Минимизация потребления энергии
- 78 - организациях общественного питания и аналогичных; ПРЕДУПРЕЖДЕНИЕ; • При перевозке и установке устройства соблюдайте осторожность,
- 79 Важные замечания по установке
- 82 • Никогда не используйте для заземления газовые трубы,
- 83 Меры предосторожности при установке; • Вокруг холодильника должно быть достаточно свободного
- 84 Важные замечания по использованию
- 89 Меры предосторожности при эксплуатации
- 92 Меры предосторожности при очистке
- 94 Важные замечания по утилизации
- 95 Дополнительные советы по надлежащему использованию
- 98 Установка; Краткий обзор холодильника
- 99 Пошаговая установка; Выбор места
- 102 Разделение (только в соответствующих моделях)
- 103 Первоначальные настройки
- 104 Окончательная проверка
- 105 Эксплуатация; Панель управления
- 107 Особенности; Диспенсер воды (только в соответствующих моделях)
- 108 Зона оптимальной свежести+ (только в соответствующих моделях)
- 111 Как лучше всего хранить продукты; Размещение продуктов
- 112 Сроки хранения продуктов в холодильной и морозильной камерах
- 114 Обслуживание
- 115 Перестановка дверец (только в соответствующих моделях); Необходимые инструменты (не входят в комплект поставки)
- 116 Принадлежности; Перестановка дверцы на противоположную сторону
- 129 Использование и уход
- 130 Складывающаяся полка (только в соответствующих моделях)
- 131 Очистка; Внутренняя и наружная часть; Замена деталей; Светодиодные лампы
- 132 Устранение неисправностей; Общие неисправности
- 134 Конденсат
- 135 Холодильник издает странные звуки?; Следующие звуки являются нормальными:
Характеристики
Остались вопросы?Не нашли свой ответ в руководстве или возникли другие проблемы? Задайте свой вопрос в форме ниже с подробным описанием вашей ситуации, чтобы другие люди и специалисты смогли дать на него ответ. Если вы знаете как решить проблему другого человека, пожалуйста, подскажите ему :)












