Холодильник Samsung RB34T670FBN/WT - инструкция пользователя по применению, эксплуатации и установке на русском языке. Мы надеемся, она поможет вам решить возникшие у вас вопросы при эксплуатации техники.
Если остались вопросы, задайте их в комментариях после инструкции.
"Загружаем инструкцию", означает, что нужно подождать пока файл загрузится и можно будет его читать онлайн. Некоторые инструкции очень большие и время их появления зависит от вашей скорости интернета.

Русский 33
Ус
тановк
а
02
04
05
06
07
03
02
04
05
06
07
03
01
01
01
01
01
01
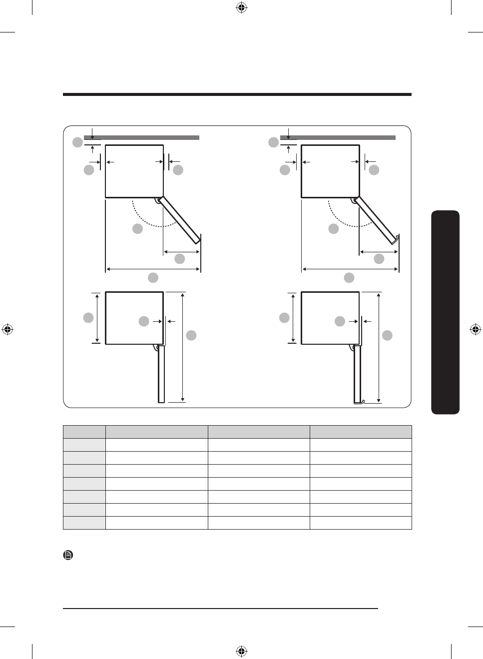
Модель
Ручка в виде углубления
Накладная ручка
Тип Bespoke
01
Рекомендуется более 50 мм
Рекомендуется более 50 мм
Рекомендуется более 50 мм
02
135°
135°
105°
03
404
433
191
04
999
1028
786
05
595
595
595
06
6
6
0
07
1210
1217,5
1207
(единица измерения: мм)
ПРИМЕЧАНИЕ
Приведенные в таблице значения могут отличаться в зависимости от метода измерения.
Untitled-13 33
2021-04-02 6:42:38
Содержание
- 3 Что необходимо знать об инструкциях по безопасности; • Предупреждения и важные инструкции по безопасности,
- 4 • Поскольку данные инструкции по эксплуатации предназначены
- 6 - Если предполагается оставить холодильник на долгое время; Важные знаки безопасности и меры предосторожности:; получению тяжелой травмы, повреждению; ВНИМАНИЕ; получению тяжелой травмы и (или) повреждению; ПРИМЕЧАНИЕ
- 7 Важные меры предосторожности
- 9 Минимизация потребления энергии
- 10 ПРЕДУПРЕЖДЕНИЕ
- 11 Важные замечания по установке; • Не устанавливайте холодильник в помещении с высокой
- 15 Меры предосторожности при установке
- 18 • Не распыляйте на поверхность устройства летучие вещества,
- 21 Меры предосторожности при эксплуатации
- 24 Меры предосторожности при очистке
- 26 Важные замечания по утилизации
- 27 Дополнительные советы по надлежащему использованию
- 30 Установка; Краткий обзор холодильника
- 31 Пошаговая установка; Выбор места
- 34 Разделение (только в соответствующих моделях)
- 35 Регулировка выравнивающих ножек
- 36 Первоначальные настройки; Окончательная проверка
- 37 Эксплуатация; Панель управления
- 40 Особенности; Диспенсер воды (только в соответствующих моделях)
- 42 Зона оптимальной свежести+ (только в соответствующих моделях)
- 44 Обслуживание
- 45 Перестановка дверец (только в соответствующих моделях); Необходимые инструменты (не входят в комплект поставки)
- 46 Принадлежности; Перестановка дверцы на противоположную сторону
- 59 Использование и уход
- 60 Складывающаяся полка (только в соответствующих моделях)
- 61 Очистка; Внутренняя и наружная часть
- 62 Замена деталей; Светодиодные лампы; Дверная панель (только в соответствующих моделях); Установка пары холодильников
- 63 Комплект принадлежностей для установки пары холодильников
- 64 Пошаговая инструкция
- 68 Устранение неисправностей; Общие неисправности; Температура
- 69 Запахи
- 70 Конденсат
- 71 Холодильник издает странные звуки?; Следующие звуки являются нормальными:
Характеристики
Остались вопросы?Не нашли свой ответ в руководстве или возникли другие проблемы? Задайте свой вопрос в форме ниже с подробным описанием вашей ситуации, чтобы другие люди и специалисты смогли дать на него ответ. Если вы знаете как решить проблему другого человека, пожалуйста, подскажите ему :)












