Холодильник SAMSUNG BRB267154WW - инструкция пользователя по применению, эксплуатации и установке на русском языке. Мы надеемся, она поможет вам решить возникшие у вас вопросы при эксплуатации техники.
Если остались вопросы, задайте их в комментариях после инструкции.
"Загружаем инструкцию", означает, что нужно подождать пока файл загрузится и можно будет его читать онлайн. Некоторые инструкции очень большие и время их появления зависит от вашей скорости интернета.

Установка
Русский
32
Ус
тановк
а
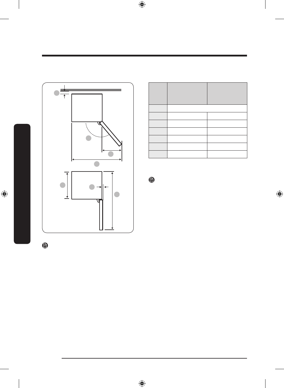
Габаритные размеры устройства
01
02
04
05
06
07
03
Модель
BRB26*0*
BRB30*0*
С ВЫДВИЖНОЙ ПОЛКОЙ
BRB26*1*
BRB30*1*
С ФИКСИРОВАННОЙ
ПОЛКОЙ
01 *
10 (мин.) / 30 (рекомендуется)
02
95° (рекомендуется)
115° (рекомендуется)
03
218
180
04
758
700
05
510
510
06
1
5
07
1055
1055
* 01
: от шкафа до задней стенки устройства.
(единица измерения: мм)
ПРИМЕЧАНИЕ
• Указанный уровень потребления энергии
рассчитан при условии присутствия зазора
величиной 10 мм между шкафом и задней
стенкой устройства. Устройство будет работать
надлежащим образом даже при условии, что зазор
будет менее 10 мм, однако потребление энергии
будет слегка больше.
• Рекомендуется использовать шкаф толщиной
18 мм с петлями толщиной менее 20 мм.
ПРИМЕЧАНИЕ
• Значения, приведенные в таблице выше, могут отличаться в зависимости от метода измерения.
• Инструкции по встроенной установке смотрите в руководстве по установке.
Untitled-6 32
2021-04-06 6:11:44
Содержание
- 59 Что необходимо знать об инструкциях по безопасности; • Предупреждения и важные инструкции по безопасности,
- 61 - Очищайте резервуары для воды, если они не использовались
- 62 Важные знаки безопасности и меры предосторожности:; получению тяжелой травмы, повреждению; ВНИМАНИЕ; получению тяжелой травмы и (или) повреждению; ПРИМЕЧАНИЕ
- 63 Важные меры предосторожности
- 65 Минимизация потребления энергии
- 67 ПРЕДУПРЕЖДЕНИЕ; • При перевозке и установке устройства соблюдайте осторожность,; Важные замечания по установке; • Не устанавливайте холодильник в помещении с высокой
- 71 Меры предосторожности при установке
- 72 Важные замечания по использованию
- 77 Меры предосторожности при эксплуатации
- 79 Меры предосторожности при очистке
- 81 Важные замечания по утилизации
- 82 Дополнительные советы по надлежащему использованию
- 83 • Холодильник может работать нестабильно (могут растаять
- 85 Установка; Краткий обзор холодильника
- 86 Пошаговая установка; Выбор места
- 94 Напольное покрытие
- 95 Регулировка выравнивающих ножек
- 96 Первоначальные настройки
- 97 Окончательная проверка
- 98 Эксплуатация; Панель функций
- 102 Рекомендации по хранению продуктов; Заморозка продуктов; Материалы, используемые для упаковки
- 103 Продолжительность хранения замороженных продуктов; Размораживание
- 104 Обслуживание; Использование и уход; Полка для овощей (только в соответствующих моделях)
- 105 Отсек холодильной камеры / отсек для различных продуктов; Ящик холодильной камеры / ящик морозильной камеры
- 106 Очистка; Внутренняя и наружная часть; Замена деталей; Светодиодные лампы
- 107 Устранение неисправностей; Общие неисправности
- 108 Запах
- 109 Иней
- 110 Холодильник издает странные звуки?; Следующие звуки являются нормальными:
Характеристики
Остались вопросы?Не нашли свой ответ в руководстве или возникли другие проблемы? Задайте свой вопрос в форме ниже с подробным описанием вашей ситуации, чтобы другие люди и специалисты смогли дать на него ответ. Если вы знаете как решить проблему другого человека, пожалуйста, подскажите ему :)












