Холодильник SAMSUNG BRB266050WW - инструкция пользователя по применению, эксплуатации и установке на русском языке. Мы надеемся, она поможет вам решить возникшие у вас вопросы при эксплуатации техники.
Если остались вопросы, задайте их в комментариях после инструкции.
"Загружаем инструкцию", означает, что нужно подождать пока файл загрузится и можно будет его читать онлайн. Некоторые инструкции очень большие и время их появления зависит от вашей скорости интернета.

Орнату
Қазақ
32
Орнат
у
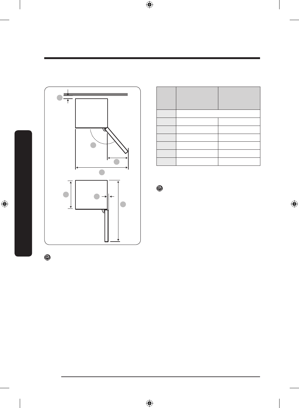
Өнімнің жалпы өлшемі
01
02
04
05
06
07
03
Үлгі
BRB26*0*
BRB30*0*
СЫРҒЫТПА
ҚҰРЫЛҒЫ
BRB26*1*
BRB30*1*
ТҰРАҚТЫ
ОРНАТЫЛҒАН
01 *
10 (Мин.) / 30 (Ұсынылған)
02
95° (Ұсынылған)
115° (Ұсынылған)
03
218
180
04
758
700
05
510
510
06
1
5
07
1055
1055
* 01
: Корпустан өнімнің сыртына қарай
(өлшем бірлігі: мм)
ЕСКЕРТПЕ
• Ұсынылатын қуат пайдалану мөлшері
корпустан құрылғының артына дейінгі орын 10
мм деген есепке негізделген. Бұл орын 10 мм
болса да құрылғы дұрыс жұмыс істейді, бірақ
пайдаланылатын қуат мөлшері сәл артады.
• Біз қалыңдығы 18 мм, топсаларының
қалыңдығы 20 мм-ден аз болатын корпусты
пайдалануды ұсынамыз.
ЕСКЕРТПЕ
• Жоғарыдағы кестеде берілген өлшемдер, өлшеу тәсіліне қарай өзгеруі мүмкін.
• Кіріктіріп орнату үшін Орнату нұсқаулығын қараңыз.
Untitled-5 32
2021-04-06 4:06:18
Содержание
- 3 Что необходимо знать об инструкциях по безопасности; • Предупреждения и важные инструкции по безопасности,
- 4 • Поскольку данные инструкции по эксплуатации предназначены
- 6 - Если предполагается оставить холодильник на долгое время; Важные знаки безопасности и меры предосторожности:; получению тяжелой травмы, повреждению; ВНИМАНИЕ; получению тяжелой травмы и (или) повреждению; ПРИМЕЧАНИЕ
- 7 Важные меры предосторожности
- 9 Минимизация потребления энергии
- 11 ПРЕДУПРЕЖДЕНИЕ; • При перевозке и установке устройства соблюдайте осторожность,; Важные замечания по установке; • Не устанавливайте холодильник в помещении с высокой
- 15 Меры предосторожности при установке
- 16 Важные замечания по использованию
- 21 Меры предосторожности при эксплуатации
- 23 Меры предосторожности при очистке
- 25 • Не применяйте абразивные или агрессивные моющие
- 26 Важные замечания по утилизации
- 27 Дополнительные советы по надлежащему использованию
- 30 Установка; Краткий обзор холодильника
- 31 Пошаговая установка; Выбор места
- 39 Напольное покрытие
- 40 Регулировка выравнивающих ножек
- 41 Первоначальные настройки
- 42 Окончательная проверка
- 43 Эксплуатация; Панель функций
- 47 Рекомендации по хранению продуктов; Заморозка продуктов; Материалы, используемые для упаковки
- 48 Продолжительность хранения замороженных продуктов; Размораживание
- 49 Обслуживание; Использование и уход; Полка для овощей (только в соответствующих моделях)
- 50 Отсек холодильной камеры / отсек для различных продуктов; Ящик холодильной камеры / ящик морозильной камеры
- 51 Очистка; Внутренняя и наружная часть; Замена деталей; Светодиодные лампы
- 52 Устранение неисправностей; Общие неисправности; Температура
- 53 Запах
- 54 Иней
- 55 Холодильник издает странные звуки?; Следующие звуки являются нормальными:
Характеристики
Остались вопросы?Не нашли свой ответ в руководстве или возникли другие проблемы? Задайте свой вопрос в форме ниже с подробным описанием вашей ситуации, чтобы другие люди и специалисты смогли дать на него ответ. Если вы знаете как решить проблему другого человека, пожалуйста, подскажите ему :)