Холодильник Maunfeld MFF181NFW - инструкция пользователя по применению, эксплуатации и установке на русском языке. Мы надеемся, она поможет вам решить возникшие у вас вопросы при эксплуатации техники.
Если остались вопросы, задайте их в комментариях после инструкции.
"Загружаем инструкцию", означает, что нужно подождать пока файл загрузится и можно будет его читать онлайн. Некоторые инструкции очень большие и время их появления зависит от вашей скорости интернета.

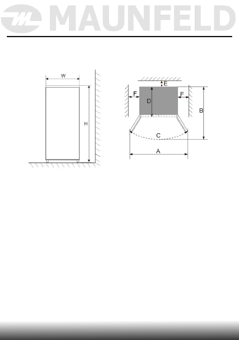
УСТАНОВКА ХОЛОДИЛЬНИКА
-
14
-
www.maunfeld.ru
РИСУНОК
-
СХЕМА РЕКОМЕНДУЕМОГО РАЗМЕЩЕНИЯ
ХОЛОДИЛЬНИКА
Примечание
: На рисунках иллюстрируются пространство,
необходимое для продукта.
3. Установка
Поместите холодильник на твердое и ровное основание (пол),
чтобы он был устойчивым, в противном случае неправильная
установка вызовет вибрацию и шум.
Если холодильник установлен в месте с повышенной влажностью,
убедитесь, что провод заземления и автоматический выключатель
утечки находятся в нормальном состоянии. Если из
-
за контакта
холодильника со стеной возникает вибрационный шум или если
стенка почернела из
-
за конвекции воздуха вокруг компрессора,
отодвиньте холодильник от стены. Установка холодильника может
вызвать помехи на мобильном телефоне, стационарном телефоне,
радиоприемнике, телевизоре, окружающем его, поэтому старайтесь
держать холодильник как можно дальше в таком случае.
Содержание
- 3 СОДЕРЖАНИЕ
- 4 РЕКОМЕНДАЦИИ; ВНИМАТЕЛЬНО ОЗНАКОМЬТЕСЬ С ИНСТРУКЦИЕЙ И
- 6 МЕРЫ БЕЗОПАСНОСТИ
- 8 ХЛАДАГЕНТ И РИСК ВОЗНИКНОВЕНИЯ ПОЖАРА
- 9 ТЕХНИЧЕСКИЕ ДАННЫЕ; РАСШИФРОВКА АББРЕВИАТУР; NF; SB
- 11 ДАННЫЕ ПО ЭНЕРГОПОТРЕБЛЕНИЮ; ЭКОЛОГИЧЕСКОЕ ПРЕДУПРЕЖДЕНИЕ
- 12 ПОДКЛЮЧЕНИЕ К ЭЛЕКТРОСЕТИ
- 13 РЕКОМЕНДАЦИИ ПО УСТАНОВКЕ
- 14 УСТАНОВКА ХОЛОДИЛЬНИКА; РИСУНОК
- 15 Примечание
- 16 РЕКОМЕНДАЦИЯ ПО ВЫРАВНИВАНИЮ ХОЛОДИЛЬНИКА
- 17 ОПИСАНИЕ ХОЛОДИЛЬНИКА; КЛИМАТИЧЕСКИЙ КЛАСС
- 18 ОПИСАНИЕ ХОЛОДИЛЬНИКА
- 21 ПАНЕЛЬ УПРАВЛЕНИЯ
- 22 ПЕРВОЕ ВКЛЮЧЕНИЕ
- 23 обязательно; УСТАНОВКА ТЕМПЕРАТУРЫ В ХОЛОДИЛЬНОМ ОТДЕЛЕНИИ
- 24 ОПИСАНИЕ ФУНКЦИЙ; ФУНКЦИЯ «БЫСТРОЕ ОХЛАЖДЕНИЕ»; Lock
- 25 ФУНКЦИЯ «БЫСТРАЯ ЗАМОРОРОЗКА»; Быстрой заморозки
- 26 ФУНКЦИЯ «СМАРТ»; Smart
- 27 ФУНКЦИЯ «ОТПУСК»; Внимание
- 28 ФУНКЦИЯ «БЛОКИРОВКА ОТ ДЕТЕЙ»
- 29 ФУНКЦИЯ СИГНАЛИЗАЦИИ ОТКРЫТОЙ ДВЕРИ; ФУНКЦИЯ ОТКЛЮЧЕНИЕ ПАМЯТИ.
- 30 ХОЛОДИЛЬНАЯ КАМЕРА; Ящики для овощей и фруктов.
- 31 СОВЕТЫ ПО ХРАНЕНИЮ ПРОДУКТОВ
- 32 ИСПОЛЬЗОВАНИЕ РЕГУЛЯТОРА ВЛАЖНОСТИ
- 33 МОРОЗИЛЬНАЯ КАМЕРА
- 34 СОВЕТЫ ПО ЗАМОРАЖИВАНИЮ ПРОДУКТОВ
- 35 ВЫКЛЮЧЕНИЕ ХОЛОДИЛЬНИКА
- 36 СОВЕТЫ ПО ЭНЕРГОСБЕРЕЖЕНИЮ
- 37 ЧИСТКА И УХОД
- 39 УСТРАНЕНИЕ НЕПОЛАДОК; Проблема
- 41 ЗАМЕНА LED ОСВЕЩЕНИЯ
- 42 ТЕХНИЧЕСКОЕ ОБСЛУЖИВАНИЕ; ИНФОРМАЦИЯ О ТРАНСПОРТИРОВКЕ
- 43 СЕРВИСНОЕ ОБСЛУЖИВАНИЕ; СЕРВИСНОЕ ОБСЛУЖИВАНИЕ ПОСЛЕ ПРОДАЖИ; Просим вас придерживаться следующих мер:
- 44 ИНФОРМАЦИЯ ОТ ПРОИЗВОДИТЕЛЯ; XXXXXXXXXXXX