Холодильник Maunfeld MFF177NFBE - инструкция пользователя по применению, эксплуатации и установке на русском языке. Мы надеемся, она поможет вам решить возникшие у вас вопросы при эксплуатации техники.
Если остались вопросы, задайте их в комментариях после инструкции.
"Загружаем инструкцию", означает, что нужно подождать пока файл загрузится и можно будет его читать онлайн. Некоторые инструкции очень большие и время их появления зависит от вашей скорости интернета.

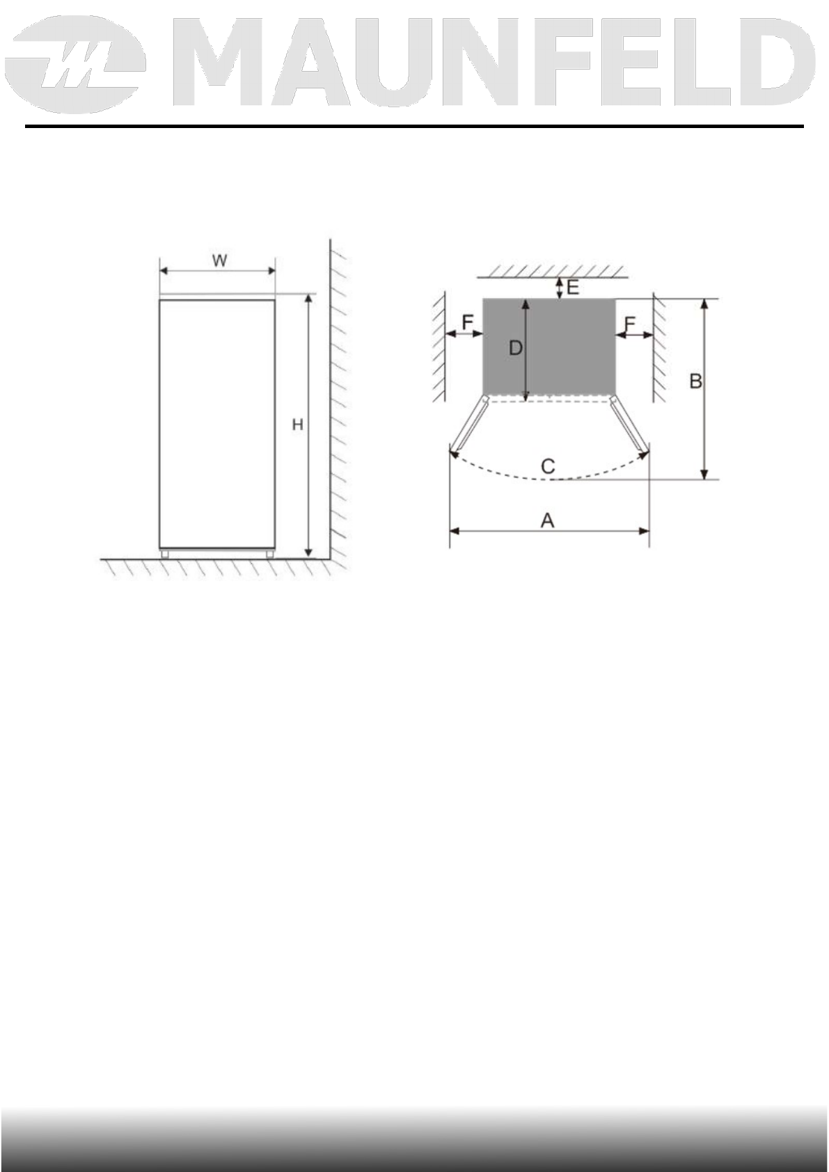
УСТАНОВКА ХОЛОДИЛЬНИКА
РИСУНОК-СХЕМА РЕКОМЕНДУЕМОГО РАЗМЕЩЕНИЯ
ХОЛОДИЛЬНИКА
Примечание
: На рисунках иллюстрируются пространство,
необходимое для продукта.
3. Установка
Поместите холодильник на твердое и ровное основание (пол),
чтобы он был устойчивым, в противном случае неправильная
установка вызовет вибрацию и шум.
-14-
www.maunfeld.ru
чтобы он был устойчивым, в противном случае неправильная
установка вызовет вибрацию и шум.
Если холодильник установлен в месте с повышенной влажностью,
убедитесь, что провод заземления и автоматический выключатель
утечки находятся в нормальном состоянии. Если из-за контакта
холодильника со стеной возникает вибрационный шум или если
стенка почернела из-за конвекции воздуха вокруг компрессора,
отодвиньте холодильник от стены. Установка холодильника может
вызвать помехи на мобильном телефоне, стационарном телефоне,
радиоприемнике, телевизоре, окружающем его, поэтому старайтесь
держать холодильник как можно дальше в таком случае.