Холодильник Liebherr KBPgw 4354 Premium BioFresh - инструкция пользователя по применению, эксплуатации и установке на русском языке. Мы надеемся, она поможет вам решить возникшие у вас вопросы при эксплуатации техники.
Если остались вопросы, задайте их в комментариях после инструкции.
"Загружаем инструкцию", означает, что нужно подождать пока файл загрузится и можно будет его читать онлайн. Некоторые инструкции очень большие и время их появления зависит от вашей скорости интернета.

1.2 Область применения устройства
Применение по назначению
Устройство предназначено исключительно
для охлаждения пищевых продуктов в
домашних условиях или условиях, прибли-
женных к домашним. Сюда относится,
например, использование
-
на кухнях частных лиц, в столовых,
-
в частных пансионатах, отелях, мотелях и
других местах проживания,
-
при обеспечении готовым питанием и
аналогичных услугах оптовой торговли.
Все другие виды применения являются
недопустимыми.
Предсказуемое ненадлежащее исполь-
зование
Следующее использование запрещается в
явном виде:
-
Хранение и охлаждение медикаментов,
плазмы крови, лабораторных препаратов
или аналогичных веществ и продуктов,
лежащих в основе директивы по медицин-
ской продукции 2007/47/EG.
-
Использование во взрывоопасных зонах.
-
Использование на подвижных носителях,
таких как корабли, рельсовый транспорт
или самолеты.
-
Хранение живых животных.
Неправильное использование устройства
может привести к повреждению хранящихся
изделий или к их порче.
Климатические классы
Устройство предназначено для эксплуа-
тации в ограниченном диапазоне темпера-
туры окружающей среды в зависимости от
климатического класса. Климатический
класс, соответствующий данному устрой-
ству, указан на заводской табличке.
Указание
u
Для обеспечения безупречной работы
соблюдать заданную температуру окру-
жающей среды.
Климатиче-
ский класс
для температуры окружающего
воздуха
SN
10 °C до 32 °C
N
16 °C до 32 °C
ST
16 °C до 38 °C
T
16 °C до 43 °C
1.3 Декларация соответствия
Контур хладагента проверен на герметичность. Устрой-
ство отвечает соответствующим предписаниям по технике
безопасности, а также директивам ЕС 2006/95/EС,
2004/108/EС, 2009/125/EС и 2010/30/EС.
Отделение BioFresh соответствует требованиям, предъя-
вляемым к холодильным отделениям согласно стандарту
EN ISO 15502.
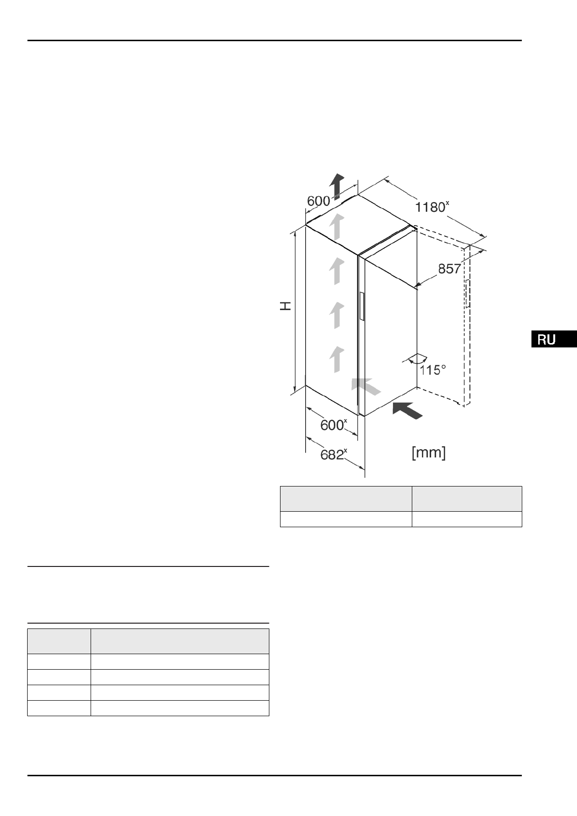
1.4 Габариты для установки
Fig. 2
Модель
Высота устройства
H (мм)
KBP(cv/gb/gw) 43.. / KBicv 43..
1850
x
При использовании пристенных распорок этот размер
увеличивается на 15 мм (см. 4.2) .
Размеры при открытой двери действительны для угла
открывания 115 °. Расстояния зависят от угла открывания.
1.5 Экономия электроэнергии
-
Всегда следите за хорошим притоком и оттоком
воздуха. Не закрывайте вентиляционные отверстия /
решетки.
-
Избегайте устанавливать устройство в зоне прямых
солнечных лучей, рядом с плитой, системой отопления и
т. п.
-
Потребление электроэнергии зависит от условий в
месте установки, например, от температуры окру-
жающей среды (см. 1.2) .
-
Открывайте устройство на предельно короткое время.
-
Чем ниже заданная температура, тем больше потре-
бление электроэнергии.
-
Сортируйте продукты при размещении (см. Основные
отличительные особенности устройства).
-
Храните все продукты хорошо запакованными и закры-
тыми. Это поможет избежать образования инея.
Основные отличительные особенности устройства
* Наличие в зависимости от модели и комплектации
3
Характеристики
Остались вопросы?Не нашли свой ответ в руководстве или возникли другие проблемы? Задайте свой вопрос в форме ниже с подробным описанием вашей ситуации, чтобы другие люди и специалисты смогли дать на него ответ. Если вы знаете как решить проблему другого человека, пожалуйста, подскажите ему :)