Холодильник Liebherr KBGW 3864 - инструкция пользователя по применению, эксплуатации и установке на русском языке. Мы надеемся, она поможет вам решить возникшие у вас вопросы при эксплуатации техники.
Если остались вопросы, задайте их в комментариях после инструкции.
"Загружаем инструкцию", означает, что нужно подождать пока файл загрузится и можно будет его читать онлайн. Некоторые инструкции очень большие и время их появления зависит от вашей скорости интернета.

домашним. Сюда относится, например,
использование
-
на домашних кухнях, в столовых,
-
в частных пансионатах, отелях, мотелях и
других местах проживания,
-
при обеспечении готовым питанием и
аналогичных услугах оптовой торговли
Прибор можно использовать только в
домашних и схожих условиях. Все другие
способы применения являются недопусти-
мыми. Устройство не предназначено для
хранения и охлаждения медикаментов,
плазмы крови, лабораторных препаратов
или похожих веществ, лежащих в основе
директивы
медицинской
продукции
2007/47/EG. Неправильное использование
устройства может привести к поврежде-
ниям хранящихся изделий или к их порче.
Устройство не подходит для эксплуатации
во взрывоопасной области.
Устройство предназначено для эксплуа-
тации в ограниченном диапазоне темпера-
туры окружающей среды в зависимости от
климатического класса. Климатический
класс, соответствующий Вашему устрой-
ству, указан на заводской табличке.
Указание
u
Выдерживайте указанную температуру
окружающего воздуха, иначе мощность
охлаждения снижается.
Климатиче-
ский класс
для температуры окружающего
воздуха
SN
10 °C до 32 °C
N
16 °C до 32 °C
ST
16 °C до 38 °C
T
16 °C до 43 °C
1.3 Декларация соответствия
Контур хладагента проверен на герметичность. Устрой-
ство отвечает соответствующим предписаниям по технике
безопасности, а также директивам ЕС 2006/95/EС,
2004/108/EС, 2009/125/EС и 2010/30/EС.
Отделение BioFresh соответствует требованиям, предъя-
вляемым к холодильным отделениям согласно стандарту
EN ISO 15502.
Указание для проверяющих органов:
Проверки следует проводить согласно действующим
нормам и директивам.
Подготовка и проверка устройств должна выполняться
с учетом схем загрузки от производителя и указа-
ниям, содержащимся в руководстве по эксплуа-
тации.
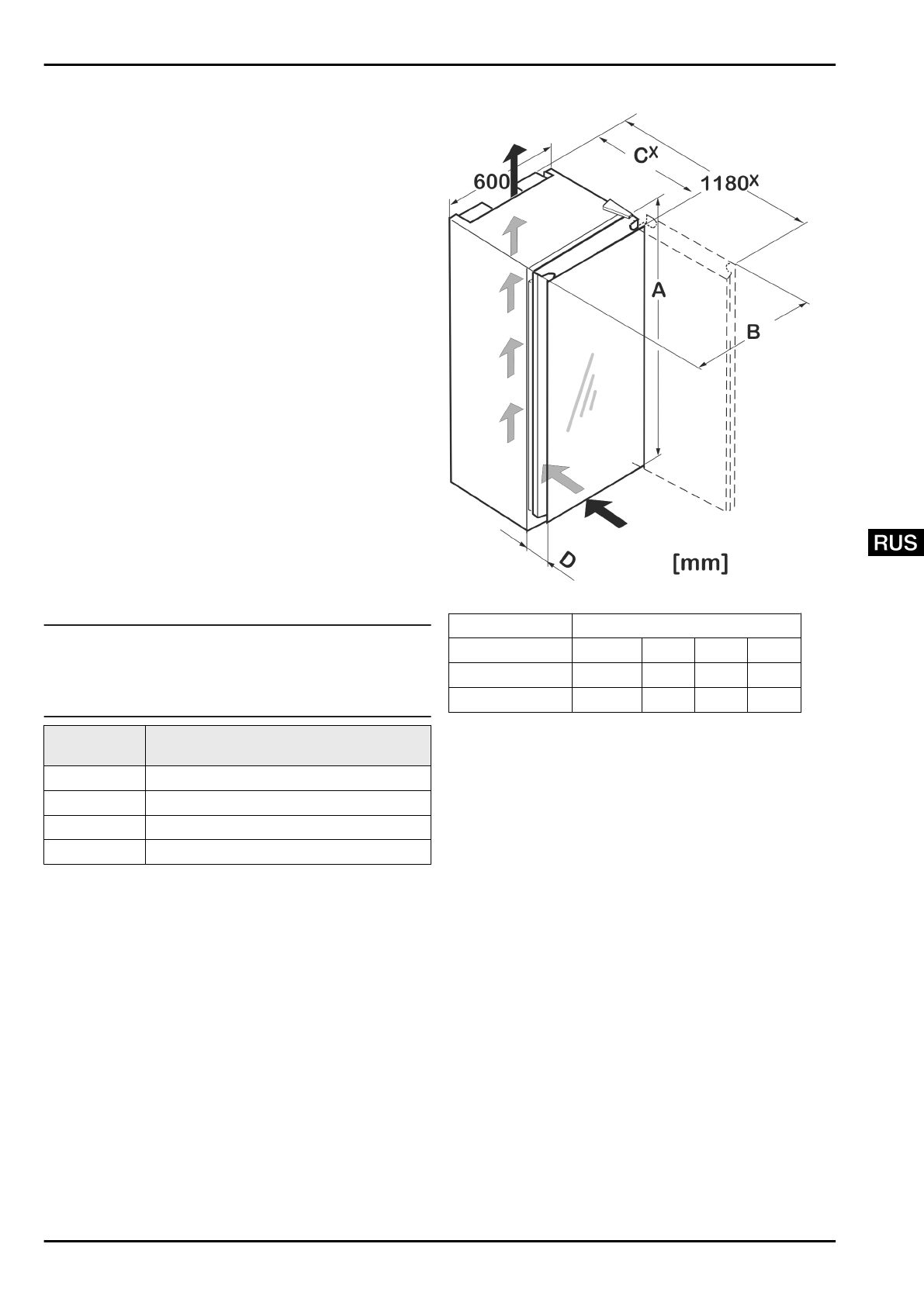
1.4 Размеры для установки
Fig. 2
Обозначение
(mm)
A
B
C
D
KBgb/KBgw 38..
1852
625
650
90
KBs 38..
1852
629
654
94
x
В устройствах, в комплект поставки которых входят
пристенные распорки, величина увеличивается на 35 мм
1.5 Экономия электроэнергии
-
Всегда следите за хорошим притоком и оттоком
воздуха. Не закрывайте вентиляционные отверстия/
решетки.
-
Вентиляционный воздушный зазор должен всегда оста-
ваться открытым.
-
Избегайте устанавливать устройство в зоне прямых
солнечных лучей, рядом с плитой, системой отопления
и другими аналогичными приборами.
-
Потребление электроэнергии зависит от условий в
меcте установки, например, температуры окружающей
-
Открывайте устройство на предельно короткое время.
-
Чем ниже заданная температура, тем больше потре-
бление электроэнергии.
-
Сортируйте продукты при размещении (см. Основные
отличительные особенности устройства).
-
Храните все продукты хорошо запакованными и закры-
тыми. Это поможет избежать образования инея.
-
Вынимайте продукты на как можно менее продолжи-
тельный срок, чтобы они не сильно нагрелись.
-
Закладка теплых блюд: сначала дайте им остыть до
комнатной температуры.
-
Продукты глубокой заморозки для оттаивания оставьте
в холодильной камере.
Основные отличительные особенности устройства
* Наличие в зависимости от модели и комплектации
3