Холодильник Liebherr KB 3160_KB 3660 - инструкция пользователя по применению, эксплуатации и установке на русском языке. Мы надеемся, она поможет вам решить возникшие у вас вопросы при эксплуатации техники.
Если остались вопросы, задайте их в комментариях после инструкции.
"Загружаем инструкцию", означает, что нужно подождать пока файл загрузится и можно будет его читать онлайн. Некоторые инструкции очень большие и время их появления зависит от вашей скорости интернета.

д
.
д
,
,
-
д
,
,
-
,
,
д
,
-
д
.
д
д -
.
д
д
д
д
,
,
,
д
д
д
/ /EG.
-
д
д
.
д д д
-
.
д
д
-
д
д
.
,
,
д
.
u
д
д
,
д
.
-
д
д
БN
°C д °C
N
°C д °C
БВ
°C д °C
В
°C д °C
.
д
.
-
д
,
д
/ /E ,
/
/E ,
/
/E
/ /E .
д
B4oFr0s3
,
д -
д
д
д
EN IБO
.
.
д
F42.
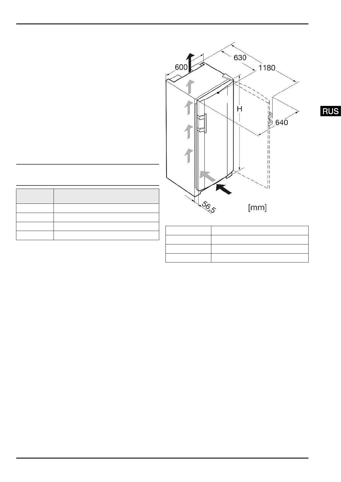
H
KB
KB
KB
. Э
-
д
д
д
.
/
.
-
д
д
д
-
.
-
, д
,
д
.
-
c
,
,
-
д
.
-
д
,
-
.
-
д
.
.
-
д
-
.
.
-
д
д
-
,
.
-
д
д:
д
д
.
-
д
. . . .