Холодильник Liebherr IRBE 5121-20 001 - инструкция пользователя по применению, эксплуатации и установке на русском языке. Мы надеемся, она поможет вам решить возникшие у вас вопросы при эксплуатации техники.
Если остались вопросы, задайте их в комментариях после инструкции.
"Загружаем инструкцию", означает, что нужно подождать пока файл загрузится и можно будет его читать онлайн. Некоторые инструкции очень большие и время их появления зависит от вашей скорости интернета.

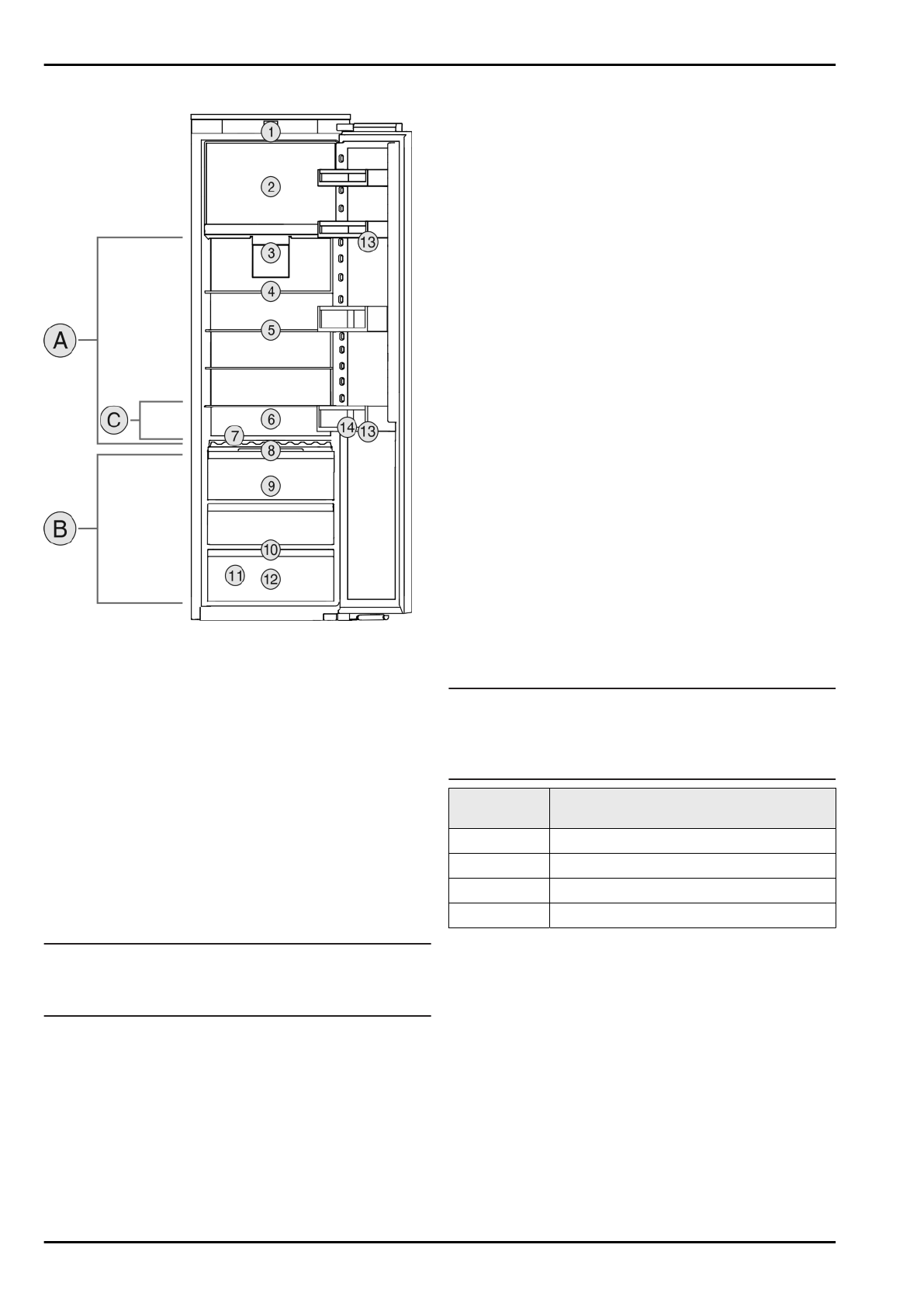
1.2 Обзор устройства и оснащения
Fig. 1 Примерное отображение
Температурные зоны
(A)
Холодильное отде-
ление
(B)
BioFresh
(C)
Самая холодная зона
Оснащение
(1)
Элементы управления
(8)
Крышка Fruit &
Vegetable-Safe
(2)
Морозильная камера
4 звезды*
(9)
Fruit & Vegetable-Safe
(3)
Вентилятор с филь-
тром из активирован-
ного угля FreshAir
(10)
Отверстие для стока
(4)
Разделяемая съемная
полка
(11)
Заводская табличка
(5)
Съемная полка
(12)
Meat & Dairy-Safe
(6)
Место для противня
(13)
Полки на двери
(7)
Сменная полка для
хранения бутылок
(14)
Держатель для бутылок
Указание
u
Полки для хранения, выдвижные ящики или корзины
в состоянии поставки расположены для оптимального
энергосбережения.
1.3 Область применения устройства
Применение по назначению
Данное устройство предназначено исключи-
тельно для охлаждения пищевых продуктов
в домашних условиях или условиях, близких
к домашним. Сюда относится, например,
следующее использование:
-
на кухнях частных лиц, в столовых,
-
в частных пансионатах, отелях, мотелях и
других местах проживания,
-
при обеспечении готовым питанием и
аналогичных услугах оптовой торговли.
Устройство не предназначено для замора-
живания пищевых продуктов.*
Все другие виды применения являются
недопустимыми.
Предсказуемое ненадлежащее исполь-
зование
Следующее использование запрещается в
явном виде:
-
Хранение и охлаждение медикаментов,
плазмы крови, лабораторных препаратов
или аналогичных веществ и продуктов,
лежащих в основе директивы по медицин-
ской продукции 2007/47/EG
-
Использование во взрывоопасных зонах.
Неправильное использование устройства
может привести к повреждению хранящихся
изделий или к их порче.
Климатические классы
Устройство
предназначено
для
эксплуатации в ограниченном диапазоне
температуры окружающей среды в зависи-
мости от климатического класса. Климати-
ческий класс, соответствующий данному
устройству, указан на заводской табличке.
Указание
u
Для обеспечения безупречной работы
соблюдать заданную температуру окру-
жающей среды.
Климатиче-
ский класс
для температуры окружающего воздуха
SN
10 °C до 32 °C
N
16 °C до 32 °C
ST
16 °C до 38 °C
T
16 °C до 43 °C
1.4 Декларация соответствия
Контур хладагента проверен на герметичность. Устрой-
ство в смонтированном состоянии отвечает соответ-
ствующим предписаниям по технике безопасности,
а также директивам ЕС 2014/35/EU, 2014/30/EU,
2009/125/EG, 2011/65/EU и 2010/30/EU.
Отделение BioFresh соответствует требованиям, предъя-
вляемым к холодильным отделениям согласно стандарту
DIN EN 62552:2020.
1.5 База данных EPREL
С 1 марта 2021 года информацию о маркировке класса
энергопотребления и требованиях по экологическому
проектированию электропотребляющей продукции можно
найти в Европейской базе данных для продукции, подле-
Основные отличительные особенности устройства
* Наличие в зависимости от модели и комплектации
3
Содержание
- 3 Обзор устройства и оснащения; Область применения устройства; Применение по назначению; Декларация соответствия
- 4 Общие указания по безопас-; Общие указания по безопасности
- 5 Включение устройства; Вставка оснащения; Ввод в работу
- 6 Управление пищевыми; Хранение продуктов; Управление пищевыми продуктами
- 7 Экономия электроэнергии
- 8 кации; Управление
- 9 Логика управления
- 14 камеру; Разделяемая съемная полка; полку; Оснащение
- 15 Место для противня
- 16 Регулировка влаги
- 17 ванным углем; ванным углем FreshAir; Уход
- 18 Размораживание устройства; камеры; Чистка устройства; Технические данные; Поддержка клиентов
- 19 Техническая неисправность
- 21 Сервисная служба; Заводская табличка; 0 Отключение; 2 Информация об изготови-; Отключение
- 22 Встраиваемый холодильник с отделением BioFresh
Характеристики
Остались вопросы?Не нашли свой ответ в руководстве или возникли другие проблемы? Задайте свой вопрос в форме ниже с подробным описанием вашей ситуации, чтобы другие люди и специалисты смогли дать на него ответ. Если вы знаете как решить проблему другого человека, пожалуйста, подскажите ему :)