Холодильник Liebherr CNbs 4315 Comfort NoFrost - инструкция пользователя по применению, эксплуатации и установке на русском языке. Мы надеемся, она поможет вам решить возникшие у вас вопросы при эксплуатации техники.
Если остались вопросы, задайте их в комментариях после инструкции.
"Загружаем инструкцию", означает, что нужно подождать пока файл загрузится и можно будет его читать онлайн. Некоторые инструкции очень большие и время их появления зависит от вашей скорости интернета.

Указание
u
Места для хранения, выдвижные ящики или корзины в
состоянии поставки расположены для оптимального
энергосбережения.
1.2 Область применения устройства
Применение по назначению
Устройство предназначено исключительно
для охлаждения пищевых продуктов в
домашних условиях или условиях, прибли-
женным к домашним. Сюда относится, к
примеру, использование
-
на домашних кухнях, в столовых,
-
в частных пансионатах, отелях, мотелях и
других местах проживания,
-
при обеспечении готовым питанием и
аналогичных услугах оптовой торговли
Все другие виды применения являются
недопустимыми.
Предсказуемое ненадлежащее исполь-
зование
Следующее использование запрещается в
явном виде:
-
Хранение и охлаждение медикаментов,
плазмы крови, лабораторных препаратов
или аналогичных веществ и продуктов,
лежащих в основе директивы по медицин-
ской продукции 2007/47/EG
-
Использование во взрывоопасных зонах
-
Использование на подвижных носителях,
таких как корабли, рельсовый транспорт
или самолёты
-
Хранение живых животных
Неправильное использование устройства
может привести к повреждению хранящихся
изделий или к их порче.
Климатические классы
Устройство предназначено для эксплуа-
тации в ограниченном диапазоне темпера-
туры окружающей среды в зависимости от
климатического класса. Климатический
класс, соответствующий Вашему устрой-
ству, указан на заводской табличке.
Указание
u
Для обеспечения безупречной работы
соблюдать заданную температуру окру-
жающей среды.
Климатиче-
ский класс
для температуры окружающего
воздуха
SN
10 °C до 32 °C
N
16 °C до 32 °C
ST
16 °C до 38 °C
Климатиче-
ский класс
для температуры окружающего
воздуха
T
16 °C до 43 °C
1.3 Декларация соответствия
Контур хладагента проверен на герметичность. Устрой-
ство отвечает соответствующим предписаниям по технике
безопасности, а также директивам ЕС 2006/95/EС,
2004/108/EС, 2009/125/EС и 2010/30/EС.
Указание для проверяющих органов:
Проверки следует проводить согласно действующим
нормам и директивам.
Подготовка и проверка устройств должна выполняться
с учетом схем загрузки от производителя и указа-
ниям, содержащимся в руководстве по эксплуа-
тации.
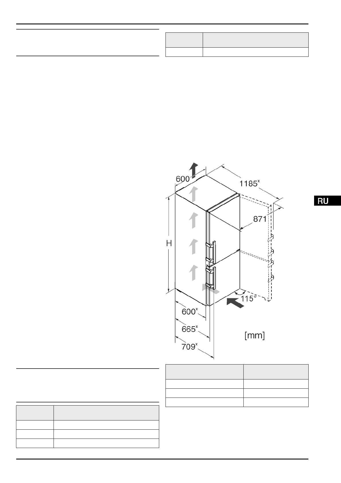
1.4 Габариты для установки
Fig. 2
Модель
Высота устройства
H (мм)
CN(ef) 37..
1650
CN(ef/bs) 43.. /CP(ef) 43..
1850
CN(ef) 48.. /CP(ef) 48..
2010
x
При использовании пристенных распорок этот размер
увеличивается на 15 мм (см. 4.2) .
Размеры при открытой двери действительны для угла
открывания 115 °. Расстояния зависят от угла открывания.
Основные отличительные особенности устройства
* Наличие в зависимости от модели и комплектации
3
Характеристики
Остались вопросы?Не нашли свой ответ в руководстве или возникли другие проблемы? Задайте свой вопрос в форме ниже с подробным описанием вашей ситуации, чтобы другие люди и специалисты смогли дать на него ответ. Если вы знаете как решить проблему другого человека, пожалуйста, подскажите ему :)