Холодильник Liebherr CBNgb 3956-20_CBNgw 3956-20 - инструкция пользователя по применению, эксплуатации и установке на русском языке. Мы надеемся, она поможет вам решить возникшие у вас вопросы при эксплуатации техники.
Если остались вопросы, задайте их в комментариях после инструкции.
"Загружаем инструкцию", означает, что нужно подождать пока файл загрузится и можно будет его читать онлайн. Некоторые инструкции очень большие и время их появления зависит от вашей скорости интернета.

6
Ввод в эксплуатацию
Отвинтите предохранитель
Рис. 14 (22).
Вставьте заглушку
Рис. 14 (20)
на дверь и зафиксируйте ее.
Закройте нижнюю дверь.
4.1.9 Установка верхней двери
Насадите верхнюю дверь на опорные болты
Рис. 11 (32).
Вставьте опорный кронштейн
Рис. 8 (12)
на противоположную сто-
рону.
Прикрутите верхний кронштейн (4 Nm) (2 раза Torx 25)
Рис. 8 (13)
.
Выдавите отверстия, использую шуруповерт.
Переставите крышку
Рис. 8 (11)
и крышку
Рис. 8 (10)
на противо-
положную сторону.
Оставьте верхнюю дверь открытой.
4.1.10 Установка верхнего доводчика
Рис. 15
Вытащите защитную крышку
Рис. 15 (9)
и заглушки
Рис. 15 (1)
и
вставьте ее с другой стороны.
Зацепите (А) верхний доводчик с шарниром и поверните (В).
Отверстия с правой и с левой стороны должны находиться четко
друг над другом.
Прикрутите доводчик (2 раза Torx 15)
Рис. 15 (7).
Указание
Соблюдайте порядок действий. Сначала установите заглушку над
рычагом, а потом защитную крышку.
Рис. 16
Натяните заглушку
Рис. 16 (1)
на рычаг доводчика
Рис. 16 (4)
таким об-
разом, чтобы стопор показался наружу и передней стороной к прибору.
Отодвиньте защитную крышку
Рис. 16 (5)
наружу и поверните (В)
над опорной деталью
Рис. 16 (8).
Насадите защитную крышку
Рис. 16 (5)
и зафиксируйте.
Отверстия для болтов должны находиться четко друг над другом.
Потяните рычаг доводчика
Рис. 16 (4)
к опорной детали и сверху
вставьте болты
Рис. 16 (3)
таким образом, чтобы квадратная голов-
ка села в углубление.
Полностью зафиксируйте защитную крышку
Рис. 16 (5)
на опор-
ной детали.
Обратите внимание на правильную посадку защитной крышки, что-
бы дверь могла беспрепятственно открываться и болты были проч-
но прикручены.
Повернув, снимите предохранитель
Рис. 16 (2).
Вставьте заглушку
Рис. 16(1)
на дверь и зафиксируйте.
Поверните защитную крышку
Рис. 6 (6)
на 180° со стороны руки,
установите ее с внешней стороны и зафиксируйте.
4.1.11 Выравнивание двери
Дверь можно выровнять с помощью подкручивания нижних
Рис.12
(43)
и средних
Рис. 11 (31)
опорных кронштейнов в продольных
отверстиях, находящихся на одной прямой. Для этого же подкрути-
те средние болты на опорном кронштейне снизу
Рис. 12 (43).
Предупреждение
Опасность повреждения падающей дверью!
Если дверь плохо прикреплена к опорным деталям, она может упасть.
Это может привести к серьезным повреждениям. Кроме того, дверь
может неплотно закрываться, в этом случае прибор будет плохо
охлаждать.
Крепко прикрутите опорные детали 4 Nm.
Затяните все болты и проверьте их.
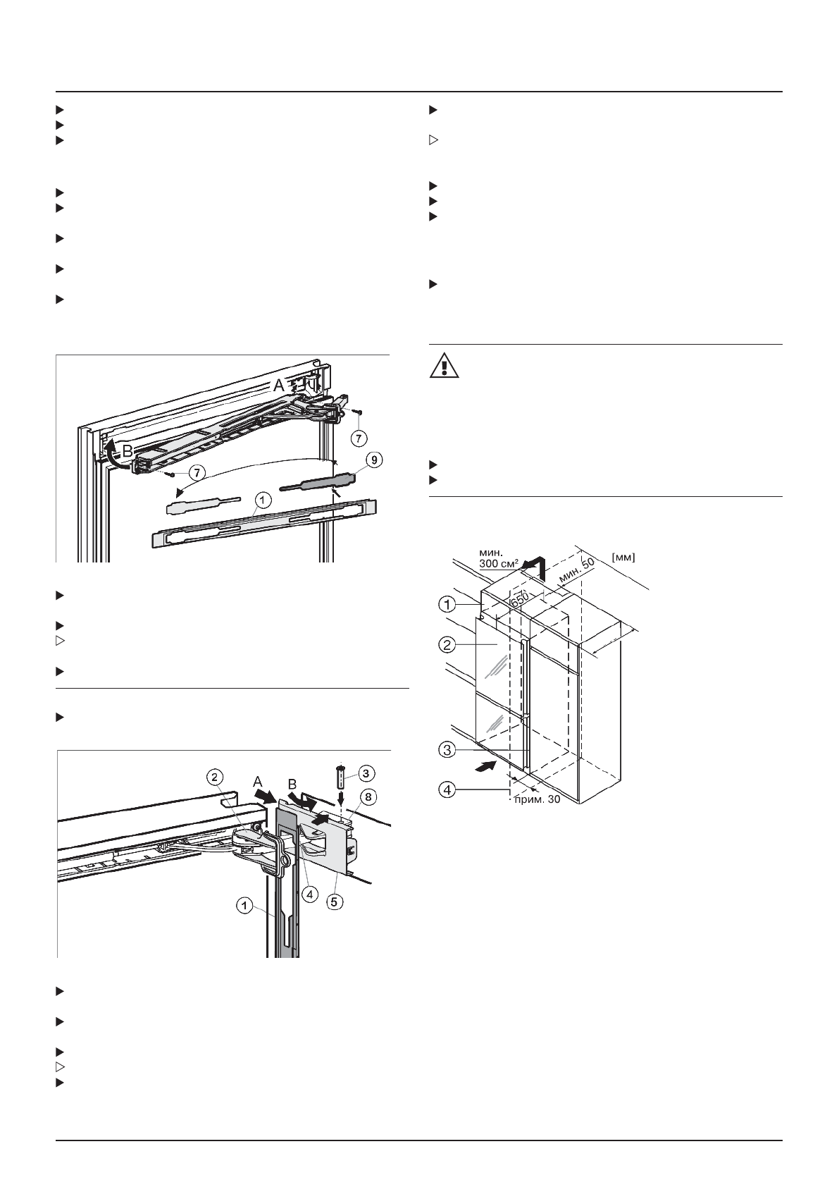
4.2 Встраивание в кухонную мебель
Прибор можно встраивать в кухонный гарнитур. Для того чтобы наи-
лучшим образом вписать прибор
Рис. 17 (2)
в гарнитур, над прибором
можно расположить соответствующий по высоте шкафчик
Рис. 17 (1).
При установке в обычный кухонный гарнитур (глубина максималь-
но 580 мм) прибор можно устанавливать рядом с кухонным шкафом
Рис. 17 (3).
Дверь прибора должна выступать примерно на 70 мм по
отношению к фасаду кухонного шкафа. Посредством этого Вы мо-
жете беспрепятственно открывать и закрывать его.
Важным является вентиляция:
- Для обеспечения приточной и вытяжной вентиляции на задней
стороне этого шкафа должна быть предусмотрена вентиляционная
шахта глубиной минимум 50 мм по всей ширине шкафа.
- Поперечное сечение канала вытяжной вентиляции под потолком
помещения должно быть минимум 300 cм
2
.
- Чем больше поперечное сечение вентиляции, тем больше энергии
при работе прибора экономится.
При установке прибора у стенки
Рис. 17 (4)
со стороны шарниров
должно быть расстояние от прибора до стены около 30 мм.
Рис. 17
(1)
Съемный шкаф
(2)
Прибор
(3)
Съемный шкаф
(4)
Стена