Холодильник IO MABE ORE24VGHF SS - инструкция пользователя по применению, эксплуатации и установке на русском языке. Мы надеемся, она поможет вам решить возникшие у вас вопросы при эксплуатации техники.
Если остались вопросы, задайте их в комментариях после инструкции.
"Загружаем инструкцию", означает, что нужно подождать пока файл загрузится и можно будет его читать онлайн. Некоторые инструкции очень большие и время их появления зависит от вашей скорости интернета.

27
Инструкция по установке
РАЗМЕРЫ И ТЕХНИЧЕСКИЕ
ТРЕБОВАНИЯ
(для встраиваемых моделей)
РАЗМЕРЫ И ТЕХНИЧЕСКИЕ
ТРЕБОВАНИЯ
(для встраиваемых моделей
25)
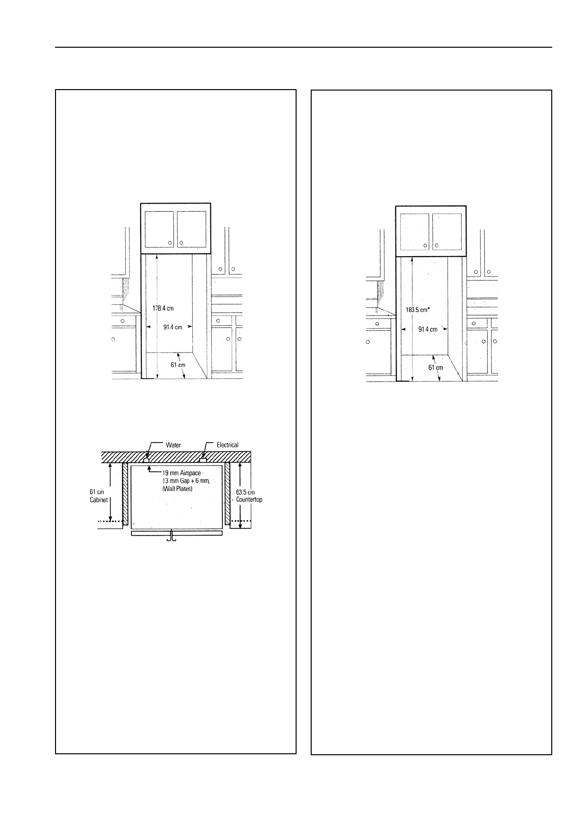
*Высота 183,5 см, необходимая для полной
регулировки роликов. Если над холодильни
-
ком расположен навесной шкафчик, дверцы
которого открываются заподлицо с верхней
частью холодильника, необходимо создать
дополнительный зазор 3,2 мм для свободного
открывания дверей шкафчика.
Текст на нижнем рисунке
Water - вода
Electrical – электропитание
Cabinet – кухонный шкафчик
Counter top- рабочий стол
Airspace – воздушное пространство
Gap - зазор
Wall plates – стенные панели
Характеристики
Остались вопросы?Не нашли свой ответ в руководстве или возникли другие проблемы? Задайте свой вопрос в форме ниже с подробным описанием вашей ситуации, чтобы другие люди и специалисты смогли дать на него ответ. Если вы знаете как решить проблему другого человека, пожалуйста, подскажите ему :)