Холодильник Aceline B16AMG - инструкция пользователя по применению, эксплуатации и установке на русском языке. Мы надеемся, она поможет вам решить возникшие у вас вопросы при эксплуатации техники.
Если остались вопросы, задайте их в комментариях после инструкции.
"Загружаем инструкцию", означает, что нужно подождать пока файл загрузится и можно будет его читать онлайн. Некоторые инструкции очень большие и время их появления зависит от вашей скорости интернета.

11
ВНИМАНИЕ!
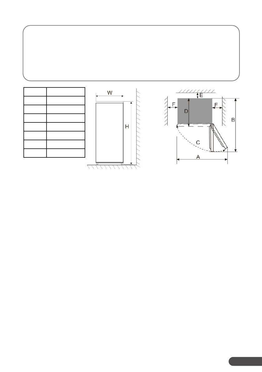
Недостаточное расстояние между прибором и другими предметами может привести
к увеличению энергопотребления и ухудшению замораживающей способности при-
бора. Необходимо обеспечить расстояние не менее 50 мм до ближайших стен и иных
предметов при установке изделия.
W (мм)
474
D (мм)
495
H (мм)
1440
A (мм)
680
B (мм)
969
C (
o
)
125±5
E (мм)
50
F (мм)
100
Содержание
- 6 Меры предосторожности; НАЗНАЧЕНИЕ УСТРОЙСТВА
- 7 Электрическая безопасность
- 8 Нормальный; Субнормальный; Субтропический; Тропический; Перед использованием данного продукта
- 9 УСТАНОВКА; Схема устройства
- 10 Выравнивание холодильника; Рекомендации по установке
- 12 Перевешивание дверей
- 14 ПРАВИЛА И УСЛОВИЯ ЭКСПЛУАТАЦИИ; Панель управления
- 16 УХОД И ОБСЛУЖИВАНИЕ; Уход
- 17 ПОИСК И УСТРАНЕНИЕ НЕИСПРАВНОСТЕЙ; Проблемы
- 21 ТЕХНИЧЕСКИЕ ХАРАКТЕРИСТИКИ
- 23 ПРАВИЛА И УСЛОВИЯ МОНТАЖА, ХРАНЕНИЯ, ПЕРЕВОЗКИ; Перемещение и транспортировка
- 24 Правильная утилизация; Утилизация
- 25 ДОПОЛНИТЕЛЬНАЯ ИНФОРМАЦИЯ
- 27 Гарантийный талон
Характеристики
Остались вопросы?Не нашли свой ответ в руководстве или возникли другие проблемы? Задайте свой вопрос в форме ниже с подробным описанием вашей ситуации, чтобы другие люди и специалисты смогли дать на него ответ. Если вы знаете как решить проблему другого человека, пожалуйста, подскажите ему :)













Сухая замарозка,или размаражевать надр?
КАК СНЯТЬ ПЛАФОН ДЛЯ ЗАМЕНЫ ЛАМПОЧКИ.
Непонятно — размораживание ручное, а как его (размораживание) делать???