Холодильник Whirlpool ARG 493/G - инструкция пользователя по применению, эксплуатации и установке на русском языке. Мы надеемся, она поможет вам решить возникшие у вас вопросы при эксплуатации техники.
Если остались вопросы, задайте их в комментариях после инструкции.
"Загружаем инструкцию", означает, что нужно подождать пока файл загрузится и можно будет его читать онлайн. Некоторые инструкции очень большие и время их появления зависит от вашей скорости интернета.

443
УСТАНОВКА
(ТОЛЬКО ДЛЯ МОДЕЛЕЙ ГЛУБИНОЙ 60 см)
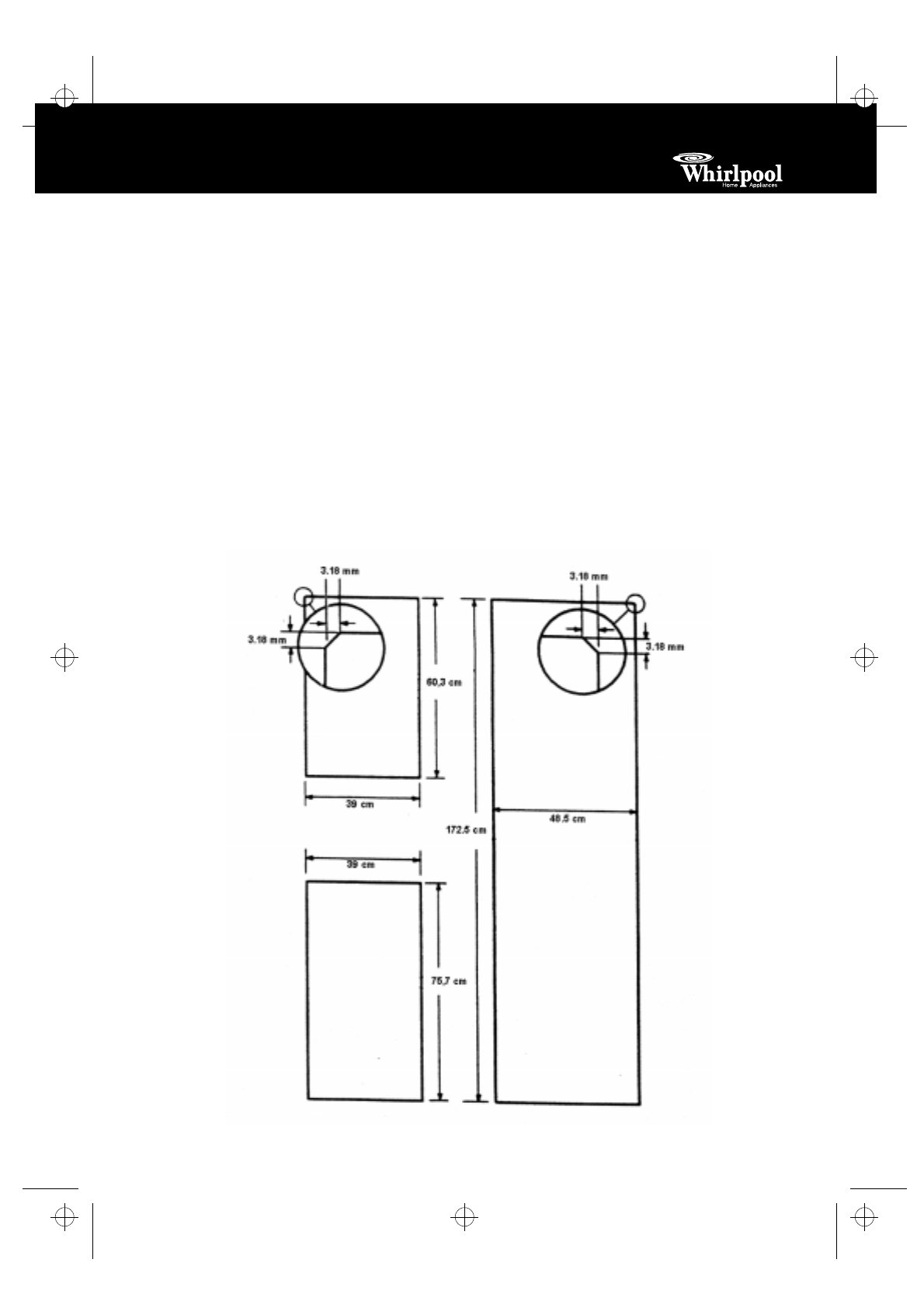
Дверные панели по
индивидуальному заказу
Изготовление индивидуальных деревянных
панелей
Если Вы хотите установить собственные
декоративные деревянные панели, то Вы можете
изготовить их самостоятельно или обратиться к
изготовителю Вашей кухни или столяру. См.
габаритные чертежи деревянных панелей,
устанавливаемых отдельно.
Плоские панели:
Вы можете заменить существующие
декоративные панели собственными плоскими
панелями толщиной не более 6,35 мм
Не рекомендуется ставить плоские панели
толщиной менее 6,35 мм
Выступающие панели:
Выступающие панели можно реализовать,
прикрепив винтами или приклеив деревянные
панели на основу толщиной 6,35 мм или
используя заготовку толщиной 19,05 мм с
обработанными краями. Расстояние между
выступающими панелями и обратной стороной
ручки должно составлять 5,70 см для того, чтобы
было удобно обхватывать ручку.
Требования к весу деревянных панелей,
устанавливаемых отдельно:
• Вес дверной панели холодильника не должен
превышать12,7 кг.
• Вес дверной панели морозильной камеры не
должен превышать 9,5 кг общего веса.
Размеры деревянных панелей, изготавливаемых по индивидуальному заказу:
3ru33001.fm5 Page 443 Tuesday, August 21, 2001 6:09 PM








