Холодильник LG GA-B489ZVCL - инструкция пользователя по применению, эксплуатации и установке на русском языке. Мы надеемся, она поможет вам решить возникшие у вас вопросы при эксплуатации техники.
Если остались вопросы, задайте их в комментариях после инструкции.
"Загружаем инструкцию", означает, что нужно подождать пока файл загрузится и можно будет его читать онлайн. Некоторые инструкции очень большие и время их появления зависит от вашей скорости интернета.

10
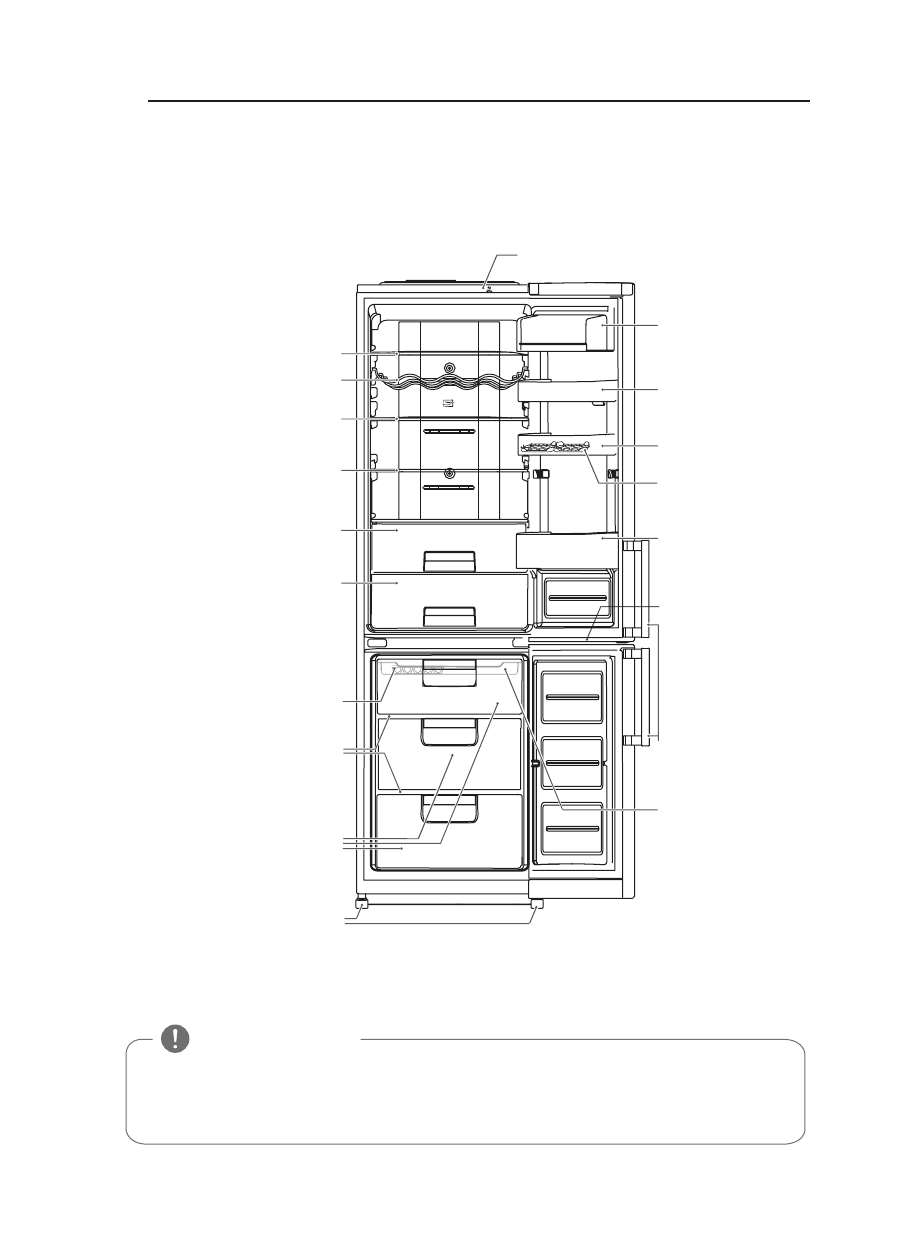
ОСНОВНЫЕ ЧАСТИ ХОЛОДИЛЬНИКА
Если какие-либо детали отсутствуют в Вашем холодильнике, возможно они входят в
комплект поставки других моделей.
Компания-изготовитель имеет право вносить изменения в комплектацию
холодильника без предварительного уведомления.
ПРИМЕЧАНИЕ
Модель:
GA**589****
GA**539****
GA**499****
GA**489****
GA**439****
Регулируемая ножка (2 шт.)
Выдвижной ящик морозильного
отделения (3 шт.)
Металлическая полка (2 шт.)*
Форма для льда
Зона оптимальной
температуры
«ЗОНА OPTI-TEMP» / Зона
сохранения свежести «FRESH
0 ZONE» /
Выдвижной ящик для
овощей
Выдвижной ящик для
овощей / Съёмная
стеклянная полка
Складная стеклянная полка*
Подставка для бутылок*
Съёмная стеклянная полка*
Отделение для
молочных продуктов /
Дверная корзина
Дверная корзина*
Лоток для яиц (2 шт.)*
Дверная корзина
Дверная ручка*
SmartDiagnosis
™
GA**529****
GA**429****
GA**489T***
GA**439T***
Лампа морозильного
отделения
*
*Входит в комплектацию не всех моделей.
Дверная корзина*
Лоток для заморозки*
Multi
Airflow
.
Съёмная стеклянная полка
ВВЕДЕНИЕ
Содержание
- 3 СОДЕРЖАНИЕ
- 4 ВВЕДЕНИЕ
- 6 ТРЕБОВАНИЯ БЕЗОПАСНОСТИ
- 9 ОПАСНОСТЬ ВОСПЛАМЕНЕНИЯ!
- 10 ОСНОВНЫЕ ЧАСТИ ХОЛОДИЛЬНИКА; комплект поставки других моделей.; ПРИМЕЧАНИЕ
- 11 SN; КЛИМАТИЧЕСКИЙ КЛАСС; УСТАНОВКА
- 12 Внутренний дисплей
- 13 ЭКСПЛУАТАЦИЯ
- 17 БЫСТРАЯ ЗАМОРОЗКА
- 18 внешним светодиодным дисплеем)
- 20 ХОЛОДИЛЬНОЕ ОТДЕЛЕНИЕ; «MOIST BALANCE CRISPER»; КАК ВЫНУТЬ ВЫДВИЖНОЙ
- 22 ПОРЯДОК ИЗВЛЕЧЕНИЯ ПОЛКИ ИЗ
- 23 РЕКОМЕНДАЦИИ ПО ХРАНЕНИЮ ПРОДУКТОВ
- 24 УХОД И ОБСЛУЖИВАНИЕ
- 25 ПРОТИВОКОНДЕНСАТНАЯ ТРУБКА:; НЕОБХОДИМЫЕ ИНСТРУМЕНТЫ:
- 28 ПОИСК И УСТРАНЕНИЕ НЕИСПРАВНОСТЕЙ
- 30 УТИЛИЗАЦИЯ
- 32 Служба поддержки клиентов LG