Холодильник LG GA-B489YAQZ - инструкция пользователя по применению, эксплуатации и установке на русском языке. Мы надеемся, она поможет вам решить возникшие у вас вопросы при эксплуатации техники.
Если остались вопросы, задайте их в комментариях после инструкции.
"Загружаем инструкцию", означает, что нужно подождать пока файл загрузится и можно будет его читать онлайн. Некоторые инструкции очень большие и время их появления зависит от вашей скорости интернета.

10
Multi
Airflow
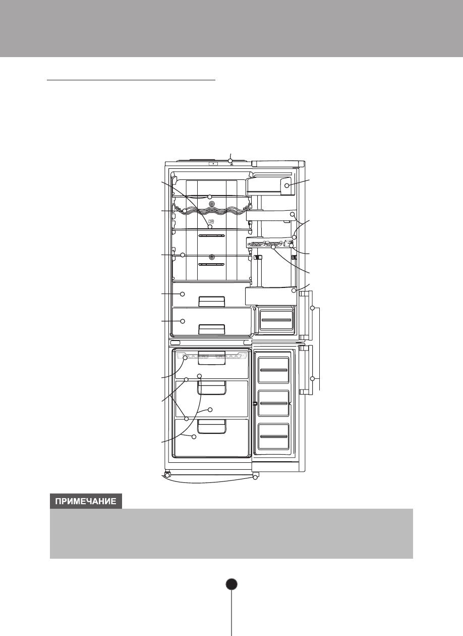
ОСНОВНЫЕ ЧАСТИ ХОЛОДИЛЬНИКА
Модель:
GA**589****
GA**539****
GA**499****
GA**489****
GA**439****
Если какие-либо детали отсутствуют в Вашем холодильнике, возможно они входят в
комплект поставки других моделей.
Компания-изготовитель имеет право вносить изменения в комплектацию
холодильника без предварительного уведомления.
Регулируемые ножки
Выдвижные ящики
морозильного
отделения
Металлическая
полка
(не во всех моделях)
Форма для льда
(не во всех моделях)
Зона оптимальной
температуры
«ЗОНА OPTI-TEMP»/Зона
сохранения свежести
«FRESH 0 ZONE»/
выдвижной ящик для
овощей
Выдвижной ящик для
овощей или съёмная
стеклянная полка
Складная
стеклянная полка
(не во всех моделях)
Подставка для
бутылок
(не во всех моделях)
Съёмная стеклянная
полка
Отделение для
молочных продуктов
(не во всех моделях)
Дверная корзина
(не во всех моделях)
Лоток для яиц (2 шт.)
Дверная корзина
Дверная ручка
Ограничительные
упоры (2 шт.)
.
SmartDiagnosis
™
ВВЕДЕНИЕ