Холодильник LG GA-B439ZMQZ - инструкция пользователя по применению, эксплуатации и установке на русском языке. Мы надеемся, она поможет вам решить возникшие у вас вопросы при эксплуатации техники.
Если остались вопросы, задайте их в комментариях после инструкции.
"Загружаем инструкцию", означает, что нужно подождать пока файл загрузится и можно будет его читать онлайн. Некоторые инструкции очень большие и время их появления зависит от вашей скорости интернета.

11
Үлгілері:
GA**489T*
GA**439T*
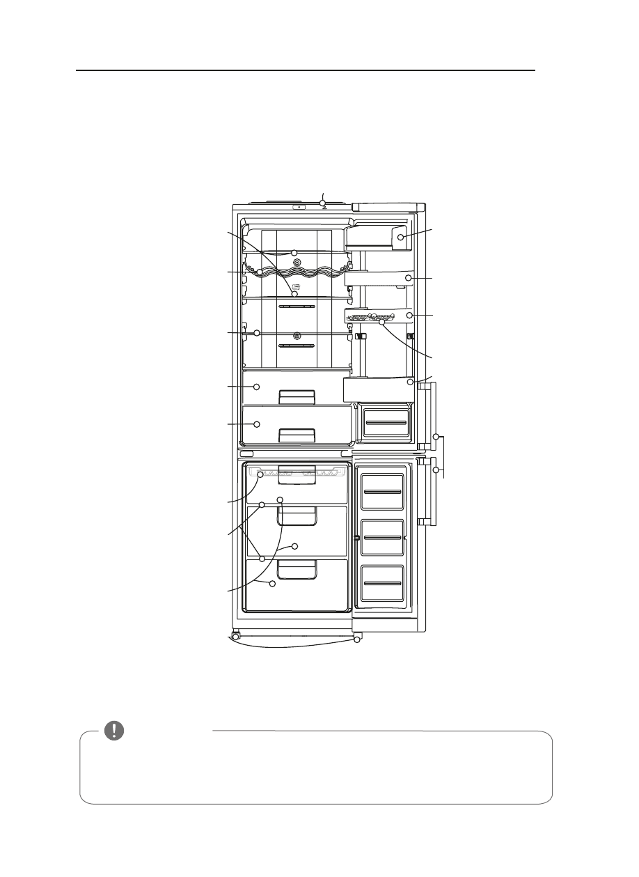
ТОҢАЗЫТҚЫШТІҢ НЕГІЗГI БӨЛIКТЕРI
Multi
Airflow
Алмалы шыны сөре
.
SmartDiagnosis
™
Шөлмектерге арналған
тұғыр*
Жиналмалы шыны сөре
*
Көкөніс салатын
тартпалы жəшік (көкөніс
пен жеміс-жидекті
сақтау үшін
пайдаланылады) немесе
алмалы шыны сөре
Оңтайлы температура
аймағы «Зона OPTI- TEMP»
немесе көкөнiс салатын
тартпалы жəшік немесе
тағамды саумал сақтау
аймағы «FRESH 0 ZONE»
Мұзға арналған науа
*
Торлы сөре
*
Мұздатқыш бөлімше
Тұтқа
Есіктегі науа
Жұмыртқа салатын
науа (2 дана)
Сүт өнімдеріне
арналған бөлімше
*
*Барлық үлгілердің құрамына кірмейді
Реттелетін аяқтар
Есіктегі науа*
Есіктегі науа
Тоңазытқышта қандай да бір бөлшектер жоқ болса, олар басқа үлгінің құрамына кіруі
мүмкін.
Өндіруші компания алдын ала ескертусіз тоңазытқыштың құрамына өзгеріс енгізуге
құқылы.
ЕСКЕРТПЕ
КІРІСПЕ