Холодильник LG GA-B439YLCZ - инструкция пользователя по применению, эксплуатации и установке на русском языке. Мы надеемся, она поможет вам решить возникшие у вас вопросы при эксплуатации техники.
Если остались вопросы, задайте их в комментариях после инструкции.
"Загружаем инструкцию", означает, что нужно подождать пока файл загрузится и можно будет его читать онлайн. Некоторые инструкции очень большие и время их появления зависит от вашей скорости интернета.

9
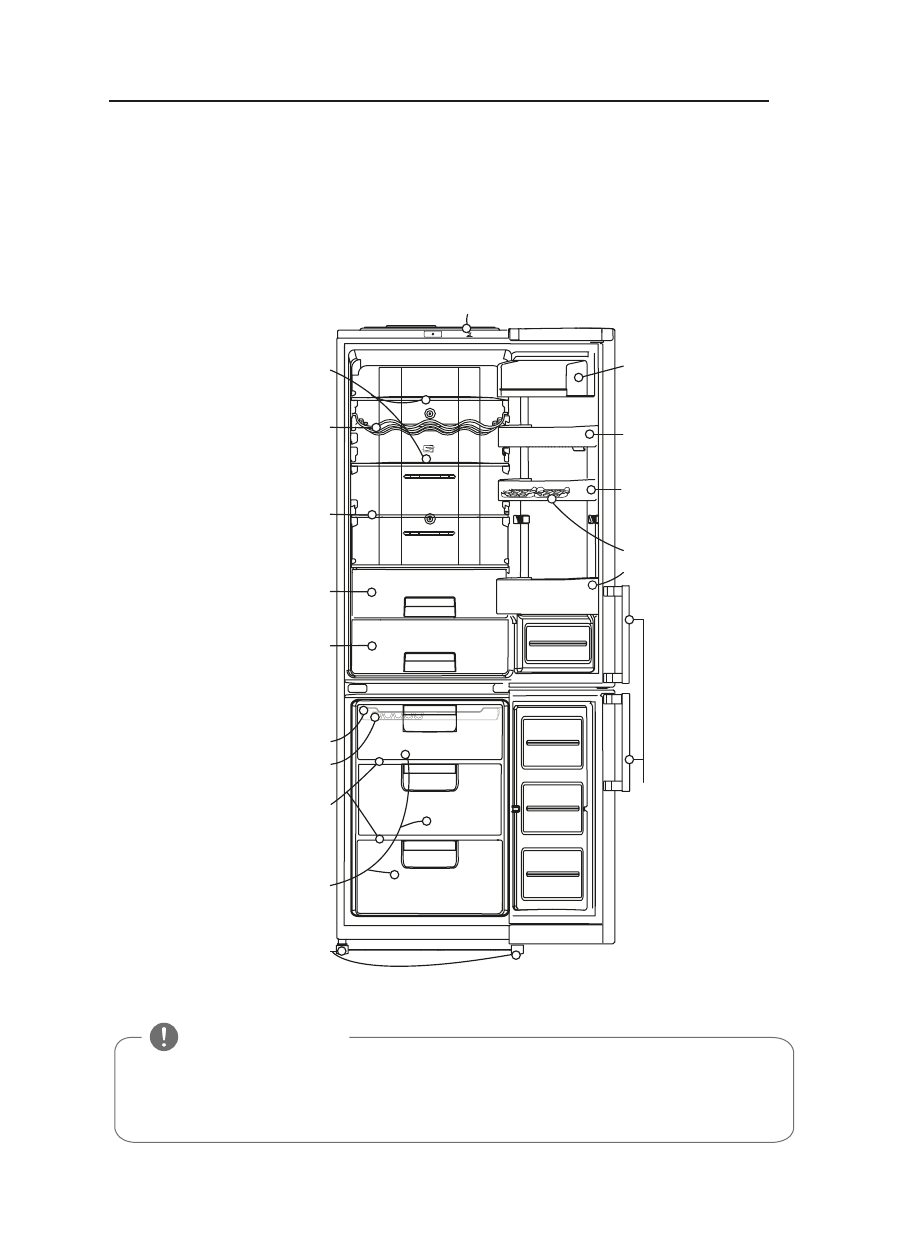
ОСНОВНЫЕ ЧАСТИ ХОЛОДИЛЬНИКА
Если какие-либо детали отсутствуют в Вашем холодильнике, возможно они входят в
комплект поставки других моделей.
Компания-изготовитель имеет право вносить изменения в комплектацию
холодильника без предварительного уведомления.
ПРИМЕЧАНИЕ
Модель:
GA**589****
GA**539****
GA**499****
GA**489****
GA**439****
Multi
Airflow
Регулируемые ножки
Выдвижные ящики
морозильного
отделения
Металлическая полка*
Форма для льда
Зона оптимальной
температуры
«ЗОНА OPTI-TEMP»/Зона
сохранения свежести
«FRESH 0 ZONE»/
выдвижной ящик для
овощей
Выдвижной ящик для
овощей или съёмная
стеклянная полка
Складная стеклянная полка*
Подставка для бутылок*
Съёмная стеклянная полка
Отделение для
молочных продуктов*
Дверная корзина*
Лоток для яиц (2 шт.)
Дверная корзина
Дверная ручка
.
SmartDiagnosis
™
*Входит в комплектацию не всех моделей.
Дверная корзина
Лоток для заморозки*
ВВЕДЕНИЕ












