Холодильник Electrolux RNT8TE18S - инструкция пользователя по применению, эксплуатации и установке на русском языке. Мы надеемся, она поможет вам решить возникшие у вас вопросы при эксплуатации техники.
Если остались вопросы, задайте их в комментариях после инструкции.
"Загружаем инструкцию", означает, что нужно подождать пока файл загрузится и можно будет его читать онлайн. Некоторые инструкции очень большие и время их появления зависит от вашей скорости интернета.

ВНИМАНИЕ!
Во избежание проблем с
устойчивостью прибора
закрепите его в
соответствии с
инструкцией по установке.
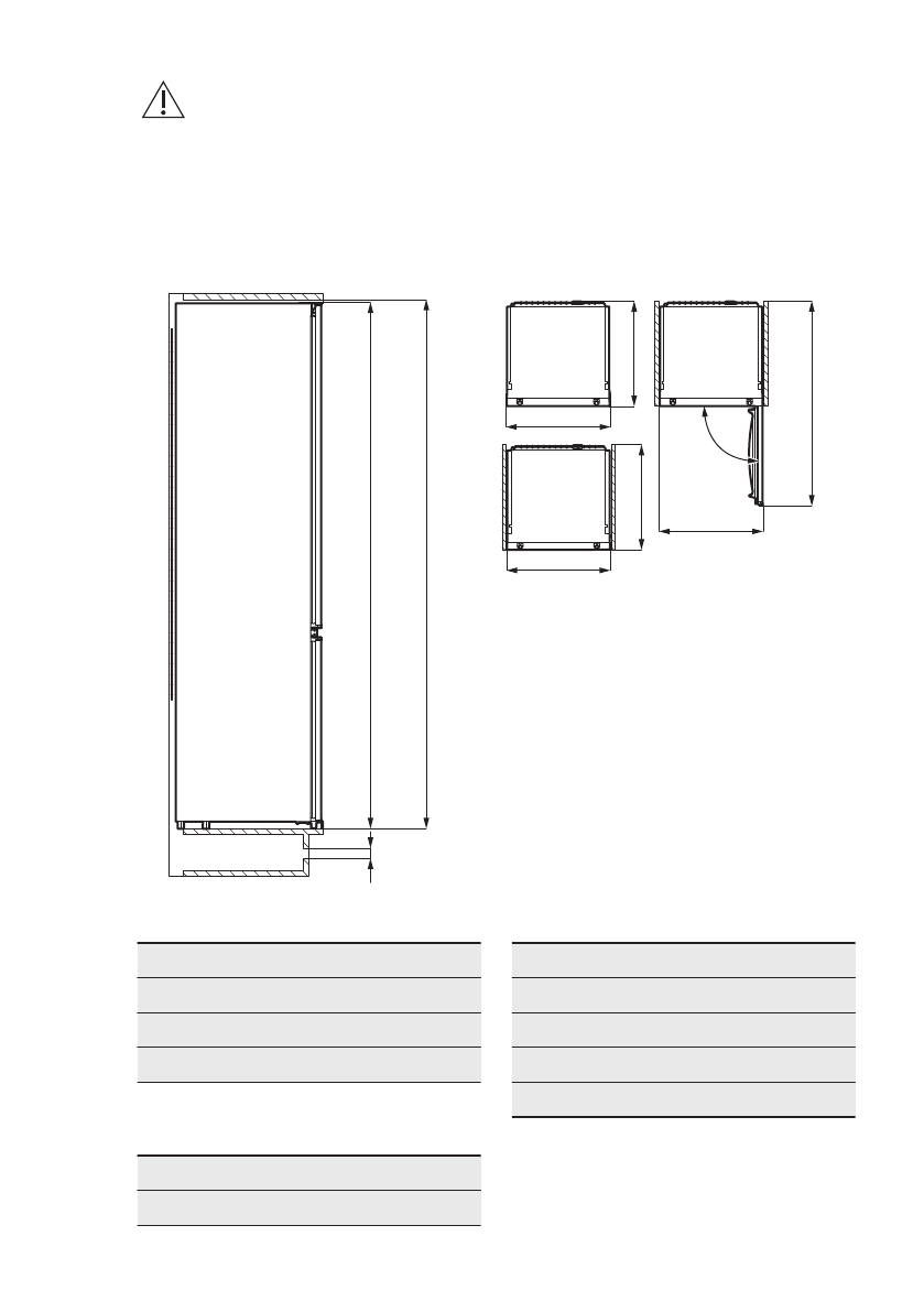
3.1 Габаритные размеры
B
A
H
1
W1
D
1
W2
D
2
W3
D
3
9
0
°
Габаритные размеры ¹
H1
мм
1772
W1
мм
548
D1
мм
549
¹ высота, ширина и глубина прибора
без учета ручки и ножек
Необходимое для работы место ²
H2 (A+B)
мм
1816
Необходимое для работы место ²
W2
мм
548
D2
мм
551
A
мм
1780
B
мм
36
² высота, ширина и глубина прибора,
включая ручку, плюс пространство,
требуемое для свободной циркуляции
охлаждающего воздуха
www.electrolux.com
8
Характеристики
Остались вопросы?Не нашли свой ответ в руководстве или возникли другие проблемы? Задайте свой вопрос в форме ниже с подробным описанием вашей ситуации, чтобы другие люди и специалисты смогли дать на него ответ. Если вы знаете как решить проблему другого человека, пожалуйста, подскажите ему :)