Холодильник Electrolux RNS6TE19S - инструкция пользователя по применению, эксплуатации и установке на русском языке. Мы надеемся, она поможет вам решить возникшие у вас вопросы при эксплуатации техники.
Если остались вопросы, задайте их в комментариях после инструкции.
"Загружаем инструкцию", означает, что нужно подождать пока файл загрузится и можно будет его читать онлайн. Некоторые инструкции очень большие и время их появления зависит от вашей скорости интернета.

Общее необходимое для работы
место ³
H3 (A+B)
мм
1936
W3
мм
548
D3
мм
1071
³ высота, ширина и глубина прибора,
включая ручку, плюс пространство,
требуемое для свободной циркуляции
охлаждающего воздуха, плюс
минимальный угол раскрытия дверцы,
позволяющий извлечение всех
внутренних компонентов.
3.2 Выбор места установки
Для обеспечения оптимальной работы
прибора не следует устанавливать его
рядом с источником тепла (духовыми
шкафами, печами, радиаторами
отопления, кухонными плитами или
варочными панелями). Обеспечьте
свободную циркуляцию воздуха
позади задней стенки.
3.3 Размещение
Прибор следует устанавливать в
сухом, хорошо вентилируемом месте
внутри помещения.
Прибор предназначен исключительно
для работы при температуре
окружающей среды от 10°C до 43°C.
Надлежащая работа
прибора может быть
гарантирована только в
рамках указанного
диапазона температур.
В случае сомнений при
выборе места установки
прибора обратитесь в
место продажи, в
авторизованный
сервисный центр или в
ближайший центр
обслуживания.
Должна быть обеспечена
возможность отключения
прибора от сети
электропитания. Поэтому
после установки прибора
должен быть обеспечен
легкий доступ к вилке
сетевого шнура.
3.4 Подключение к сети
• Перед включением прибора в сеть
удостоверьтесь, что напряжение и
частота, указанные в табличке с
техническими данными,
соответствуют параметрам
домашней электрической сети.
• Прибор должен быть заземлен. Для
этого вилка сетевого кабеля имеет
специальный контакт заземления.
Если розетка электрической сети не
заземлена, выполните отдельное
заземление прибора в
соответствии с действующими
нормами, поручив эту операцию
квалифицированному электрику.
• Изготовитель снимает с себя
всякую ответственность в случае
несоблюдения вышеуказанных
правил техники безопасности.
• Данный прибор соответствует
обязательным требованиям
применимых к нему технических
регламентов ЕАЭС.
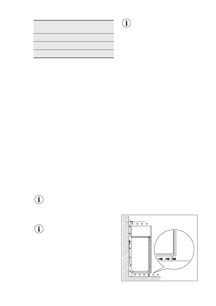
3.5 Требования к вентиляции
Необходимо обеспечить достаточную
циркуляцию воздуха с задней стороны
прибора.
5 cm
min.
200 cm
2
min.
200 cm
2
РУССКИЙ
9
Содержание
- 3 возможностями
 - 4 Общие правила техники безопасности
 - 5 УКАЗАНИЯ ПО БЕЗОПАСНОСТИ
 - 6 электросети
 - 7 Внутреннее освещение
 - 8 Габаритные размеры
 - 9 Общее необходимое для работы; Выбор места установки
 - 10 Перевешивание дверцы; D E
 - 11 Регулировка температуры; холодильника
 - 12 Нажмите кнопку OK для; Нажмите кнопку OK для; Функция FastFreeze; Для включения функции; Нажмите кнопку OK для; Функция DYNAMICAIR; Нажмите кнопку OK для
 - 13 Нажатием на регулятор таймера; превышения температуры; На дисплеях температуры
 - 14 Предупреждение об; открытой дверце; ЕЖЕДНЕВНОЕ ИСПОЛЬЗОВАНИЕ; дверцы; Меняйте положение по мере; Передвижные полки; Аккуратно выньте переднюю
 - 15 Установите на направляющие
 - 16 Замораживание свежих; Хранение замороженных; продуктов; ПРЕДУПРЕЖДЕНИЕ
 - 17 Изготовление кубиков; льда; Наполните данные ванночки; Аккумуляторы холода; экономии электроэнергии
 - 19 Срок годности для морозильного отделения; Тип продукта; охлаждению продуктов
 - 20 Чистка внутренних; поверхностей; Периодическая чистка; Очищайте внутренние поверхности; Регулярно проверяйте и; Ополосните чистой водой и
 - 21 морозильника; Перерыв в эксплуатации; Отключите прибор от сети; ПОИСК И УСТРАНЕНИЕ НЕИСПРАВНОСТЕЙ; Неисправность
 - 25 Закрывание дверцы; При необходимости отрегулируйте
 - 26 ОРГАНИЗАЦИЙ; ОХРАНА ОКРУЖАЮЩЕЙ СРЕДЫ
 
Характеристики
Остались вопросы?Не нашли свой ответ в руководстве или возникли другие проблемы? Задайте свой вопрос в форме ниже с подробным описанием вашей ситуации, чтобы другие люди и специалисты смогли дать на него ответ. Если вы знаете как решить проблему другого человека, пожалуйста, подскажите ему :)
 
 
 
 
 
 
 
 
 
 
 
 
 
 
 
 
 
 
 
 
 
 
 
 
 
 
 
 
 
 
 
 
 
 
 
 
 
 
 
 
 
 
 
 
 
 
 
 
 
 
 
 











