Холодильник DEXP T2-0270AMG - инструкция пользователя по применению, эксплуатации и установке на русском языке. Мы надеемся, она поможет вам решить возникшие у вас вопросы при эксплуатации техники.
Если остались вопросы, задайте их в комментариях после инструкции.
"Загружаем инструкцию", означает, что нужно подождать пока файл загрузится и можно будет его читать онлайн. Некоторые инструкции очень большие и время их появления зависит от вашей скорости интернета.

11
НАЗАР АУДАРЫҢЫЗ!
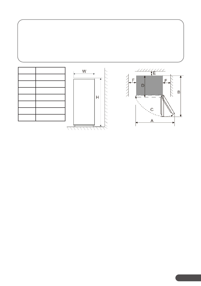
Құрылғы мен басқа заттар арасындағы жеткіліксіз қашықтық энергияны тұтыну
-
дың артуына және құрылғының мұздату қабілетінің нашарлауына әкелуі мүмкін.
Өнімді орнату кезінде ең жақын қабырғаларға және басқа заттарға кемінде 50 мм
қашықтықты қамтамасыз ету қажет.
W (мм)
540
D (мм)
551
H (мм)
1428
A (мм)
910
B (мм)
1054
C (
o
)
130±5
E (мм)
50
F (мм)
100
Характеристики
Остались вопросы?Не нашли свой ответ в руководстве или возникли другие проблемы? Задайте свой вопрос в форме ниже с подробным описанием вашей ситуации, чтобы другие люди и специалисты смогли дать на него ответ. Если вы знаете как решить проблему другого человека, пожалуйста, подскажите ему :)