Холодильник DEXP SBS650ASY - инструкция пользователя по применению, эксплуатации и установке на русском языке. Мы надеемся, она поможет вам решить возникшие у вас вопросы при эксплуатации техники.
Если остались вопросы, задайте их в комментариях после инструкции.
"Загружаем инструкцию", означает, что нужно подождать пока файл загрузится и можно будет его читать онлайн. Некоторые инструкции очень большие и время их появления зависит от вашей скорости интернета.

11
УСТАНОВКА
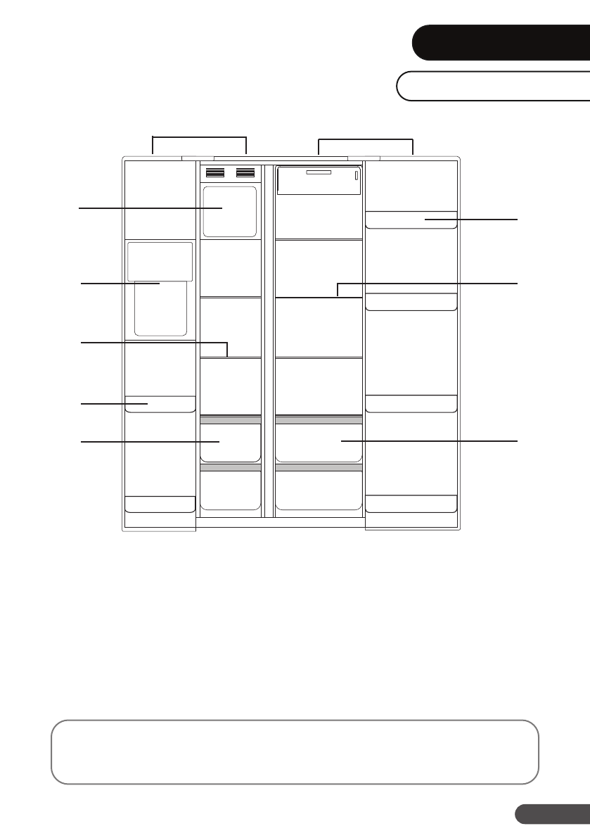
Схема устройства
ВНИМАНИЕ!
Все изображения и схемы даны в ознакомительных целях и могут отличаться от ре
-
ального устройства.
1
2
3
Морозильная камера
4
5
6
Холодильная камера
1. Диспенсер.
2. Дверная полка морозильной камеры.
3. Стеклянная полка морозильной камеры.
4. Ящик морозильной камеры.
5. Контейнер для льда.
6. Дверная полка холодильной камеры.
7. Стеклянная полка холодильной камеры.
8. Ящик холодильной камеры.
7
8