Холодильник DEXP RF-MN605DMA/SI - инструкция пользователя по применению, эксплуатации и установке на русском языке. Мы надеемся, она поможет вам решить возникшие у вас вопросы при эксплуатации техники.
Если остались вопросы, задайте их в комментариях после инструкции.
"Загружаем инструкцию", означает, что нужно подождать пока файл загрузится и можно будет его читать онлайн. Некоторые инструкции очень большие и время их появления зависит от вашей скорости интернета.

9
УСТАНОВКА
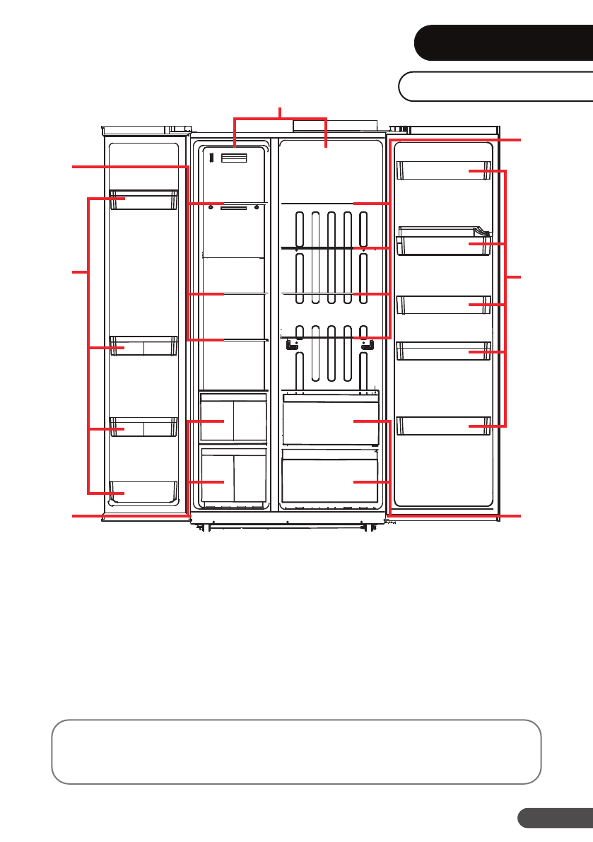
Схема устройства
1
2
3
4
5
6
7
1. Полки морозильной камеры.
2. Дверные лотки морозильной камеры.
3. Ящики морозильной камеры.
4. LED-подсветка.
5. Полки холодильной камеры для хранения продуктов.
6. Дверные лотки холодильной камеры.
7. Ящики холодильной камеры.
ВНИМАНИЕ!
Все изображения и схемы даны в ознакомительных целях и могут отличаться от ре
-
ального устройства.