Холодильник DEXP B2-0270AMG - инструкция пользователя по применению, эксплуатации и установке на русском языке. Мы надеемся, она поможет вам решить возникшие у вас вопросы при эксплуатации техники.
Если остались вопросы, задайте их в комментариях после инструкции.
"Загружаем инструкцию", означает, что нужно подождать пока файл загрузится и можно будет его читать онлайн. Некоторые инструкции очень большие и время их появления зависит от вашей скорости интернета.

11
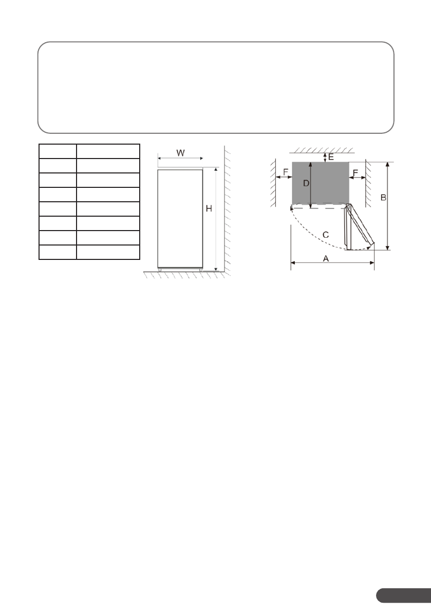
ВНИМАНИЕ!
Недостаточное расстояние между прибором и другими предметами может привести
к увеличению энергопотребления и ухудшению замораживающей способности при-
бора. Необходимо обеспечить расстояние не менее 50 мм до ближайших стен и иных
предметов при установке изделия.
W (мм)
540
D (мм)
550
H (мм)
1760
A (мм)
910
B (мм)
1055
C (
o
)
130±5
E (мм)
50
F (мм)
100
Характеристики
Остались вопросы?Не нашли свой ответ в руководстве или возникли другие проблемы? Задайте свой вопрос в форме ниже с подробным описанием вашей ситуации, чтобы другие люди и специалисты смогли дать на него ответ. Если вы знаете как решить проблему другого человека, пожалуйста, подскажите ему :)