Холодильник Daewoo BMR-154RPR - инструкция пользователя по применению, эксплуатации и установке на русском языке. Мы надеемся, она поможет вам решить возникшие у вас вопросы при эксплуатации техники.
Если остались вопросы, задайте их в комментариях после инструкции.
"Загружаем инструкцию", означает, что нужно подождать пока файл загрузится и можно будет его читать онлайн. Некоторые инструкции очень большие и время их появления зависит от вашей скорости интернета.

R-12
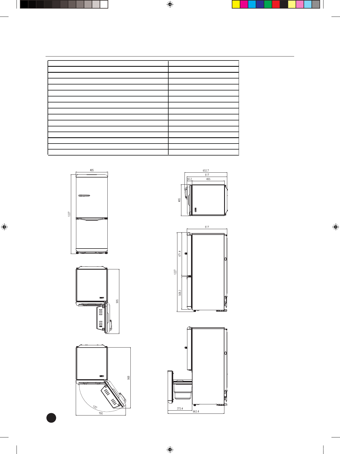
Технические характеристики
AD241-2a(
영
)_DESUK.indd 17
2012-06-01
오후
2:40:02
Модель
RN-173NR/RN-174NB/BMR-154RPR
Параметры
питания
220-240 В~ /
50
Гц
Сила
тока
0.4 A
Климатический
класс
SN-T
Тип
хладагента
,
количество
R600a, 0.032
кг
Воспламеняемость
O
Класс
энергоэффективности
A+
Потребление
электроэнергии
213
кВтч/год
Вес
нетто
41.00
кг
Вес
брутто
45.00
кг
Размер (ШхГхВ)
Размер в упаковке (ШхГхВ)
IP код
Общий объем (л)
Объем холодильной камеры (л)
Объем морозильной камеры (л)
В целях усовершенствования устройства технические характеристики и дизайн могут изменяться без предварительного уведомления.
485×652.7×1227
мм
540×686×1263
мм
IPX0
165
104
61