Холодильник Haier CEF537ASG - инструкция пользователя по применению, эксплуатации и установке на русском языке. Мы надеемся, она поможет вам решить возникшие у вас вопросы при эксплуатации техники.
Если остались вопросы, задайте их в комментариях после инструкции.
"Загружаем инструкцию", означает, что нужно подождать пока файл загрузится и можно будет его читать онлайн. Некоторые инструкции очень большие и время их появления зависит от вашей скорости интернета.

UZ
22
ISHLATISHDAN AVVAL
*CEF537AWG / CEF537ASG / CEF537AGG / CEF537ACG /
CEF537AWD / CEF537ASD
Tavsif
Bu sxema siz xarid qilgan muzlatgichdan ozgina farq qilishi mumkin.
*
Joylashtirish o
ʻ
rni
Montaj qoidalari va shartlari:
Sovutkichni joylashtirish uchun eng yaxshi joyni tanlang:
suv ta’minoti tizimiga qulay yaqinlikda joylashuv, quyosh nuri
tushmaydigan, pol tekis (yoki deyarli tekis) joy. Sovutkich
eshigini oson va qulay ochish mumkin boʻlgan joyni tanlang.
Sovutkich tekis va qattiq yuzada joylashtirilishi lozim.
Agar sovutkich qiya joyda joylashsa, sovutish tizimining ichki
ishlashida nosozliklar yuzaga kelishi mumkin. Agar sovutkich
notekis yuzaga joylashtirilsa, taglik sifatida mustahkam
va olovga chidamli materiallardan foydalanilishi kerak.
Agar sovutkich biroz nobarqaror boʻlsa, siz sovutkichning
rostlanadigan oyoqchalarini soat strelkasi yoʻnalishida boʻyicha
yoki teskari yoʻnalishda aylantirgan holda uni uzaytirishingiz
yoki qisqartirishingiz mumkin.алюнку розміри місця для вста
-
новлення холодильника.
Sovutkichni oʻrnatish uchun joyning rasmdagi
oʻlchamlarga mos kelishiga ahamiyat bering.
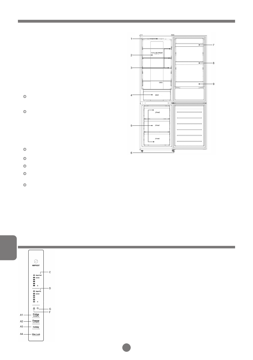
FUNKTSIYALAR
1) LED освещение
2) Total No Frost
3) Полка
4) Ящик для овощей и фруктов
5)Ящики морозильной камеры
6) Регулируемые ножки
7) Верхний держатель бутылок
8) Средний держатель бутылок
9) Большой держатель бутылок
Sovutkich eshigining toʻgʻri yopilishini ta’minlash uchun u biroz orqaga egilgan boʻlishi lozim – bu konstruktiv oʻziga xos jihat.
Saqlash va tashish qoidalari
Oʻralgan sovutkich nisbiy namligi 80% dan ortiq boʻlmagan sharoitda, tabiiy shamollatishga ega boʻlgan yopiq xonalarda vertikal holatda
saqlanishi lozim.
Uzoq muddatga elektr tarmogʻidan uzilgan sovutkich ichidan barcha mahsulotlarni chiqarib tashlab, muzlatish kamerasini muzdan
tushirish va kameralarni tozalash kerak. Tozalangandan keyin, kameralarda noxush hid paydo boʻlishini oldini olish uchun, sovutkichning
eshiklarini biroz ochiq qoldirish kerak
Sovutkichni vertikal holatda istalgan turdagi usti yopiq transportda, sovutkichni har qanday ehtimoliy zarblar, surilib ketish va agʻdarilib
tushishning yuzaga kelishini oldini olgan holda ishonchli tarzda mahkamlab tashish mumkin.
Sotuv:
Sotish shartlari mamlakatning mahalliy qonunchiligiga muvofiq amalga oshiriladi.
Foydalanishdan oldin tayyorlab olish
Oʻramini, penoplastli asosni va yopishqoq lentani, mahkamlovchi aksessuarlarni olib tashlang. Ilova qilingan hujjatlar va aksessuarlarni
tekshiring. Komplektatsiyada tafovut boʻlsa, xarid qilingandan keyin 14 kun ichida magazinga murojaat qiling. Sovutkichni tegishli joyga
surib joylashtiring – «Joylashtirish oʻrni» boʻlimiga qarang. Foydalanishdan oldin korpusni tozalash tavsiya qilinadi. Sovutkichga oziq-ovqat
mahsulotlarni joylashtirishdan oldin uning tashqi va ichki qismlarini namlangan yumshoq mato bilan tozalang. Uskunani tekis joylashtirib,
tozalagandan soʻng, uni yoqishdan oldin normal holatda ishlashini ta’minlash uchun, sovutkichni yoqilmagan holatda kamida 6 soatga qoldiring.
Sovutkich elektr ta’minot tarmogʻiga ulangandan soʻng sovutish va muzlatish kameralarii avtomatik tarzda mos ravishda 5 °C va -18 °C
haroratga oʻrnatiladi. MyZone boʻlmasi sovutish qurilmasi rejimida ishlaydi. Rejimni qoʻlda sozlash: «haroratni sozlash» tugmasini bosib
haroratni oʻrnatish mumkin (ushbu qoʻllanmaning «Funksiyalari» boʻlimiga qarang). Sovutkich ma’lum bir muddat ishlagandan soʻng va
sovutkich boʻlmasi yetarli darajada sovugandan keyin unga mahsulotlarni joylashtiring.
Панель управления
Displeyni boshqarish va bloklash funksiyasi
Displey ekrani ma’lum bir operatsiya tugagandan soʻng avtomatik ravishda 30 soniyadan keyin oʻchadi va blok
holatiga tushadi (F indikatori yonadi). U sovutkich eshigi ochilganida yoki har qanday tugma bosilganda ham yonadi
(Ogohlantirish signalida displey ekrani yonmaydi). Bloklash funksiyasi: A4 tugmasini bosing va 3 soniya davomida F
indikatori yongunga qadar ushlab turing, displey ekrani bloklanadi. Blokdan chiqarish funksiyasi: A4 tugmasini bosing
va 3 soniya davomida H indikatori oʻchgunga qadar ushlab turing, displey ekrani blokdan chiqariladi.
Sovutkich haroratini sozlash (Super-Cool)
Zarur haroratni tanlash uchun A1 tugmasini bosing, bunda harorat C indikatorida siklik ravishda Min dan Max gacha
oʻzgara boshlaydi, sizga zarur boʻlgan haroratni tanlang. Sovutkich harorati diapazoni minimal 2 °C dan maksimal 8 °C
gacha oʻzgaradi.
Muzlatish kamerasi haroratini sozlash (Super-Frz)
Zarur haroratni tanlash uchun A2 tugmasini bosing, bunda harorat D indikatorida siklik ravishda Min dan Max gacha
oʻzgara boshlaydi, sizga zarur boʻlgan haroratni tanlang. Sovutkich harorati diapazoni minimal -24 °C dan maksimal -16
°C gacha oʻzgaradi.
Kuchli sovutish (Super-Cool)
Funksiyani faolllashtirish uchun A1 tugmasini C indikatori yongunga qadar 3 soniya davomida bosib turing. Kuchli
sovutish rejimidan chiqish uchun A1 tugmasini C indikatori oʻchgunga qadar bosib turish kerak. Ushbu funksiya harorat
minimal darajaga tushgandan soʻng avtomatik ravishda oʻchiriladi.
Содержание
- 4 ПЕРЕД ИСПОЛЬЗОВАНИЕМ; Описание; Место размещения; ФУНКЦИИ; Подготовка перед использованием; Панель управления; Управление дисплеем и функция блокировки
- 5 Настройка высоты полок; Память в случае отключения электроэнергии; Большой объем хранения; Настройка температуры холодильника; Функция выходные; Рекомендованное хранение для разных продуктов; ОБСЛУЖИВАНИЕ; Очистка
- 6 Размораживание морозильной камеры; ОБНАРУЖЕНИЕ И УСТРАНЕНИЕ НЕИСПРАВНОСТЕЙ
- 7 ГАРАНТИЙНОЕ И ПОСЛЕГАРАНТИЙНОЕ СЕРВИСНОЕ
- 28 бесплатный звонов из регионов России; БЕСПЛАТНАЯ ГОРЯЧАЯ ЛИНИЯ













