Холодильник Haier CEF535AWG - инструкция пользователя по применению, эксплуатации и установке на русском языке. Мы надеемся, она поможет вам решить возникшие у вас вопросы при эксплуатации техники.
Если остались вопросы, задайте их в комментариях после инструкции.
"Загружаем инструкцию", означает, что нужно подождать пока файл загрузится и можно будет его читать онлайн. Некоторые инструкции очень большие и время их появления зависит от вашей скорости интернета.

KZ
10
ПАЙДАЛАНАР АЛДЫНДА
*CEF537A*** / CEF535А***
Сипаты
Бұл схема сіз сатып алған тоңазытқыштың жинақтамасынан біршама ерекшеленуі мүмкін.*
Орналастыру орны
Монтаждау ережелері мен шарттары:
Тоңазытқышты орнатуға ыңғайлы орынды таңдап
алыңыз: тікелей күн сәулесі түспейтін, едені тегіс жер. Тоңа
-
зытқыштың есіктерін оңай әрі ыңғайлы етіп ашуға болатын
жерді таңдаңыз.
Тоңазытқыш тегіс және қатты жерге орнатылуы тиіс.
Егер тоңазытқыш тұрақсыз, тегіс емес бетке қойылса, ішкі
салқындату жүйесі дұрыс жұмыс істемеуі мүмкін. Егер
тоңазытқыш тегіс емес жерге орнатылса, астына қоятын зат
ретінде тегіс берік және отқа төзімді материалдарды пай
-
далану керек. Егер тоңазытқыш аздап шайалып тұратын
бола, сіз тоңазытқыштың аяқтарын сағат тілімен немесе
сағат тіліне қарсы бұру арқылы бапталатын аяқтарын ұзар
-
та немесе қысқарта аласыз.
ФУНКЦИЯЛАРЫ
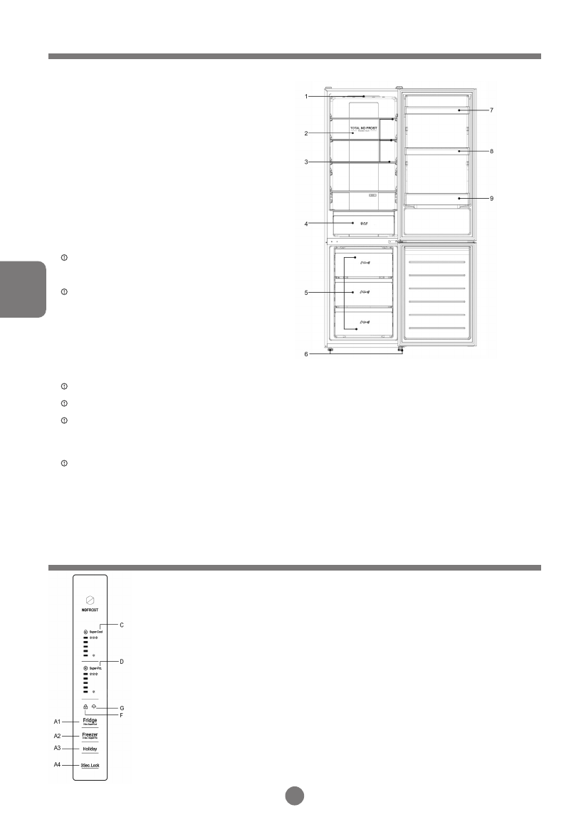
1) LED освещение
2) Total No Frost
3) Полка
4) Ящик для овощей и фруктов
5)Ящики морозильной камеры
6) Регулируемые ножки
7) Верхний держатель бутылок
8) Средний держатель бутылок
9) Большой держатель бутылок
Сақтау ережелері және тасымалдау:
Қапталған тоңазытқыш тік қалпында 80%-дан аспайтын салыстырмалы ылғалдылықта, табиғи желдетілетін жабық бөлмеде
сақталуы тиіс.
Тоңазытқыш ұзақ уақыт желіден ажыратулы тұрған кезде, ішіндегі азық-түлікті алып тастап, камераны тазалаңыз. Камераларда
жағымсыз иістің пайда болмауы үшін, тазалап болған соң, есіктерін аздап ашып қойыңыз.
Тоңазытқышты көлік құралының ішінде ықтимал соққы алуын, жылжуы мен құлап түсуін болдырмау үшін, сенімді етіп бекітіп, кез
келген жабық көлік түрінде тік күйінде тасымалдау керек.
Өткізу:
Өткізу шарттары елдің жергілікті заңнамасына сәйкес жүргізіледі.
Пайдалану алдындағы дайындық
Қаптаманы, көбікпласт негізді және аксессуарларды бекітетін жабысқақ таспаны алып тастаңыз. Ілеспе құжаттама мен аксессу
-
арларды тексеріңіз. Жинақтамада алшақтық болған жағдайда, сатып алған сәттен бастап 14 күн ішінде дүкенге хабарласыңыз. Тоңа
-
зытқышты тиісті орынға жылжытыңыз – «Орналастыру орны» тарауын қараңыз. Пайдаланар алдында корпусты тазалап алыңыз. Ішіне
азық-түлікті салудан бұрын, ылғал жұмсақ шүберекпен тоңазытқыштың сыртқы және ішкі бетін тазалаңыз. Аспапты теңестіріп және
тазалап алғаннан кейін, оның қалыпты жұмыс істеуін қамтамасыз ету үшін, тоңазытқышты қосудан бұрын, ол кемінде 6 сағат жұмыс
істемей тұруы тиіс. Тоңазытқышты электр қорегіне қосқан соң, тоңазыту және мұздату камераларының температурасы автоматты түрде
сәйкес ретте 5 °C және -18 °C етіп белгіленеді. My Zone бөлімі тоңазыту құрылғысы режимінде жұмыс істейді. Режимді қолмен бап
-
тау: «температураны баптау» батырмасын басу арқылы температураны беруге болады (осы нұсқаулықтың «Функкциялар» тарауын
қараңыз). Тоңазытқыш біршама уақыт жұмыс істеп, тоңазытқыштың бөлігі жеткілікті шамада суыған соң, тоңазытқышқа азық-түлікті
салуға болады.
Басқару панелі
Дисплейді басқару және бұғаттау функциясы
Жұмыс аяқталғаннан кейін дисплей экраны өшіп, құлыпталады (F индикаторы жанады). Тоңазытқыштың
есігін ашқан кезде немесе кез келген түймені басқан кезде жанады. (Дабыл кезінде ескерту экраны жанбайды).
Құлыптау функциясы: A индикаторы жанғанша, дисплей экраны құлыптанғанша A4 түймесін 3 секунд басып
тұрыңыз. Құлыпты ашу функциясы: F индикаторы сөнгенше, дисплей экраны құлыптанғанша A4 түймесін 3 се
-
кунд басып тұрыңыз.
Тоңазытқыштың температурасын баптау (Super-Cool)
Қажетті температураны таңдау үшін A1 түймесін басыңыз, температура Мин-ден Макс-қа дейін ауысады,
қажетті индикатор орнын таңдаңыз. Тоңазытқыштың температуралық диапазоны минималды 2 ° C-тан 8 ° C-қа
дейін өзгереді. Орнатылған температураны растау үшін A2 немесе A4 түймесін басыңыз.
Мұздату камерасының температурасын баптау (Super-Frz)
Қажетті температураны таңдау үшін A2 батырмасын басыңыз, температура Мин-ден Макс-қа дейін ауы
-
сады, қажетті индикаторды таңдаңыз. Тоңазытқыштың температуралық диапазоны минималды мәннен -24 °
C дейін, максималды мән -16 ° C аралығында болады. Орнатылған температураны растау үшін A2 немесе A4
түймесін басыңыз. Мұздатқышқа көптеген өнімдерді орналастырудан 24 сағат бұрын қосуға болады.
Қатты суыту (Super-Cool)
Функцияны белсендіру үшін, С индикаторы жанғанға дейін А1 батырмасын 3 секунд ұстап тұрыңыз. Қатты
суыту режимінен шығу үшін, С индикаторы ажыратылғанға дейін А1 батырмасын ұстап тұрыңыз. Бұл функция
температура ең төмен деңгейден төмен түскенде, автоматты түрде өшеді.
Содержание
- 2 RUS; СОДЕРЖАНИЕ; Условные знаки; ПРЕДУПРЕЖДЕНИЕ; Утилизация
- 4 ПЕРЕД ИСПОЛЬЗОВАНИЕМ; Описание; Место размещения; ФУНКЦИИ; Подготовка перед использованием; Панель управления
- 5 Настройка высоты полок; Большой объем хранения; Настройка температуры холодильника; Рекомендованное хранение для разных продуктов; ОБСЛУЖИВАНИЕ; Очистка
- 6 Размораживание морозильной камеры; ОБНАРУЖЕНИЕ И УСТРАНЕНИЕ НЕИСПРАВНОСТЕЙ
- 28 бесплатный звонов из регионов России; БЕСПЛАТНАЯ ГОРЯЧАЯ ЛИНИЯ













