Холодильник Haier CEF535AGG - инструкция пользователя по применению, эксплуатации и установке на русском языке. Мы надеемся, она поможет вам решить возникшие у вас вопросы при эксплуатации техники.
Если остались вопросы, задайте их в комментариях после инструкции.
"Загружаем инструкцию", означает, что нужно подождать пока файл загрузится и можно будет его читать онлайн. Некоторые инструкции очень большие и время их появления зависит от вашей скорости интернета.

UA
16
ПЕРЕД ВИКОРИСТАННЯМ
*CEF537A*** / CEF535А***
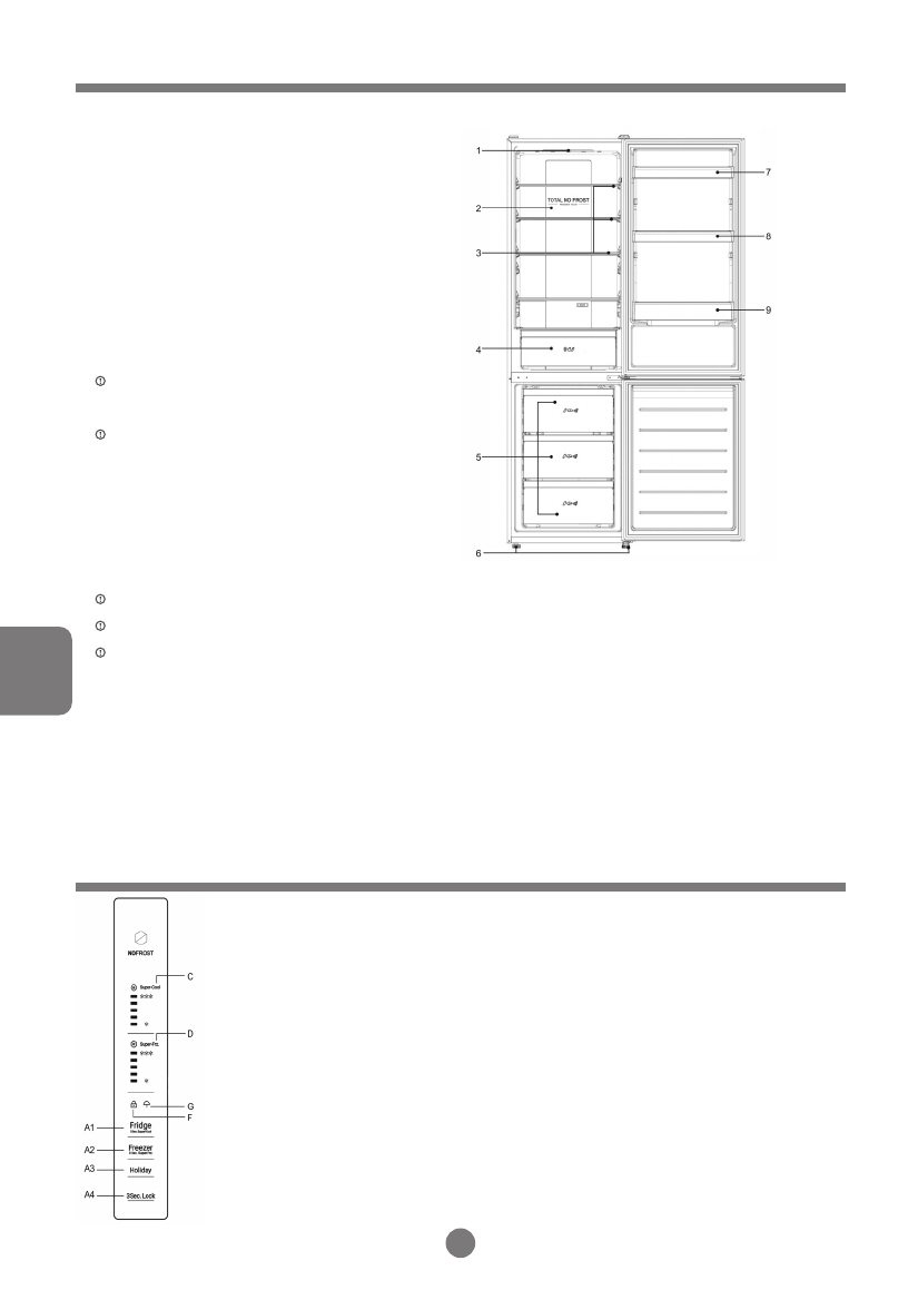
Опис
Ця схема може дещо відрізнятись від комплектації холодильника, який ви придбали.*
Місце розміщення
Правила та умови монтажу:
Виберіть найкраще місце для встановлення холо
-
дильника: куди не падає пряме сонячне світло, де підлога
рівна. Виберіть місце, де можна легко і зручно відкривати
дверцята холодильника.
Холодильник повинен бути встановлений на рівній
і твердій поверхні. Якщо холодильник знаходиться на не
-
стійкою, нерівній поверхні, можливі неполадки в роботі
внутрішньої системи охолодження. Якщо холодильник
встановлений на нерівній поверхні, в якості підставки необ
-
хідно використовувати рівні, міцні і вогнестійкі матеріали.
Якщо холодильник злегка хиткий, можна подовжити або
вкоротити ніжки холодильника, повертаючи їх за годинни
-
ковою або проти годинникової стрілки.
ФУНКЦІЇ
1) LED освещение
2) Total No Frost
3) Полка
4) Ящик для овощей и фруктов
5)Ящики морозильной камеры
6) Регулируемые ножки
7) Верхний держатель бутылок
8) Средний держатель бутылок
9) Большой держатель бутылок
Правила зберігання і транспортування:
Упакований холодильник повинен зберігатися при відносній вологості не більше 80% в закритих приміщеннях з природною вен
-
тиляцією у вертикальному положенні.
Якщо холодильник відключений від мережі на тривалий час, необхідно вийняти всі продукти, розморозити морозильну камеру
і зробити прибирання камер. Дверцята після прибирання залишити трохи відкритими, щоб в камерах не з’явився неприємний запах.
Транспортувати холодильник необхідно у вертикальному положенні будь-яким видом критого транспорту, надійно закріпивши
його, щоб виключити будь-які можливі удари, переміщення і падіння всередині транспортного засобу.
Реалізація:
реалізація здійснюється згідно місцевого законодавства країни.
Підготовка до використання
Зніміть упаковку, підставку з пінопласту і клейку стрічку, що фіксує аксесуари. Перевірте супровідну документацію та аксесуари.
У разі розбіжності в комплектації зверніться в магазин протягом 14 днів з моменту покупки. Пересуньте холодильник у відповідне
місце – дивіться розділ «Місце розміщення». Рекомендується почистити корпус перед використанням. Протріть зовнішню і внутрішню
частину холодильника вологою м’якою ганчіркою перед розміщенням в ньому продуктів харчування. Після вирівнювання і очищення
приладу, дайте йому постояти в неробочому стані не менше 6 годин перед включенням, щоб забезпечити його нормальну роботу. Після
підключення холодильника до електромережі, температура холодильної та морозильної камери автоматично встановлюється на 5°C і
-18°C відповідно. Відділення My Zone працює в режимі холодильного пристрою. Ручна настройка режиму: можна задати температуру
натисканням кнопки «налаштування температури» (дивіться розділ «Функції» цього керівництва). Завантажте холодильник продуктами
харчування після того, як він деякий час попрацював і відділення холодильника достатньо охолодилося.
Панель управління
Управління дисплеєм і функція блокування
Дисплей вимикається і блокується (загоряється індикатор F) автоматично через 30 секунд після закінчення
операції. Він загоряється при відкритті дверцят холодильника або при натисканні будь-якої кнопки. (При попе
-
реджувальному сигналі дисплей не спалахує). Функція блокування: натисніть і утримуйте кнопку А4 протягом
3 секунд, поки не загориться індикатор F, дисплей заблокується. Функція розблокування: натисніть і утримуйте
кнопку А4 протягом 3 секунд, поки не згасне індикатор Н, дисплей розблокується.
Налаштування температури холодильника (Super-Cool)
Для вибору необхідної температури, натискайте кнопку А1 при цьому температура буде циклічно зміню
-
ватися від Min до Max, виберіть необхідне положення індикатора Діапазон температур холодильника варіює
від мінімального значення 2 ° C до максимального значення 8 ° C. Натисніть А2, щоб підтвердити встановлену
температуру, або натисніть А4.
Налаштування температури морозильної камери (Super-Frz)
Для вибору необхідної температури, натискайте кнопку А2 при цьому температура буде циклічно змінюва
-
тися від Min до Max, виберіть необхідне положення індикатора. Діапазон температур холодильника варіює від
мінімального значення -24 ° C до максимального значення -16 ° C. Натисніть А2, щоб підтвердити встановлену
температуру, або натисніть А4. Можна включити за 24 години до розміщення великої кількості продуктів в мо
-
розильну камеру.
Сильне охолодження (Super-Cool)
Для активації функції утримуйте кнопку А1 протягом 3 секунд, поки не загориться індикатор C. Для виходу
з режиму «Сильне охолодження» необхідно утримувати кнопку А1 до моменту відключення індикатора С. Ця
функція автоматично вимикається, коли температура падає нижче мінімального рівня.
Содержание
- 2 RUS; СОДЕРЖАНИЕ; Условные знаки; ПРЕДУПРЕЖДЕНИЕ; Утилизация
- 4 ПЕРЕД ИСПОЛЬЗОВАНИЕМ; Описание; Место размещения; ФУНКЦИИ; Подготовка перед использованием; Панель управления
- 5 Настройка высоты полок; Большой объем хранения; Настройка температуры холодильника; Рекомендованное хранение для разных продуктов; ОБСЛУЖИВАНИЕ; Очистка
- 6 Размораживание морозильной камеры; ОБНАРУЖЕНИЕ И УСТРАНЕНИЕ НЕИСПРАВНОСТЕЙ
- 28 бесплатный звонов из регионов России; БЕСПЛАТНАЯ ГОРЯЧАЯ ЛИНИЯ