Холодильник Haier C2F737CLBG - инструкция пользователя по применению, эксплуатации и установке на русском языке. Мы надеемся, она поможет вам решить возникшие у вас вопросы при эксплуатации техники.
Если остались вопросы, задайте их в комментариях после инструкции.
"Загружаем инструкцию", означает, что нужно подождать пока файл загрузится и можно будет его читать онлайн. Некоторые инструкции очень большие и время их появления зависит от вашей скорости интернета.

4
5
RUS
RUS
ФУНКЦИИ
ПЕРЕД ИСПОЛЬЗОВАНИЕМ
*
A2F635*/A2F637*/
*
C2F636*/C2F637*/C2F737*/A2F737*
*
C2F536*/C2F537*
*
C2F636*/C2F637*/C2F737*
/
C2F536*/C2F537*
*А
2F635*/A2F637*/A2F737*
Описание
Эта схема может немного отличаться от комплектации холодильника, который вы приобрели.
Настройка температуры морозильной камеры
Несколько раз нажмите А1 пока не загорится индикатор С; на
-
жмите А2 для настройки температуры морозильника. Индикаторы
С и D начнут одновременно мигать. Температура понизится на 1 °C
с каждым нажатием; Последовательность параметров настройки
морозильника через “-16”-“-17”-“-18”-“-19”-“-20”-“-21”-“-22”-“-
23”-“-24”-“-16”. Диапазон температур варьирует от min. значения
-24 °C до max. значения -16 °C. Прекратите нажимать А2, чтобы
подтвердить установленную температуру.
Сильное охлаждение
Несколько раз нажмите кнопку А3 пока не загорится индикатор
Е; нажмите А4, чтобы подтвердить активацию функции Сильное
охлаждение. Данная функция может быть отключена посредством
повторения процесса активации вручную. Эта функция автомати
-
чески отключится, когда температура упадет ниже минимального
уровня. В этом режиме, функция Сильное охлаждение отключает
-
ся при настройке температуры холодильника.
Сильная заморозка
Несколько раз нажмите кнопку А3 пока не загорится индикатор
F; нажмите А4, чтобы подтвердить активацию функции Сильная
заморозка. Данная функция может быть отключена посредством
повторения процесса активации вручную. Эта функция автомати
-
чески отключится по истечении 56 часов. Если вы замораживаете
большое количество продуктов в морозильной камере, включите
функцию Сильная заморозка за 24 часа до помещения продуктов
питания в морозильной камере. В этом режиме, функция Сильная
заморозка отключается при настройке температуры морозильни
-
ка.
Функция выходные
Несколько раз нажмите кнопку А3 пока не загорится индикатор
G; нажмите А4, чтобы подтвердить активацию функции Выходные.
Данная функция может быть отключена посредством повторения
процесса активации вручную. В режиме Выходные, холодильник
автоматически работает при температуре 17 °C. В этом режиме,
функция Выходные отключается при настройке температуры хо
-
лодильника.
Управление дисплеем и функция блокировки
Экран дисплея выключается и блокируется (загорается индика
-
тор Н) автоматически через 30 секунд после окончания операции.
Он загорается при открытии дверцы холодильника или при нажа
-
тии любой кнопки. (При предупредительном сигнале экран дис
-
плея не загорается). Функция блокировки: Нажимайте и удержи
-
вайте кнопку А4 в течение 3 секунд пока не загорится индикатор Н,
экран дисплея блокируется. Функция разблокировки: Нажимайте
и удерживайте кнопку А4 в течение 3 секунд пока не погаснет ин
-
дикатор Н, экран дисплея разблокируется.
Предупреждающий сигнал об открытой двери
Когда дверца холодильника открывается, свет внутри холо
-
дильника и панель управления загораются. Если дверца не закры
-
вается в течение 3 минут, раздается предупреждающий сигнал.
Предупреждающий сигнал можно прервать, закрыв дверцу или
прикоснувшись к панели управления. Если дверца холодильника
не закрывается дольше 7 минут, свет в холодильнике и подсветка
контрольной панели автоматически погаснут.
Настройка температуры морозильной камеры
Для выбора необходимой температуры, нажимайте кнопку А2
при этом температура будет циклично изменяться от Min до Max
на индикаторе D, выберите необходимую вам температур. Диапа
-
зон температур холодильника варьирует от минимального значе
-
ния -24°C до максимального значения -16°C.
Сильное охлаждение
Несколько раз нажмите кнопку А3 пока не загорится индикатор
Е; нажмите А4, чтобы подтвердить активацию функции Сильное
охлаждение. Данная функция может быть отключена посредством
повторения процесса активации вручную. Эта функция автомати
-
чески отключится, когда температура упадет ниже минимального
уровня. В этом режиме, функция Сильное охлаждение отключает
-
ся при настройке температуры холодильника.
Сильная заморозка
Для активации функции удерживайте кнопку А2 в течение
3 секунд пока не загорится индикатор D. Для выхода из режима
сильное охлаждение необходимо удерживать кнопку А2 до мо
-
мента отключения индикатора D. Эта функция автоматически от
-
ключится по истечении 56 часов. Если вы замораживаете большое
количество продуктов в морозильной камере, включите функцию
Сильная заморозка за 24 часа до помещения продуктов питания в
морозильной камере. В этом режиме, функция Сильная заморозка
отключается при настройке температуры морозильника.
Функция выходные
Несколько раз нажмите кнопку А3 пока не загорится индикатор
G, нажмите А3, чтобы подтвердить активацию функции Выходные.
Данная функция может быть отключена посредством повторения
процесса активации вручную. В режиме Выходные, холодильник
автоматически работает при температуре 17 °C. В этом режиме,
функция Выходные отключается при настройке температуры холо
-
дильника. Если данная функция активирована холодильный при
-
бор будет работать с пониженным потреблением электроэнергии,
при этом предотвращается образования неприятного запаха. При
этом морозильное отделение работает в нормальном режиме со
-
храняя замороженные продукты.
Управление дисплеем и функция блокировки
Экран дисплея выключается и блокируется (загорается индика
-
тор Н) автоматически через 30 секунд после окончания операции.
Он загорается при открытии дверцы холодильника или при нажа
-
тии любой кнопки. (При предупредительном сигнале экран дис
-
плея не загорается). Функция блокировки: Нажимайте и удержи
-
вайте кнопку А4 в течение 3 секунд пока не загорится индикатор Н,
экран дисплея блокируется. Функция разблокировки: Нажимайте
и удерживайте кнопку А4 в течение 3 секунд пока не погаснет ин
-
дикатор Н, экран дисплея разблокируется.
Предупреждающий сигнал об открытой двери
Когда дверца холодильника открывается, свет внутри холо
-
дильника и панель управления загораются. Если дверца не закры
-
вается в течение 3 минут, раздается предупреждающий сигнал.
Предупреждающий сигнал можно прервать, закрыв дверцу или
прикоснувшись к панели управления. Если дверца холодильника
не закрывается дольше 7 минут, свет в холодильнике и подсветка
контрольной панели автоматически погаснут.
Настройка высоты полок
В холодильнике имеется ящик для фруктов и овощей. Он подходит для хранения фруктов, овощей и т. п.Полку можно переставить,
чтобы установить полку на место, поместите проушины с обеих сторон полки на направляющие и задвиньте ее до упора.
Ящик для овощей и фруктов
В холодильнике имеется ящик для фруктов и овощей. Он подходит для хранения фруктов, овощей
и т. п.
Отсек фреш зона 0 °C
Температура в ящике поддерживается на уровне примерно 0 °C. Она может слегка изменяться в за
-
висимости от разной температуры окружающей среды или режима работы холодильника. Он подходит
для хранения свежей рыбы, мяса и приготовленной пищи в течение 1–2 дней. В зависимости от требо
-
ваний хранимых продуктов отсек Фреш зона 0 °C.
Антибактериальный модуль T.ABT
Принцип работы модуля основан на свойствах кристаллов турмалина (камень природного происхождения). Кристаллы турмалина
обладают свойством генерировать электрический заряд при воздействии на него изменением температурной среды (охлаждение,
нагрев). Один конец кристалла имеет отрицательный заряд, а другой положительный. Турмалин заряжает молекулы воды в окружаю
-
щем воздухе. Таким образом, отрицательно заряженные ионы окружающего воздуха, вступая в реакцию с ионами серебра, образуют
антибактериальный эффект. Модуль не требует дополнительной настройки.
Использование складной полки
Рис. 1 демонстрирует складную полку в разложенном виде, при котором вы можете размещать контейнеры для
продуктов питания. Рис. 2 демонстрирует складную полку в сложенном виде, при котором вы можете размещать
более высокие контейнеры с для продуктов питания. Чтобы сложить полку из состояния 1 в состояние 2, просто
потяните устройство b назад, затем толкните устройство b внутрь в направлении стрелки, указанной на рисунке.
Чтобы разложить полку из состояния 2 в состояние 1, потяните устройство b назад, затем потяните устройство b в
направлении стрелки, указанной на рисунке.
Использование проволочного держателя вин
Рис. 1 демонстрирует сложенное состояние проволочного держателя вин. В таком положении возможно сэко
-
номить много пространства. Рис. 2 демонстрирует разложенное состояние проволочного держателя вин. В таком
положении на нем возможно хранить различные вина. Чтобы развернуть его из положения 1 в положение 2, про
-
сто потяните проволоку вниз. Чтобы сложить его из положения 2 в положение 1, просто толкните проволоку вверх.
Убедитесь в том, что оба конца полки находятся на одном уровне. Иначе она может упасть или же могут
упасть продукты, находящиеся на ней.
Лампа в отсеке холодильника и ее замена
Параметры лампы: 12 В макс. 2 Вт C2F636C* или 12 Вт A2F635* макс. 5 Вт. Лампа светодиодная и этот источник
света обеспечивает малое потребление энергии и долгий срок службы. Если имеются неисправности, свяжитесь с
персоналом по после продажному обслуживанию.
Полка HCS
Полка над овощным ящиком оснащена экологичной растительной мембраной с респираторной функцией.
Продукты будут оставаться свежими в течение длительного времени.
Место размещения
Выравнивание корпуса холодильника. Холодильник должен быть размещен на ровной и твердой поверхности. Если холодильник
помещается на неровную поверхность, в качестве подставки должны использоваться ровные прочные и огнестойкие материалы. Если
холодильник слегка неустойчив, вы можете удлинить или укоротить настраиваемые ножки холодильника, поворачивая их по часовой
или против часовой стрелки.
Для обеспечения правильного закрытия двери холодильник слегка наклонен назад - конструктивная особенность.
Подготовка перед использованием
Удалите упаковку, основание из пенопласта и клейкую ленту, фиксирующую аксессуары. Проверьте сопроводительную докумен
-
тацию и аксессуары. В случае расхождения в комплектации обратитесь в магазин в течение 5 дней с момента покупки. Передвиньте
холодильник в соответствующее место - смотрите раздел «Место размещения». Рекомендуется почистить корпус перед использовани
-
ем. Почистите наружную и внутреннюю часть холодильника водой перед тем, как разместить в нем продукты питания. После выравни
-
вания и очистки прибора, дайте ему постоять в нерабочем состоянии не менее 6 часов перед тем, как включить его, чтобы обеспечить
его нормальную работу. После подключения холодильника к электроснабжению, температура холодильника и морозильной камеры
автоматически устанавливается на 5 °C и -18 °C соответственно. Отделение My Zone работает в режиме холодильного устройства. Ре
-
жим настройки холодильника. Ручная настройка режима: можно задать температуру нажатием кнопки «настройка температуры» (смотри
-
те раздел «Описание функций» данного руководства). Загрузите холодильник продуктами питания после того как он некоторое время
поработал и отсек холодильника достаточно охладился
.
ФУНКЦИИ
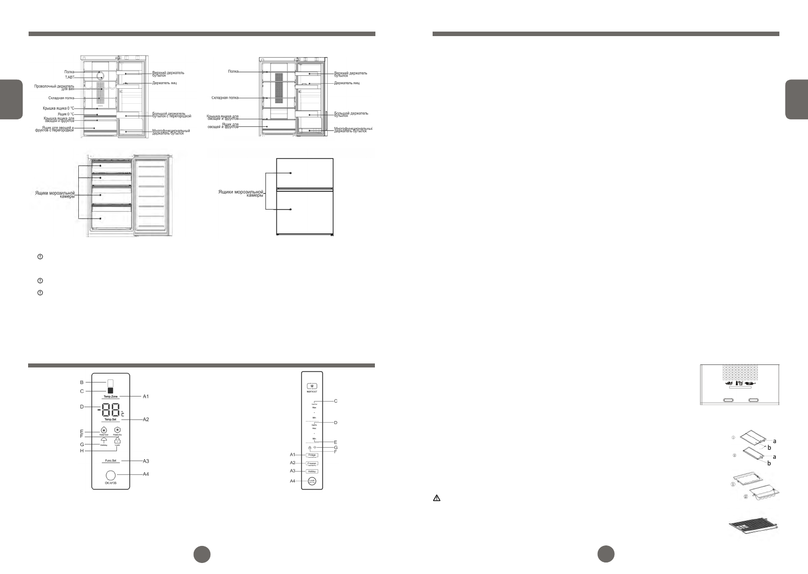
Панель управления стандартная
Настройка температуры холодильника
Несколько раз нажмите А1 пока не загорится индикатор В; нажми
-
те А2, чтобы настроить температуру холодильника. Индикаторы В и D
начнут одновременно мигать. Температура возрастет на 1 °C с каждым
нажатием; Последовательность параметров настройки холодильника
через “2”-“3”-“4”-“5”-“6”-“7”-“8”-“2”. Диапазон температур холодиль
-
ника варьирует от минимального значения 2 °C до максимального
значения 8 °C. Прекратите нажимать А2, чтобы подтвердить установ
-
ленную температуру.
Панель управления эконом
Настройка температуры холодильника
Для выбора необходимой температуры, нажимайте кнопку
А1 при этом температура будет циклично изменяться от Min до
Max на индикаторе С, выберите необходимую вам температуру.
Диапазон температур холодильника варьирует от минимального
значения 2°C до максимального значения 8°C.