Холодильник Haier BCFT629TWRU - инструкция пользователя по применению, эксплуатации и установке на русском языке. Мы надеемся, она поможет вам решить возникшие у вас вопросы при эксплуатации техники.
Если остались вопросы, задайте их в комментариях после инструкции.
"Загружаем инструкцию", означает, что нужно подождать пока файл загрузится и можно будет его читать онлайн. Некоторые инструкции очень большие и время их появления зависит от вашей скорости интернета.

18
Інструкція
зі встановлення
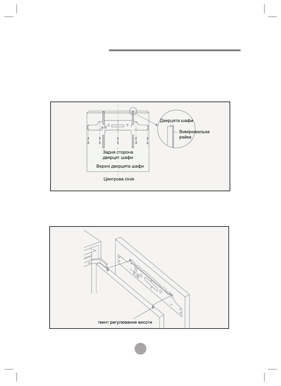
3. Переверніть нижні дверцята холодильника, покладіть їх на чисту підлогу та щільно
притисніть верхню фіксуючу пластину до верхньої торцевої поверхні дверцят шафи.
4. Вирівняйте верхню фіксуючу пластину відносно центрової лінії дверцят шафи, щільно
притиснувши вимірювальну рейку до верхньої торцевої поверхні дверцят шафи. Після
вирівнювання закріпіть її за допомогою шурупа. Див. малюнок нижче:
5. Витягніть вимірювальну рейку верхньої фіксуючої пластини.
6. Відкрийте дверцята холодильника, повісьте зібрані верхні дверцята шафи на гвинт
регулювання висоти на верхній стороні холодильника та закріпіть її за допомогою
шестигранних гайок (не затягуйте їх занадто сильно, щоб дозволити дверцятам
рухатися в горизонтальній площині).
Содержание
- 5 Характеристики
- 6 Предупреждающие знаки; Уважаемые покупатели продукции Haier,; Осторожно
- 10 Размещение
- 13 Список основных деталей
- 14 Основные
- 15 Подготовительные; Внимание
- 17 Установка холодильника в шкафу
- 18 Установка верхней дверцы шкафа
- 21 Установка нижних дверец шкафа
- 22 Выдвиньте мерную рейку верхней крепежной пластины.
- 24 Регулировка дверцы шкафа; Регулировка верхнего торца дверцы шкафа
- 26 Рисунок
- 27 Инструкция по установке
- 28 Советы по экономии электроэнергии; Во время установки
- 29 Рисунок расположения механических рукояток (BCFE625AWRU); Low
- 30 значение холодильной камеры.; Эксплуатация; Включение; состояии
- 31 значение будет сохаранено.; Настройка; течении 5 секунд и значение будет сохаранено.
- 32 B a; Методы; Выключатель питания; Регулировка температуры морозильной камеры
- 34 Включите питание; Поместите продукты питания в холодильник; Не кладите в холодильник слишком многопродуктов.; Функционирование холодильника; заводе и составляет соответственно 5 °C и -18 °C; Начало
- 35 Камера
- 36 Использование контейнера для; Использование полки для бутылок; Замена внутренней лампы
- 39 Морозильник используется для
- 41 Очистка
- 42 Перерыв в работе; Меры в случае прекращения подачи; Прекращение использования
- 43 Перед отъездом; Запрещено; При переноске
- 44 Ответы на вопросы
- 47 Холодильник не включается
- 48 Технические
- 50 Меры
- 51 Служба
- 52 Замечания по установке.; Схема прорезания вентиляционных отверстий
- 53 Убедитесь, что дверной магнит находится в правильном
Характеристики
Остались вопросы?Не нашли свой ответ в руководстве или возникли другие проблемы? Задайте свой вопрос в форме ниже с подробным описанием вашей ситуации, чтобы другие люди и специалисты смогли дать на него ответ. Если вы знаете как решить проблему другого человека, пожалуйста, подскажите ему :)












