Генераторы Iron Angel EG 3000 - инструкция пользователя по применению, эксплуатации и установке на русском языке. Мы надеемся, она поможет вам решить возникшие у вас вопросы при эксплуатации техники.
Если остались вопросы, задайте их в комментариях после инструкции.
"Загружаем инструкцию", означает, что нужно подождать пока файл загрузится и можно будет его читать онлайн. Некоторые инструкции очень большие и время их появления зависит от вашей скорости интернета.

18
Котушка під-
збудження
Ре
гул
ят
ор
н
ап
руг
и
Реле перемикання
напруги
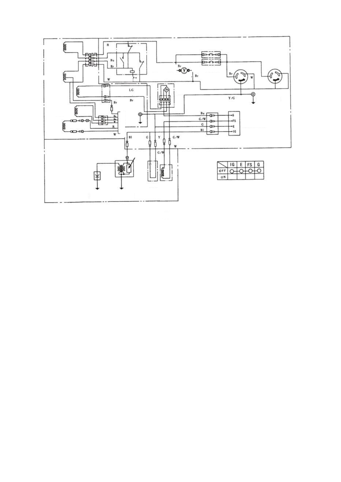
Принципова електрична схема генераторної
установки на 110/220 В
Головна котушка
Вольтметр
Головна котушка
Котушка
збудження
Блок генератора
Котушка
постійного
струму
Вихід
заземлювання
Розетка
Регулятор перемикань
Перемикач запалювання
З’єднання перемикача запалювання
Блок управління
Котушка
запалювання
Перемика
ч рівня
пального
Запальна
свічка
Блок двигуна
Паливний
електрома
гнітний
клапан
Перемикач напруги
Діод
Характеристики
Остались вопросы?Не нашли свой ответ в руководстве или возникли другие проблемы? Задайте свой вопрос в форме ниже с подробным описанием вашей ситуации, чтобы другие люди и специалисты смогли дать на него ответ. Если вы знаете как решить проблему другого человека, пожалуйста, подскажите ему :)



