Генераторы Huter DY6500LXG - инструкция пользователя по применению, эксплуатации и установке на русском языке. Мы надеемся, она поможет вам решить возникшие у вас вопросы при эксплуатации техники.
Если остались вопросы, задайте их в комментариях после инструкции.
"Загружаем инструкцию", означает, что нужно подождать пока файл загрузится и можно будет его читать онлайн. Некоторые инструкции очень большие и время их появления зависит от вашей скорости интернета.
Загружаем инструкцию

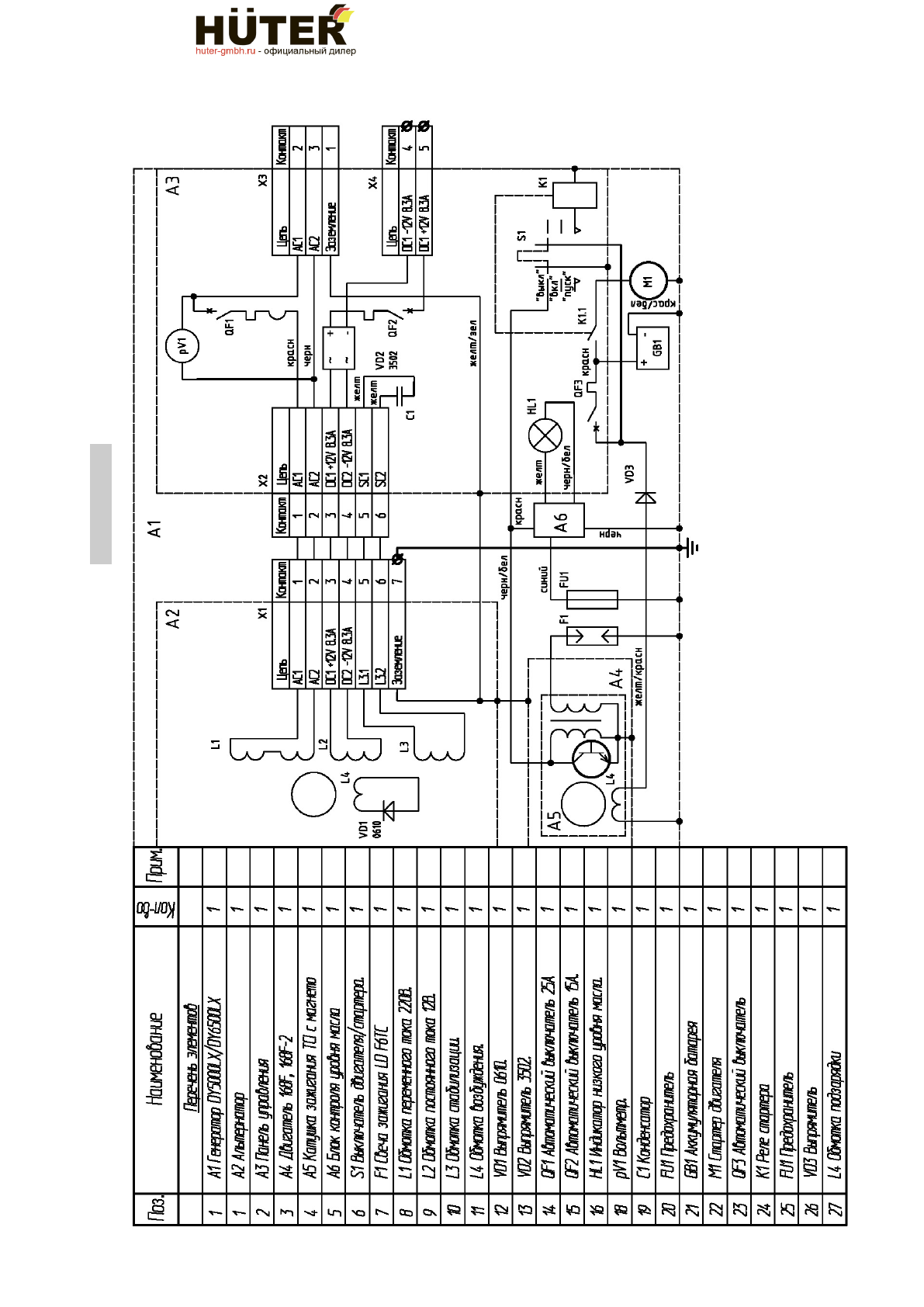
Приложен
ие 1.
DY 4000LG, DY 6500LXG
40
www.huter-gmbh.ru
•
info@huter-gmbh.ru
•
+7 (495) 374-86-14
г
.
Москва
,
Старокаширское
шоссе
,
д
. 18 ,
офис
5
Содержание
- 4 Введение; Особое внимание следует уделить разделу «Обеспечение; Назначение
- 5 Генератор с воздушным охлаждением двигателя
- 6 Параметры двигателей; В составе генератора.; Тип и конструкция двигателей; LG
- 7 Принадлежности; LD F6; Топливо и смазочное масло
- 8 Состав изделия, элементы управления
- 9 Устройство и работа изделия
- 16 Техническое обслуживание. Консервация
- 21 Обеспечение требований безопасности
- 24 Требования к транспортировке и хранению
- 25 Комплектность; Наименование; Гарантийные обязательства
- 28 Единая служба технической поддержки; ter
- 30 Свидетельство о приемке; Hű
- 31 Сервис
- 33 Учёт постановки на техническое обслуживание (ТО)
- 34 Движение изделия при эксплуатации.
- 39 Внеплановые работы при эксплуатации; В данном формуляре учитываются все внеплановые работы и