Генераторы EuroPower EP 8 DE - инструкция пользователя по применению, эксплуатации и установке на русском языке. Мы надеемся, она поможет вам решить возникшие у вас вопросы при эксплуатации техники.
Если остались вопросы, задайте их в комментариях после инструкции.
"Загружаем инструкцию", означает, что нужно подождать пока файл загрузится и можно будет его читать онлайн. Некоторые инструкции очень большие и время их появления зависит от вашей скорости интернета.

B
E
V
E
S
T
IG
IN
G
S
G
A
T
E
N
T
R
O
U
S
D
E
F
IX
A
T
IO
N
F
IX
A
T
IO
N
H
O
L
E
S
B
E
V
E
S
T
IG
U
N
G
S
L
Ö
C
H
E
R
E
IN
B
A
U-
A
B
M
E
S
S
UN
G
E
N
E
P
9
T
D
E
K
U/
M
A
1
m
m
1
°
R
E
M
A
R
K
S
:
D
E
B
U
R
A
N
D
T
O
L
.
A
N
G
U
L
A
R
:
9
9
1
1
1
0
9
0
3
A
R
T
.N
R
.:
T
O
L
.
L
IN
E
A
R
:
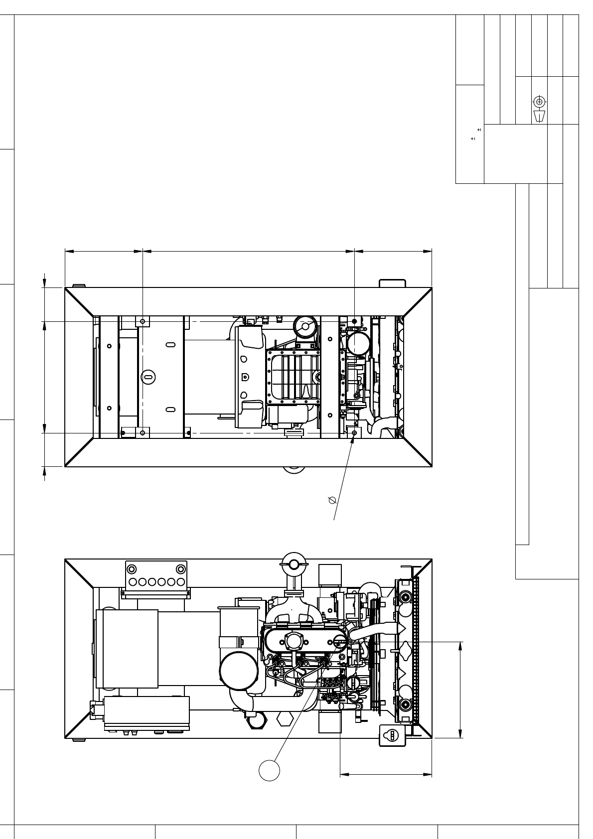
G
e
n
e
ra
to
rs
C
U
S
T
O
M
E
R
:
-
T
IT
L
E
:
-
-
O
D
.N
R
.:
0
0
R
E
V
.N
R
.:
-
2
5
/
0
5
/
2
0
1
1
S
E
N
T
O
N
:
R
E
V
IS
E
D
O
N
:
V
V
/
S
H
-
M
H
M
H
D
E
S
IG
N
:
D
R
A
W
N
:
R
E
V
IS
E
D
:
A
P
P
V
'D
:
E
U
R
O
P
O
W
E
R
D
IM
E
N
S
IO
N
S
A
R
E
I
N
M
IL
L
IM
E
T
E
R
S
U
N
L
E
S
S
O
T
H
E
R
W
IS
E
S
P
E
C
IF
IE
D
:
B
R
E
A
K
S
H
A
R
P
E
D
G
E
S
M
A
T
E
R
IA
L
:
D
IR
E
C
T
O
R
Y
:
S
C
A
L
E
:1
:1
0
S
H
E
E
T
4
O
F
4
A
4
4
1
3
2
A
B
C
D
5
6
IN
B
O
UW
M
A
T
E
N
-
D
IM
E
N
S
IO
N
S
G
E
N
E
R
A
L
E
S
-
M
A
IN
D
IM
E
N
S
IO
N
S
-
-
1
3
3
4
2
,5
3
25
1
2
0
3
9
5
1
2
0
2
75
7
50
2
75
4
x
1
4
