Gefest ПВГ 2231-01 Р46 - Инструкция по эксплуатации

Gefest ПВГ 2231-01 Р46

Варочная панель Gefest ПВГ 2231-01 Р46 - инструкция пользователя по применению, эксплуатации и установке на русском языке. Мы надеемся, она поможет вам решить возникшие у вас вопросы при эксплуатации техники.

Если остались дополнительные вопросы — свяжитесь с нами через контактную форму.

1 Страница 1
2 Страница 2
3 Страница 3
4 Страница 4
5 Страница 5
6 Страница 6
7 Страница 7
8 Страница 8
9 Страница 9
10 Страница 10
11 Страница 11
12 Страница 12
13 Страница 13
14 Страница 14
15 Страница 15
16 Страница 16
17 Страница 17
18 Страница 18
19 Страница 19
20 Страница 20
21 Страница 21
22 Страница 22
23 Страница 23
Страница: / 23

Содержание:

  • Страница 4 – ОБЩИЕ УКАЗАНИЯ; Наша бытовая техника постоянно совершенствуется, улучшаются ее
  • Страница 5 – ТРЕБОВАНИЯ БЕЗОПАСНОСТИ
  • Страница 7 – ТЕХНИЧЕСКИЕ ХАРАКТЕРИСТИКИ; Модель; Наличие дополнительных элементов комфорности:
  • Страница 9 – КОМПЛЕКТНОСТЬ; * Только для панели варочной, изготовленной под природный газ.; УСТРОЙСТВО И ПОРЯДОК РАБОТЫ
  • Страница 10 – УПРАВЛЕНИЕ ПАНЕЛЬЮ ВАРОЧНОЙ
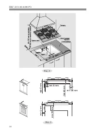
  • Страница 15 – УСТАНОВКА
  • Страница 17 – ПОДКЛЮЧЕНИЕ
  • Страница 19 – РЕКОМЕНДАЦИИ РЕМОНТНЫМ СЛУЖБАМ; Регулировка для различных давлений газа
  • Страница 20 – хлоросодержащие средства и другие агрессивные компоненты; ПРАКТИЧЕСКИЕ СОВЕТЫ
  • Страница 22 – 2 ТРАНСПОРТИРОВАНИЕ И ХРАНЕНИЕ; требованиям манипуляционных знаков.; 1 ТЕХНИЧЕСКОЕ ОБСЛУЖИВАНИЕ ПАНЕЛИ ВАРОЧНОЙ; варочной или необходимости ее замены.
  • Страница 23 – 4 ГАРАНТИИ ИЗГОТОВИТЕЛЯ; ВНИМАНИЕ; СП ОАО «Брестгазоаппарат»; - адрес электронной почты
Загрузка инструкции

"Загрузка инструкции" означает, что нужно подождать пока файл загрузится и можно будет его читать онлайн. Некоторые инструкции очень большие и время их появления зависит от вашей скорости интернета.

Краткое содержание

Страница 4 - ОБЩИЕ УКАЗАНИЯ; Наша бытовая техника постоянно совершенствуется, улучшаются ее

2 ПВГ 2231.00.0.000 РЭ 1 ОБЩИЕ УКАЗАНИЯ Наша бытовая техника постоянно совершенствуется, улучшаются ее характеристики, обновляется дизайн, поэтому рисунки и обозначения в руководстве могут несколько отличаться от Вашей модели. Настоящее руководство по эксплуатации распространяется на панели варочные...

Страница 5 - ТРЕБОВАНИЯ БЕЗОПАСНОСТИ

3 ПВГ 2231.00.0.000 РЭ 2 ТРЕБОВАНИЯ БЕЗОПАСНОСТИ ВНИМАНИЕ! ЛИЦА, ПОЛЬЗУЮЩИЕСЯ ПАНЕЛЯМИ ВАРОЧНЫМИ, ОБЯЗАНЫ ЗНАТЬ ПРАВИЛА ПОЛЬЗОВАНИЯ ГАЗОМ В БЫТУ И ВНИМАТЕЛЬНО ИЗУЧИТЬ ДАННОЕ РУКОВОДСТВО. ВНИМАНИЕ! ПЕРЕД ПЕРВЫМ ВКЛЮЧЕНИЕМ ВЫДЕРЖАТЬ ПРИБОР В ПОМЕЩЕНИИ, ГДЕ ОН БУДЕТ УСТАНОВЛЕН, НЕ МЕНЕЕ ЧЕТЫРЕХ ЧАСОВ. ...

Страница 7 - ТЕХНИЧЕСКИЕ ХАРАКТЕРИСТИКИ; Модель; Наличие дополнительных элементов комфорности:

5 ПВГ 2231.00.0.000 РЭ 3 ТЕХНИЧЕСКИЕ ХАРАКТЕРИСТИКИ Модель ПВГ 2231 ПВГ 2231-01, -03 ПВГ 2231-08 ПВГ 2231-05, -06 ПВГ 2231-07 Класс прибора 3 Категория прибора II 2Н+ЗВ/Р Диапазон номинальных напряжений, В 220-230 Номинальная частота, Гц 50 Класс защиты от поражения электрическим током I Вид климати...

Характеристики

Другие модели - Варочные панели Gefest

Все варочные панели Gefest