Faber FLEXA W A50 - Инструкция по эксплуатации

Faber FLEXA W A50

Вытяжка Faber FLEXA W A50 - инструкция пользователя по применению, эксплуатации и установке на русском языке. Мы надеемся, она поможет вам решить возникшие у вас вопросы при эксплуатации техники.

Если остались дополнительные вопросы — свяжитесь с нами через контактную форму.

1 Страница 1
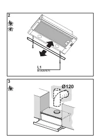
2 Страница 2
3 Страница 3
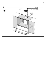
4 Страница 4
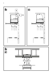
5 Страница 5
6 Страница 6
7 Страница 7
8 Страница 8
9 Страница 9
10 Страница 10
11 Страница 11
12 Страница 12
Страница: / 12
Загрузка инструкции

EN

INSTALLATION MANUAL

Warning! Before proceeding with installation,

read the safety information in the User

Manual.

FI

ASENNUSOHJEET

Varoitus! Ennen laitteen asentamista lue

käyttöoppaassa olevat turvallisuustiedot.

DE

MONTAGEANLEITUNG

Warnhinweis! Vor der Montage die in

der Bedienungsanleitung enthaltenen

Sicherheitsinformationen lesen.

DA

INSTALLATIONSVEJLEDNING

Advarsel! Læs sikkerhedsreglerne i

brugsanvisningen inden installation.

FR

MANUEL D’INSTALLATION

Avertissement ! Avant de procéder à l’installa-

tion, veuillez lire les informations sur la sécuri-

té contenues dans le manuel de l’utilisateur.

RU

РУКОВОДСТВО ПО УСТАНОВКЕ

Предупреждение! Прежде чем приступить

к установке, прочитайте информацию о

безопасности в Инструкциях по эксплуа

-

тации.

NL

INSTALLATIEHANDLEIDING

Waarschuwing! Lees de veiligheidsinformatie

in de gebruikershandleiding alvorens het

apparaat te installeren.

ET

PAIGALDUSJUHEND

Hoiatus! Enne paigaldamisega jätkamist

lugege kasutusjuhendis toodud ohutusteavet.

ES

MANUAL DE INSTALACIÓN

¡Advertencia! Antes de proceder a la

instalación, lea las indicaciones de seguridad

del manual de instrucciones.

LV

UZSTĀDĪŠANAS INSTRUKCIJAS

Brīdinājums! Pirms uzstādīšanas, izlasīt

drošības informāciju Ekspluatācijas

instrukcijās.

PT

MANUAL DE INSTALAÇÃO

Aviso! Antes de proceder à instalação, leia

a informação de segurança no Manual do

Utilizador.

LT

MONTAVIMO VADOVAS

Įspėjimas! Prieš pradėdami montavimo dar

-

bus, perskaitykite naudotojo vadove pateiktą

saugumo informaciją.

IT

MANUALE DI INSTALLAZIONE

Avvertenza! Prima di procedere

all’installazione, leggere le informazioni sulla

sicurezza contenute nel Manuale d’uso.

UK

ІНСТРУКЦІЯ ЗІ ВСТАНОВЛЕННЯ

Попередження. Перш ніж розпочинати

встановлення, необхідно уважно

прочитати інформацію з техніки безпеки,

наведену в інструкції з експлуатації.

SV

INSTALLATIONSANVISNINGAR

Varning! Läs säkerhetsföreskrifterna

i bruksanvisningen innan apparaten

installeras.

HU

ÜZEMBE HELYEZÉSI KÉZIKÖNYV

Figyelem! Az üzembe helyezéssel történő

továbblépés előtt olvassa el a Felhasználói

kézikönyvben található biztonsági tudniva-

lókat.

NO

INSTALLASJONSVEILEDNING

Advarsel! Les sikkerhetsinstruksjonene i

bruksveiledningen før apparatet installeres.

"Загрузка инструкции" означает, что нужно подождать пока файл загрузится и можно будет его читать онлайн. Некоторые инструкции очень большие и время их появления зависит от вашей скорости интернета.

Характеристики

Другие модели - Вытяжки Faber

Все вытяжки Faber