Духовые шкафы Zigmund Shtain BN 20.504 W - инструкция пользователя по применению, эксплуатации и установке на русском языке. Мы надеемся, она поможет вам решить возникшие у вас вопросы при эксплуатации техники.
Если остались вопросы, задайте их в комментариях после инструкции.
"Загружаем инструкцию", означает, что нужно подождать пока файл загрузится и можно будет его читать онлайн. Некоторые инструкции очень большие и время их появления зависит от вашей скорости интернета.

Внимание
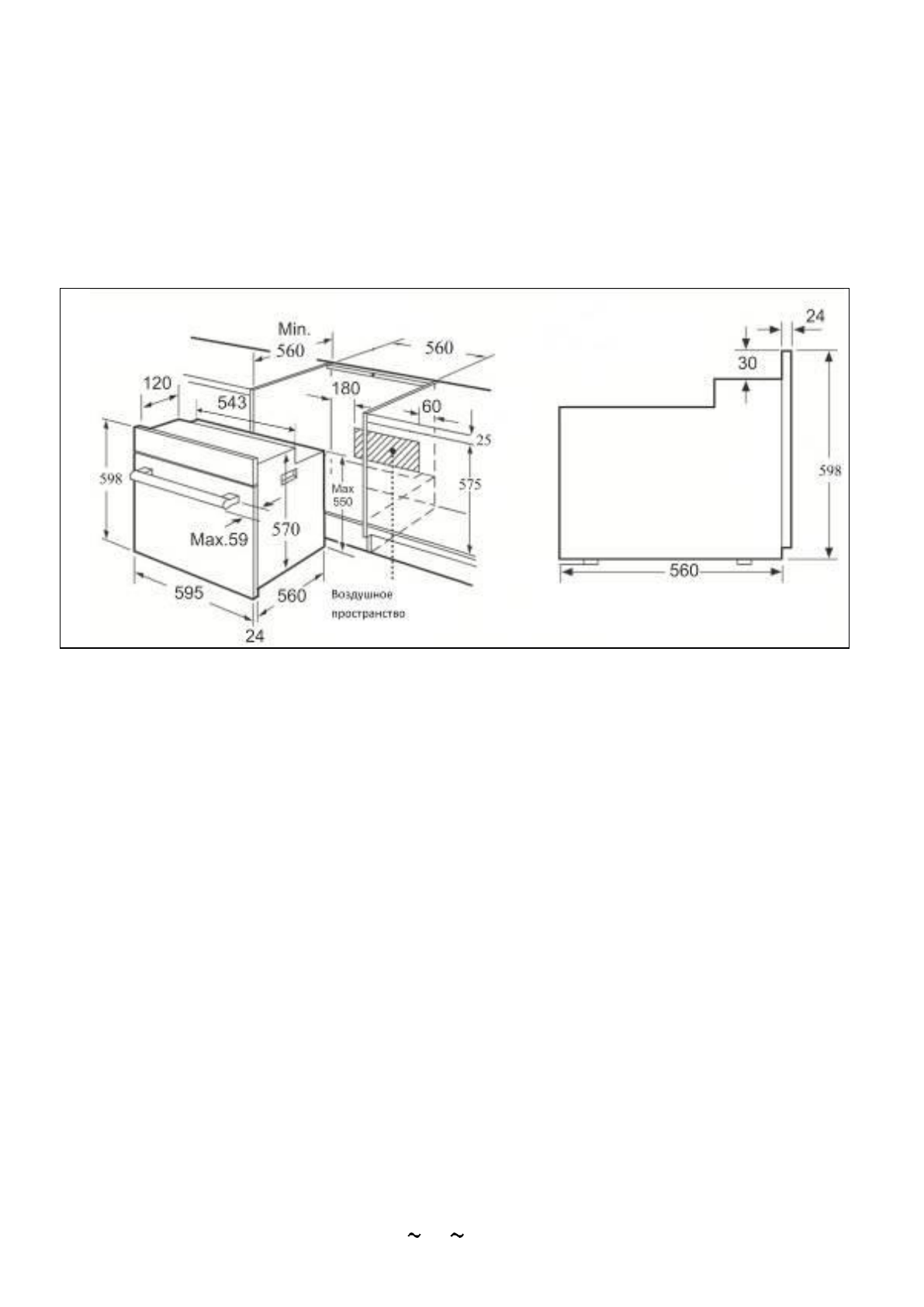
Обеспечивайте свободный поток воздуха в окружающее пространство шкафа.
Недостаточное проветривание может повлиять на чрезмерное нагревание оборудования или
неисправность устройств в окружении духовки.
Осторожно положите духовку на полке, но НЕ ПОДНИМАЙТЕ духовку, держа за ручки двери.
Когда Вы откроете дверцу духовки, вы увидите 4 отверстия для болтов, 2 по обеим сторонам духовки.
Прикрепите духовку внутри шкафа, используя эти отверстия для болтов.
Шкаф должен стоять неподвижно. Не должен быть прикреплен к стене и/или окружающим устройствам.
Рис. - 28/1
Рис. - 28/2
20
Характеристики
Остались вопросы?Не нашли свой ответ в руководстве или возникли другие проблемы? Задайте свой вопрос в форме ниже с подробным описанием вашей ситуации, чтобы другие люди и специалисты смогли дать на него ответ. Если вы знаете как решить проблему другого человека, пожалуйста, подскажите ему :)













