Духовые шкафы Whirlpool AKZ 6270 IX - инструкция пользователя по применению, эксплуатации и установке на русском языке. Мы надеемся, она поможет вам решить возникшие у вас вопросы при эксплуатации техники.
Если остались вопросы, задайте их в комментариях после инструкции.
"Загружаем инструкцию", означает, что нужно подождать пока файл загрузится и можно будет его читать онлайн. Некоторые инструкции очень большие и время их появления зависит от вашей скорости интернета.

RU13
ПОЛЬЗОВАНИЕ ДУХОВКОЙ
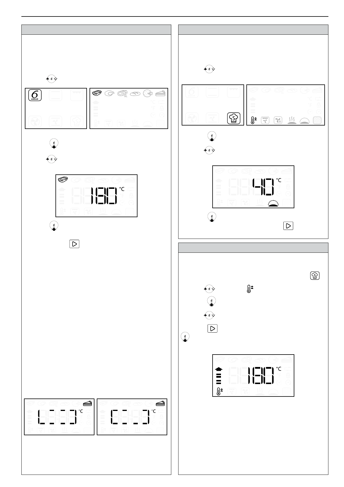
7 РЕЖИМЫ 6
TH
SENSE
Выбор одного из 6 режимов приготовления с уже
заданными параметрами. Полный перечень и
описание режимов представлен в таблице на
странице 17.
Вращая
, выберите семейство режимов 6
th
Sense.
Нажмите
для подтверждения.
Вращая
, выберите желаемый режим из семейства
6
th
Sense.
Нажмите
для подтверждения выбора и перехода к
установке значений длительности/времени
окончания либо
для Быстрого старта.
ПРИМЕЧАНИЕ:
Для всех режимов семейства 6
th
Sense
предварительный нагрев духовки не требуется. В
таблице на странице 19 представлены
рекомендуемые значения температуры и
длительности приготовления.
ВОССТАНОВЛЕНИЕ ТЕМПЕРАТУРЫ В РЕЖИМЕ 6
TH
SENSE
Если во время приготовления в режиме 6
th
Sense
температура в духовке снизится по причине
открытия дверцы, функция поддержания
температуры 6
th
Sense автоматически восстановит
исходное значение температуры.
В процессе восстановления температуры функцией 6
th
Sense на дисплей выводится анимация “змейка”. Это
продолжается до достижения требуемой
температуры.
ПРИМЕЧАНИЕ:
Для цикла приготовления заданной
длительности, в целях обеспечения надлежащего
качества блюда, длительность увеличивается на то
время, в течение которого была открыта дверца.
8 СПЕЦИАЛЬНЫЕ РЕЖИМЫ
Выбор одного из специальных режимов
приготовления. Полный перечень и описание
режимов представлен в таблице на странице 18.
Вращая
, выберите семейство специальных
режимов.
Нажмите
для подтверждения.
Вращая
, выберите желаемый специальный
режим.
Нажмите
для подтверждения выбора и
перехода к установке значений либо
для
Быстрого старта.
8.1 БЫСТРЫЙ ПРОГРЕВ
Ускоренный предварительный нагрев духовки. См.
полное описание на странице 18.
Перейдите к семейству специальных режимов
.
Вращая
, выберите .
Нажмите
для подтверждения.
Вращая
, установите требуемую температуру.
Нажмите
для запуска быстрого прогрева или
для установки длительности последующего
цикла приготовления.
В момент достижения духовкой требуемой
температуры подается звуковой сигнал.
Поместите пищу в камеру и закройте дверцу. При
этом автоматически стартует выбранный цикл
приготовления с поддержанием достигнутой
температуры.
Не помещайте пищу в духовку до завершения
быстрого прогрева.
Содержание
- 6 ВАЖНЫЕ УКАЗАНИЯ ПО БЕЗОПАСНОСТИ; ОПАСНОСТЬ; РЕКОМЕНДАЦИИ ПО БЕЗОПАСНОСТИ
- 10 УСТАНОВКА
- 11 ПОЛЬЗОВАНИЕ ДУХОВКОЙ; ПРИБОР; (число уровней для полок; ПРИНАДЛЕЖНОСТИ
- 12 (для выдвижных направляющих полного; Несоблюдение данных указаний
- 13 ОПИСАНИЕ ПАНЕЛИ УПРАВЛЕНИЯ; РУЧКА И СЕНСОРНЫЕ КНОПКИ; Представленное изображение
- 18 ВНИМАНИЕ; РЕЖИМ ОЧИСТКИ SMARTCLEAN
- 20 Блокировка кнопок панели управления.
- 21 ТАБЛИЦА РЕЖИМОВ; Традиционные
- 23 ТАБЛИЦА ПРИГОТОВЛЕНИЯ БЛЮД
- 26 ПРОТЕСТИРОВАННЫЕ РЕЦЕПТЫ
- 27 ПОЛЕЗНЫЕ СОВЕТЫ
- 28 ЧИСТКА
- 29 ТЕХОБСЛУЖИВАНИЕ
- 30 ПОСЛЕ ИСПОЛЬЗОВАНИЯ; УТИЛИЗАЦИЯ БЫТОВЫХ ПРИБОРОВ; Духовка не работает; СЕРВИС; Прежде чем обратиться в сервисный центр; В случае необходимости








