Духовые шкафы Smart Life SL OE6531B1 - инструкция пользователя по применению, эксплуатации и установке на русском языке. Мы надеемся, она поможет вам решить возникшие у вас вопросы при эксплуатации техники.
Если остались вопросы, задайте их в комментариях после инструкции.
"Загружаем инструкцию", означает, что нужно подождать пока файл загрузится и можно будет его читать онлайн. Некоторые инструкции очень большие и время их появления зависит от вашей скорости интернета.

18
Supply cord mustn't be under the oven, squeeze in between oven and
furniture or bend.
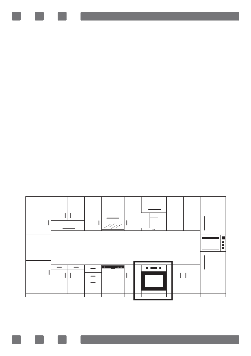
Fix the oven to the furniture by using the screws provided with the
product. Screws must be mounted as shown in figure 5 by passing them
through plastics attached to frame of the product. Screws mustn't be
overtightened. Otherwise, screw sockets might be worn.
Check that oven doesn't move after mounting. If oven isn't mounted in
accordance with instructions, there is a risk of tilt over during operation.
Electrical Connection
Mounting place of the product must have appropriate electrical
installation.
Network voltage must be compatible with the values provided on type
label of product.
Product connection must be made in accordance with local and national
electrical requirements.
Before starting the mounting disconnect network power. Do not connect
the product to network until its mounting is completed.
Mounting
GB
Содержание
- 38 Содержание
- 39 животным приближаться к прибору, когда он работает.; ПРЕДУПРЕЖДЕНИЕ! Во время работы духовка; нагревается. Нельзя касаться внутренних элемен-
- 40 приготовления без присмотра.; использовать для других целей, таких как обогрев; ВНИМАНИЕ: Не следует оставлять процесс
- 42 руками. Не тяните за шнур питания, чтобы отключить
- 45 Электробезопасность; эксплуатации прибора без заземления в соответствии; Если шнур питания (шнур со штепсельной вилкой); или наливания на него воды. Имеется риск поражения; ПРЕДУПРЕЖДЕНИЕ: Во избежание поражения
- 46 димо обратиться к производителю, в авторизованный
- 47 типа «Y»
- 48 Целевое использование
- 49 Электрическое соединение
- 50 ОПИСАНИЕ ПРИБОРА
- 52 Технические характеристики*; в целях улучшения его технических характеристик.; УСТАНОВКА ПРИБОРА; Покупатель несет ответственность за подготовку
- 58 ПАНЕЛЬ УПРАВЛЕНИЯ; Указанная панель управления, приведена только
- 59 осуществляться; Использование утапливаемых переключателей; В моделях с выдвигающимися переключателями настройка может
- 62 Режимы приготовления
- 65 Выпечка с камнем для пиццы *
- 66 УХОД И ЧИСТКА; Для удаления грязи и пятен используйте мягкие моющие средства.
- 67 Чистка и установка дверцы; Для установки дверцы на место выполняйте действия, описанные для
- 68 Чистка стекла; Нажмите на пластиковые защелки с левой и правой стороны дверцы,; Каталитические экраны *; Каталитические экраны расположены в камере слева и справа под; Снятие каталитических экранов; этого они легко извлекаются. Их следует менять через 2-3 года.
- 69 Чтобы снять направляющие, надавите на защелки вниз, как показано; Замена лампы; Во избежание поражения электрическим током,; Тип G9 лампы
- 70 ПОИСК И УСТРАНЕНИЕ НЕИСПРАВНОСТЕЙ; Если у Вас возникла проблема с духовкой, попробуйте устранить
Характеристики
Остались вопросы?Не нашли свой ответ в руководстве или возникли другие проблемы? Задайте свой вопрос в форме ниже с подробным описанием вашей ситуации, чтобы другие люди и специалисты смогли дать на него ответ. Если вы знаете как решить проблему другого человека, пожалуйста, подскажите ему :)







