Духовые шкафы Miele H 5961 B - инструкция пользователя по применению, эксплуатации и установке на русском языке. Мы надеемся, она поможет вам решить возникшие у вас вопросы при эксплуатации техники.
Если остались вопросы, задайте их в комментариях после инструкции.
"Загружаем инструкцию", означает, что нужно подождать пока файл загрузится и можно будет его читать онлайн. Некоторые инструкции очень большие и время их появления зависит от вашей скорости интернета.

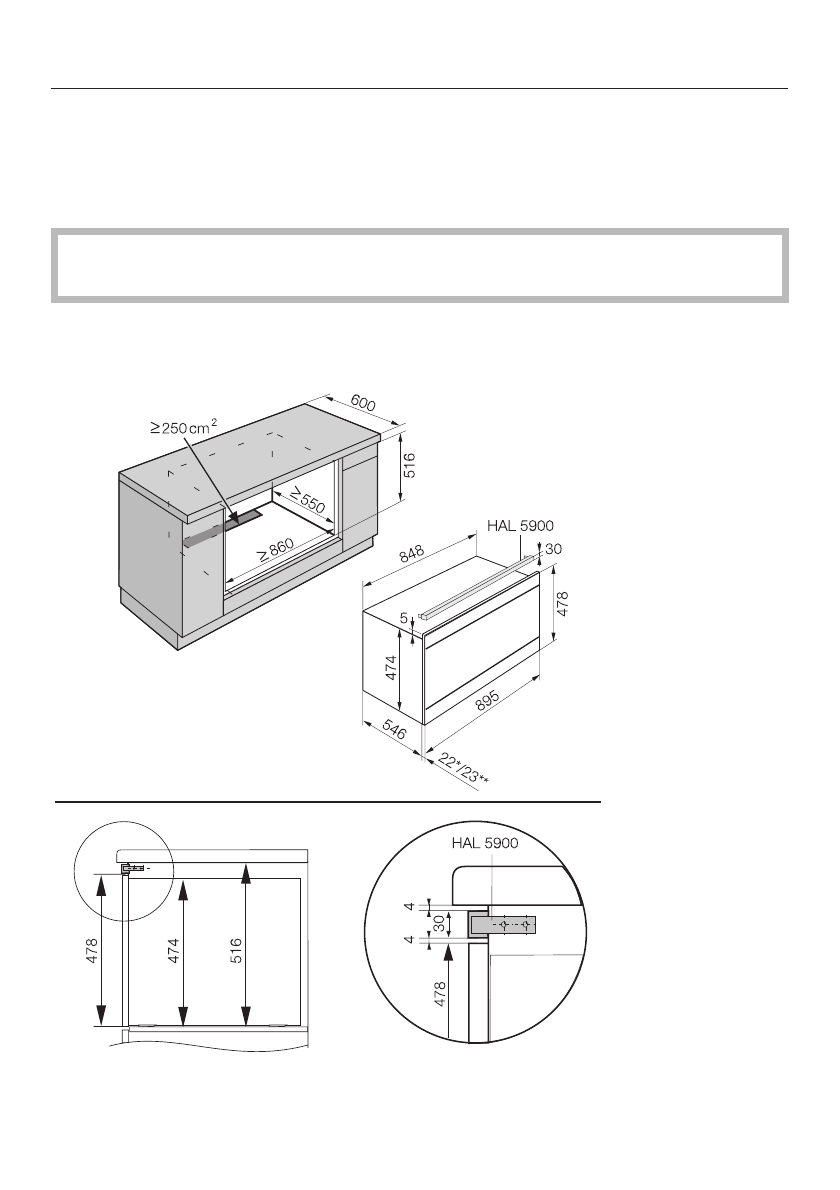
Óêàçàííûå ðàçìåðû ïðèâîäÿòñÿ â "ìì".
Ðàçìåðû ïðèáîðà è íèøè øêàôà äëÿ âñòðàèâàíèÿ
Âñòðàèâàíèå â øêàô ïîä ñòîëåøíèöåé
Êîìïåíñèðóþùàÿ ïëàíêà HAL 5900 òðåáóåòñÿ òîëüêî äëÿ âñòðàèâàíèÿ
ïðèáîðà â øêàô ïîä ñòîëåøíèöåé è ïðèîáðåòàåòñÿ äîïîëíèòåëüíî.
^
Çàêðåïèòå êîìïåíñèðóþùóþ ïëàíêó HAL 5900 â íèøå øêàôà ïîä ñòîëåø-
íèöåé (ñì. íèæíþþ ÷àñòü ðèñóíêà).
*
Ïðèáîðû ñ ôðîíòàëüíîé ïàíåëüþ èç ñòåêëà
**
Ïðèáîðû ñ ôðîíòàëüíîé ïàíåëüþ èç ìåòàëëà
Ðàçìåðû äëÿ âñòðàèâàíèÿ
81












